Пояснительная записка (1209920), страница 2
Текст из файла (страница 2)
1.2.1 Пассивные методы защиты
Пассивными техническими методами защиты информации являются устройства, которые обеспечивают сокрытие объекта защиты от технических способов разведки путем поглощения, рассеивания или отражения его излучений. К пассивным техническим средствам защиты относятся экранирующие устройства и сооружения, маски различного назначения, разделительные устройства в сетях электроснабжения, защитные фильтры и т. д. Цель пассивного способа – максимально ослабить акустический (речевой) сигнал от источника звука, например, за счет отделки стен звукопоглощающими материалами.
По результатам анализа архитектурно-строительной документации формируется комплекс необходимых мер по пассивной защите тех или иных участков. Стены и перегородки по возможности должны быть слоистыми, материалы слоев – подобраны с резко отличающимися акустическими характеристиками (например, бетон – поролон). Для уменьшения мембранного переноса желательно, чтобы они были массивными. Кроме того, разумнее устанавливать двойные двери с воздушной прослойкой между ними и уплотняющими прокладками по периметру косяка. Для защиты окон от утечки информации их лучше делать с двойным остеклением, применяя звукопоглощающий материал и увеличивая расстояние между стеклами для повышения звукоизоляции, использовать шторы или жалюзи. Различные отверстия во время ведения конфиденциальных разговоров следует перекрывать звукоизолирующими заслонками.
Другим пассивным способом пресечения утечки информации является правильное устройство заземления технических средств передачи информации. Шина заземления и заземляющего контура не должна иметь петель, и ее рекомендуется выполнять в виде ветвящегося дерева. Магистрали заземления вне здания следует прокладывать на глубине около 1,5 м, а внутри здания – по стенам или специальным каналам (для возможности регулярного осмотра). В случае подключения к магистрали заземления нескольких технических средств соединять их с магистралью нужно параллельно. При устройстве заземления нельзя применять естественные заземлители (металлические конструкции зданий, имеющие соединение с землей, проложенные в земле металлические трубы, металлические оболочки подземных кабелей и т. д.).
1.2.2 Активные методы защиты
Активное техническое средство защиты – устройство, обеспечивающее создание маскирующих активных помех (или имитирующих их) для средств технической разведки или нарушающие нормальное функционирование средств негласного съема информации. Активные способы предупреждения утечки информации можно подразделить на обнаружение и нейтрализацию этих устройств.
К активным техническим средствам защиты относятся также различные имитаторы, средства постановки аэрозольных и дымовых завес, устройства электромагнитного и акустического зашумления и другие средства постановки активных помех. Активный способ предупреждения утечки информации по акустическим каналам сводится к созданию в «опасной» среде сильного помехового сигнала, который сложно отфильтровать от полезного.
Самыми распространенными методами выявления закладочных устройств являются:
-
визуальный осмотр;
-
метод нелинейной локации;
-
металлодетектирование;
-
рентгеновское просвечивание.
Проводить специальные меры по обнаружению каналов утечки информации и дорого, и долго. Поэтому в качестве средств защиты информации часто выгоднее использовать устройства защиты телефонных переговоров, генераторы пространственного зашумления, генераторы акустического зашумления, сетевые фильтры, стекла оборудовать излучающими вибродатчиками. Для предотвращения несанкционированной записи переговоров используют устройства подавления диктофонов.
Подавители диктофонов (также эффективно воздействующие и на микрофоны) применяют для защиты информации с помощью акустических и электромагнитных помех. Они могут воздействовать на сам носитель информации, на микрофоны в акустическом диапазоне, на электронные цепи звукозаписывающего устройства. Существуют стационарные и носимые варианты исполнения различных подавителей.
В условиях шума и помех порог слышимости для приема слабого звука возрастает. Такое повышение порога слышимости называют акустической маскировкой. Для формирования виброакустических помех применяются специальные генераторы на основе электровакуумных, газоразрядных и полупроводниковых радиоэлементов.
Наиболее широко на практике применяются генераторы шумовых колебаний. Для подавления непосредственно микрофонов как у радиопередающих устройств, так и у диктофонов используются шумогенераторы первого типа, такой прибор вырабатывает речеподобный сигнал, который передается в акустические колонки и вполне эффективно маскирует человеческую речь. Кроме того, такие устройства применяются для борьбы с лазерными микрофонами и стетоскопическим прослушиванием. Надо отметить, что акустические шумогенераторы – едва ли не единственное средство для борьбы с проводными микрофонами. При организации акустической маскировки стоит отметить, что акустический шум создает дополнительный дискомфорт для сотрудников и участников переговоров (обычная мощность генератора шума составляет от 75 до 90 дБ), однако в этом случае удобство должно быть принесено в жертву безопасности.
Известно, что «белый» или «розовый» шум, который используется в качестве акустической маскировки, по структуре имеет отличия от речевого сигнала. На знании и использовании этих отличий как раз и базируются алгоритмы шумоочистки речевых сигналов, которые широко используются специалистами технической разведки. В связи с этим, такими шумовыми помехами в целях активной акустической маскировки сегодня применяют более эффективные генераторы «речеподобных» помех, хаотических последовательностей импульсов и т. д. Роль таких устройств, которые преобразуют электрические колебания в акустические колебания речевого диапазона частот, обычно выполняют малогабаритные широкополосные акустические колонки. Чаще всего они устанавливаются в помещении в местах наиболее вероятного размещения средств акустической разведки.
«Розовый» шум – сложный сигнал, уровень спектральной плотности которого убывает с повышением частоты с постоянной крутизной, равной от 3 до 6 дБ на октаву во всем диапазоне частот. «Белым» называется шум, спектральный состав которого однороден по всему диапазону излучаемых частот. То есть такой сигнал является сложным, как и речь человека, и в нем нельзя выделить какие-то преобладающие спектральные составляющие. «Речеподобные» помехи формируются путем смешивания в различных сочетаниях отрезков речевых сигналов и музыкальных фрагментов, а также шумовых помех или из фрагментов самого скрываемого речевого сигнала.
2 Разработка рекомендаций по созданию защищаемого помещения
2.1 Общая информация об организации
«52 Центральный проектный институт» — филиал АО «31 ГПИСС» является одной из ведущих проектных организаций в Дальневосточном регионе и отметил в 2015 году 80-летие своей деятельности.
Объект информатизации находится в собственном семиэтажном здании по адресу ул. Ленина, 37. Здание со всех сторон окружено используемыми нежилыми помещениями. Фасад здания выходит на ул. Ленина. С одной стороны находится здание школы (ул. Ленина, 39), с другой Хабаровский краевой театр кукол. На противоположной стороне улицы, находится здание военной комендатуры Хабаровского края (ул. Ленина, 34). План – схема местности, в которой находится защищаемый объект, показана на рисунке 2.1.
Рисунок 2.1 – План-схема участка местности
Схема расположения помещения относительно границ контролируемой зоны представлена на рисунке 2.2.
На входе в здание расположен пост охраны, организован пропускной режим. Таким образом, границей контролируемой зоны является мнимая линия, проходящая по периметру здания. Контролируемая зона – это территория объекта, на которой исключено неконтролируемое пребывания лиц и транспортных средств, не имеющие постоянного или разового доступа.
Рисунок 2.2 – Расположение границ КЗ и ЗП вид фронтальной части здания
2.2 Анализ защищаемого объекта
Объект защиты представляет собой кабинет для проведения рабочих совещаний и переговоров. Помещение расположено на втором этаже. Окна помещения выходят на улицу Ленина. Рядом расположена автобусная остановка. Соседние помещения принадлежат организации. С левой стороны от ЗП находится комната отдыха директора организации, с правой приемная.
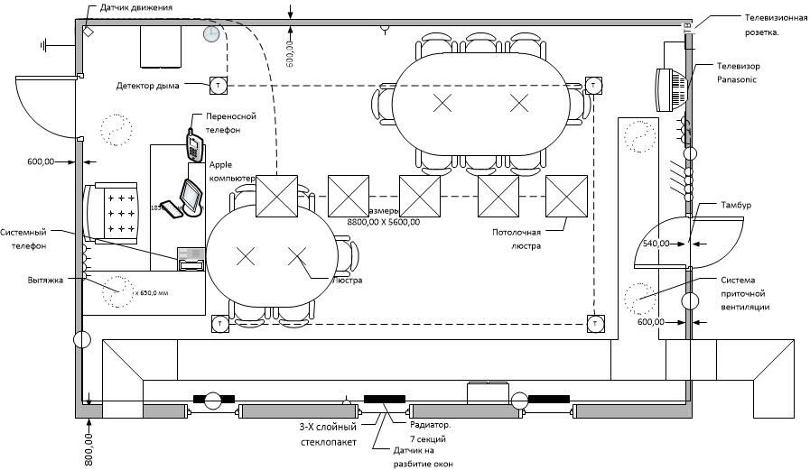
Расположение ЗП на этаже, представлено на рисунке 2.3. Внешний вид и расположение технических средств в ЗП представлены на рисунке 2.4.
План защищаемого помещения (вид сбоку) представлен на рисунке 2.5.
Характеристики помещения представлены в таблице 2.1.
Таблица 2.1 – Характеристики ЗП «52 ЦПИ – филиала АО “31 ГПИСС”»
| Этаж ЗП | 2 |
| Длина, м | 8,8 |
| Ширина. м | 5,6 |
| Фальшпотолок | Имеется |
| Кол-во радиаторов | 3 |
| Кол-во секций в радиаторе | 7 |
| Кол-во выводов труб из помещения | 2 |
| Кол-во ОТСС | 0 |
| Кол-во ВТСС | 9 |
| Кол-во окон | 3 |
| Кол-во фрагментов в каждом окне | 3 |
| Дверной проем | 1 |
| Дверной проем с тамбуром (глубина 540мм) | 1 |
| Система вентиляции | Имеется |
| Материал стен | Кирпич |
| Толщина наружной стены, мм | 800 |
| Толщина внутренних стен, мм | 600 |
| Общая площадь, кв.м | 49,3 |
Рисунок 2.3 – Расположение границ КЗ и ЗП. План второго этажа
Рисунок 2.4 – Схема расположения технических средств в ЗП
Рисунок 2.5 – План защищаемого помещения (вид сбоку)
2.2.1 Ограждающие конструкции
Капитальная внешняя стена здания с тремя оконными проемами, кирпичная толщиной 800мм. Внутренняя стена, смежная с приемной, выполнена также из кирпичной кладки толщиной 600мм, с дверным проемом. Потолок – железобетонная панель толщиной 160 мм, с натяжным потолком. Пол – паркетное покрытие толщиной паркетной доски 25 мм, под паркетом железобетонное перекрытие толщиной 160 мм.
2.2.2 Двери защищаемого помещения
Вход в защищаемое помещение со стороны приемной оборудован тамбуром в деревянной коробке, с порогом, с двумя дверьми, расстояние между которыми 540мм. Дверь из цельного деревянного массива с уплотняющими прокладками из пористой резины, без остекления.
2.2.3 Окна защищаемого помещения
В помещении имеется три окна. Окна однотипные по конструкции и размерам, каждое состоит из трех створок из пластикового профиля. Створка
1 – поворотно-откидная, створки 2,3 – глухие. Остекление створок – тройной стеклопакет. Толщина стекол 4 мм. На стеклопакетах и створках имеются резиновые уплотнение по периметру. Конструкция окон и размеры створок представлены на рисунке 2.6. Видимые размеры окон 1500х1900 мм.














