ПЗ-Зенченко (1192152), страница 5
Текст из файла (страница 5)
где
- длина рабочего плеча, м;
v- скорость движения погрузчика, м/с;
Средняя высота подъема:
где H-высота подъема груза погрузчиком, м.
Эксплуатационная производительность погрузчика
где
-коэффициент использования по времени,
.
Сменная производительность
3.2. Расчет параметров элементов гидросистемы погрузчика
3.2.1. Определение усилий на шток гидроцилиндра подъема
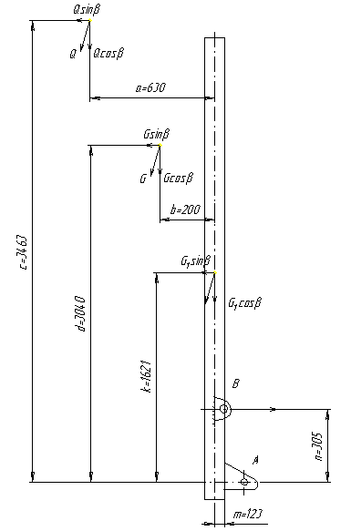
Расчетная схема усилия на шток цилиндра приведена на рисунке 3.1.
Рисунок 3.1 - Расчетная схема усилия на шток цилиндра
Сумма моментов относительно точки А.
МА=0
где
- масса поднимаемого груза,
=1500 кг;
-масса внутренней рамы,
=190 кг;
RB=42583 Н
Тогда усилие на шток цилиндра:
3.2.2. Выбор площади гидроцилиндра подъема
где Qmax – вес груза,Qmax=1500 кг;
Gпл – вес плунжера, Gпл=44 кг;
Gв – вес вил, Gв=78 кг;
Gк – вес каретки, Gк=73 кг;
Gвн.р.– вес внутренней рамы,Gвн.р.=90 кг;
К=2 – кратность полиспаста грузоподъемника;
- допускаемое давление в цилиндре подъема,
;
- допускаемое давление нагнетательного насоса,
;
-давление настройки предохранительного клапана распределителя
;
Δр– потери давления в линии нагнетания Δр=0,6 мПа;
ηгр– к.п.д. грузоподъемника ηгр=0,85;
ηмех.ц. к.п.д., учитывающий трение уплотнителей ηмех.ц.=0,97.
Принимаем диаметр цилиндра: 60 мм
3.2.3 Выбор типа насоса
Потребная удельная подача насоса
где Q – потребная производительность насоса, необходимая для получения скорости подъема м/мин;
n – номинальная скорость вращения вала насоса, n=2500 об/мин;
ηv – объемный к.п.д. насоса, ηv=0,95.
где v– скорость подъема, v=11 м/мин;
ηпр– объемный к.п.д. привода подъема, ηпр.=0,99.
Принимаем насос С14Х, имеющий удельную подачу q=5,3 см3/об.
3.2.4 Определение скоростей подъема каретки
1) Скорость подъема каретки с грузом.
Давление в цилиндре подъема:
Момент на валу электродвигателя, соответствующий данной нагрузке:
где
– к.п.д., учитывающий потери давления в линии,
=0,93;
– механический к.п.д. насоса,
=0,88.
Производительность насоса
где n – по характеристике электродвигателя ЗДН-32, об/мин.
Скорость подъема каретки с грузом:
2) Скорость подъема каретки без груза.
Давление в цилиндре подъема:
где η/мех.ц – к.п.д. механический цилиндра в режиме работы без груза, η/мех.ц=0,85.
Момент на валу электродвигателя:
где
– к.п.д., учитывающий потери давления в линии в режиме работы без груза,
=0,8;
– механический к.п.д. насоса в режиме работы без груза,
=0,85.
Скорость вращения вала при данном моменте n=3500об/мин (определяется по характеристике электродвигателя).
Производительность насоса:
Скорость подъема каретки без груза:
3.2.5 Расчет ёмкости масляного бака
Количество тепла, выделяемого в результате нагрева рабочей жидкости за смену:
где
- среднее давление, развиваемое насосом под нагрузкой,
=15мПа;
- среднее давление, развиваемое насосом без нагрузки,
=3,4 мПа;
- средний расход жидкости при работе под нагрузкой,
=16 л/мин;
- средний расход жидкости при работе без нагрузки,
=19 л/мин;
ηобщ. -общий к.п.д. насоса, ηобщ.=0,8.
Среднее количество тепла, выделяемого в результате нагрева рабочей жидкости за час.
Объем масла в баке
ΔТ=30º - разность температур рабочей жидкости и окружающей среды.
Геометрический объем бака
Принимаем объем 16 л.
3.3. Расчет устойчивости электропогрузчика
Для безопасной работы погрузчики должны быть устойчивыми при работе и в нерабочем состоянии.
Безопасность работы погрузчиков определяется не только их продольной статической устойчивостью, но и динамическими нагрузками, связанными с условиями работы, и прежде всего инерционными силами, возникающими:
-
при трогании с места и торможении погрузчика или при движении его по кривой во время поворота;
-
в начале и конце подъема пути или при опускании груза и подвижных элементов конструкции грузоподъемника;
-
в начале или в конце наклона рамы грузоподъемника с грузом на вилах;
-
при раскачивании груза и элементов конструкции сменного рабочего оборудования.
Погрузчик может потерять устойчивость из-за нарушения силового баланса, когда точка приложения равнодействующей всех сил выйдет за пределы опорного контура машины. Для правильного выбора методов расчета устойчивости необходимо учесть влияние всех сил, действующих на погрузчик как в продольном, так и в поперечном направлении. При этой необходимо рассматривать устойчивость погрузчика не только в статическом состоянии, но и в движении.
Для расчета устойчивости разбираем узлы электропогрузчика на две группы:
I группа – узлы не изменяющие своего положения относительно шасси при работе погрузчика
II группа – узлы изменяющие свое положение относительно шасси: грузоподъемник, вилы с рамкой, натяжное устройство, груз.
3.3.1. Расчет координат центра тяжести узлов первой группы
Таблица 3.1 - Вес и координаты центров тяжести узлов I группы
| № | Наименование узла | Вес кгс | Координаты ц. т., см | |
| по оси x | по сои z | |||
| 1 2 3 4 5 6 7 8 9 10 11 12 13 | Колесо ведущее (два) Колесо управляемое Управление рулевое Устройство тормозное Двигатель передвижения (два) Двигатель подъема Аккумуляторная батарея Электроаппаратура Гидропривод (с маслом) Цилиндр наклона (два) Сиденье Корпус Противовес | 186 105,2 17 8,2 70 35 570 43 63,5 17 8,3 208 556 | 7 111 20 25 29,5 49 92 40 48 18 78 57 91 | 20 20 58 34 20 19,4 56 58 45 45 90 34 20 |
| Общий вес | 1877,3 | 73,4 | 35 | |
Находим координаты центра тяжести узлов первой группы:
где Х1- координата центра тяжести узлов первой группы по оси Х, см;
Gi – вес i-то узла,кг;
Xi-координата i-тог узла по оси Х, см;
Z1- координата центра тяжести узлов первой группы по оси Z, см;
Zi-координата i-тог узла по оси Z, см.
3.3.2. Расчет координат центра тяжести узлов второй группы
Таблица 3.2 - Вес и координаты центров тяжести узлов II группы
| № | Наименование узла | Вес кгс | Координаты ц. т., см | ||
| по оси Х | по оси Z при высоте подъема, мм | ||||
| 300 | 3000 | ||||
| 1 2 3 4 5 6 | Вилы с рамкой Каретка Натяжное устройство Наружная рама Внутренняя рама Цилиндр подъема | 113,9 75 26 112 96,8 73 | -41,5 -23,5 6,5 -9,9 -10,4 -11 | 52,5 102 187,5 107 107 104 | 322,5 372 187,5 107 257 140 |
| Общий вес Поднимаемый груз Вес с грузом | 496,7 1500 1997 | -18,5 -78 -61 | 97,6 84 88 | - 354 316 | |
Находим координаты центра тяжести второй группы при вертикальном грузоподъемнике для высот подъема 300 мм и 3000 мм, соответствующих нахождению груза в транспортном положении и при штабелировании.















