Конструктивный и художественный дизайн и технология производства подарочной упаковки шоколадных конфет (1094745), страница 5
Текст из файла (страница 5)
где Sеф – площадь этикетки, а – сторона квадрата, рассчитывается по следующей формуле:
где p – припуск.
Результаты расчетов приведены в табл. 2.2.
Таблица 2.2
Расчет размеров первичной тары
| Параметр | Буквенное обозначение | Числовое значение, мм | Числовое значение, см |
| Припуск | p | 5 | 0,5 |
| Радиус конфеты | R | 15 | 1,5 |
| Длина квадрата из фольги | a | 100 | 10 |
| Площадь развертки первичной тары | Sеф | 10000 | 100 |
-
Расчет параметров вторичной тары (картонной коробки)
Развертка — технологический чертеж заготовки, из которой впоследствии будет собрана коробка. Развертка должна изображать внешнюю (запечатываемую) сторону коробки и отражать особенности технологического процесса ее изготовления и сборки.
Элементы развертки коробки можно условно поделить на основные и вспомогательные. К главным элементам относятся боковые стенки, а также дно и крышка коробки. На основные элементы развертки в процессе ее изготовления может наноситься графическая и текстовая информация. Вспомогательные элементы развертки, то есть различные клапаны, служат для скрепления основных элементов при сборке коробки, [9].
Для того чтобы правильно спроектировать чертеж развертки, необходимо учесть припуски на фальцовку.
-
Расчет припусков на фальцовку
На рис.2.1 представлено изображение сфальцованной вставки, выполняющей функцию коррекса.
Рис. 2.1. Вставка в коробку в разрезе в собранном состоянии
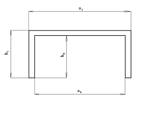
На рис. 2.2 представлено изображение сфальцованной вставки, вложенной в сфальцованное донышко коробки.
Рассчитаем размеры развертки с учетом припусков на фальцовку.
k=0,6мм – толщина картона,
Рис. 2.2. Дно и вставка в разрезе в собранном состоянии
Рассчитаем размеры развертки с учетом припусков на фальцовку.
k=0,6мм – толщина картона,
На рис.2.3 представлено изображение собранной коробки в разрезе.
Рис. 2.3. Коробка в собранном состоянии в разрезе
Расчет припусков на фальцовку для крышки:
a3 = a2+2k+2k+2k=a0+9k,
h4=h3+0,5k=h0+3,5k+c1+k,
h5=h4+0,5k=h0+5k+c1,
x2=c3+0,5k.
Результаты расчетов припусков на фальцовку представлены в табл. 2.3.
Таким образом, собранная картонная коробка в разрезе будет выглядеть так, как показано на рис. 2.4.
Таблица 2.3
Рассчитанные значения припусков на фальцовку
| №№ | Буквенное обозначение параметра | Числовое значение параметра, мм |
| 1 | a0 | 253,9 |
| 2 | a1 | 254,5 |
| 3 | a2 | 257,5 |
| 4 | a3 | 259,3 |
| 5 | c1 | 22 |
| 6 | c2 | 10 |
| 7 | c3 | 10 |
| 8 | h0 | 10 |
| 9 | h1 | 10 |
| 10 | h2 | 33,5 |
| 11 | h3 | 34,4 |
| 12 | h4 | 34,7 |
| 13 | h5 | 35,0 |
| 14 | k | 0,6 |
| 15 | x1 | 10,3 |
| 16 | x2 | 10,3 |
Рис.2.4. Собранная коробка в разрезе
1 – вставка в коробку, 2 – дно коробки, 3 – запирающие язычки дна,
4 – крышка коробки, 5 – запирающие язычки крышки
Расчет площади разверток
Общая площадь разверток определяется как сумма геометрических фигур, составляющих развертку. Тогда площадь развертки вставки в коробку определяется по формуле:
=250,8см2,
где Si – геометрические фигуры, составляющие площадь развертки вставки.
Площадь развертки дна коробки определяется следующим образом:
где Si – геометрические фигуры, составляющие площадь развертки дна коробки.
В табл. 2.4 представлены результаты расчетов.
Таблица 2.4
Расчет площади развертки дна коробки
| Обозначение | Числовое значение, мм2 | Множитель | Числовое значение, мм2 |
| Sт | 28710,61 | 1 | 28710,61 |
| Sб1 | 8858 | 3 | 26574 |
| Sб2 | 8545,85 | 3 | 25637,55 |
| Sу1 | 893,4 | 3 | 2680,2 |
| Sу2 | 852,39 | 3 | 2557,17 |
| Sкл | 2588,15 | 3 | 7764,45 |
| Сумма, мм2 | 93923,98 | ||
Площадь развертки крышки коробки определяется следующим образом:
где Si – геометрические фигуры, составляющие площадь развертки крышки.
В табл. 2.5 представлены результаты расчетов.
Таблица 2.5
Расчет площади развертки крышки коробки
| Обозначение | Числовое значение, мм2 | Множитель | Числовое значение, мм2 |
| 1 | 2 | 3 | 4 |
| Sт | 29113,4 | 1 | 29113,4 |
Продолжение табл. 2.5
| Sб1 | 9075,5 | 3 | 27226,5 |
| Sб2 | 8914,43 | 3 | 26743,29 |
| Sу1 | 912,15 | 3 | 2736,45 |
| Sу2 | 889,51 | 3 | 2668,53 |
| Sкл | 2606,85 | 3 | 7820,55 |
| Сумма, мм2 | 96308,72 | ||
-
Конструктивная сложность картонной коробки
Конструктивная сложность изделий является относительной характеристикой их состава и структурного исполнения. Она определяет конструктивные дополнительные признаки и соответствующие требования к обеспечению технологической рациональности конструкции изделия.
Конструктивная сложность изделия существенно влияет на интенсивность нарастания информации о разрабатываемом объекте. Эта информация необходима в процессе последовательного перехода к новым стадиям разработки вплоть до освоения изделия в производстве и эксплуатации. От полноты информации зависят сроки технологической подготовки производства.
Сложность конструкции предопределяет условия комплектации изделий, организацию и затраты труда в процессах изготовления, технического обслуживания и ремонта.
Конструктивную сложность изделия часто выражают числом образующих изделие составных частей или конструктивных элементов. Коэффициентом конструктивной сложности изделия Ксл называют отношение числа составных частей (элементов) разрабатываемого изделия Мn и аналога Ма:
Формула для расчета коэффициента конструктивной сложности, [10]:
Аналогом для данной коробки можно считать коробку D1110 по классификации ECMA (рис. 2.5).
Рис. 2.5. Коробка D1110 по классификации ECMA
Таким образом, коэффициент конструктивной сложности для разрабатываемой упаковки составляет 1,5.
-
Обоснование выбора используемых материалов
-
Общие требования к упаковочным материалам
Требования к тароупаковочным средствам определяются функциональным назначением последних и обусловлены объективными эксплуатационными факторами. Условно факторы, действующие на систему в процессе эксплуатации, можно разделить на внешние и внутренние.
















