Пояснительная записка (1094714), страница 2
Текст из файла (страница 2)
Пар, образуемый в котлоагрегате, подразделяется на насыщенный и перегретый. Насыщенный пар в свою очередь делится на сухой и влажный. Так как на теплоэлектростанциях требуется перегретый пар, то для его перегрева устанавливается пароперегреватель, в данном случае ширмовой и конъюнктивный, в которых для перегрева пара используется тепло, полученное в результате сгорания топлива и отходящих газов. Полученный перегретый пар при температуре Т=540 С и давлении Р=100 атм. идет на технологические нужды.
1.2 Описание конструкции объекта
Паровые котлы типа ДЕ паропроизводительностью 10 т/ч, с абсолютным давлением 1,4 МПа (14 кгс/см2) предназначены для выработки насыщенного или перегретого пара, используемого для технологических нужд промышленных предприятий, на теплоснабжение систем отопления и горячего водоснабжения.
Котлы двухбарабанные вертикально-водотрубные выполнены по конструктивной схеме “Д”, характерной особенностью которой является боковое расположение конвективной части котла относительно топочной камеры.
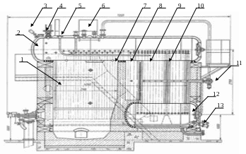
Основными составными частями котлов являются верхний и нижний барабаны 1,конвективный пучок и образующие топочную камеру 2 левый топочный экран (газоплотная перегородка), правый топочный экран, трубы экранирования фронтальной стенки топки и задний экран.
Снизу в топку подается нужный для сгорания топлива воздух посредством дутьевых вентиляторов 3.Процесс горения топлива протекает при высоких температурах, поэтому экранные трубы котла воспринимают значительное количество тепла путем излучения.
Продукты сгорания топлива, называемые иначе газами , поступают в котельные газоходы , при этом обогревается поверхность пароперегревателя 4, омывают трубы экономайзера 6, в котором происходит подогрев питательной воды до температуры, близкой к 200° С, поступающей в барабаны котла 1.Далее дымовые газы проходят в дымоход 5 и поступают в воздухоподогреватель7.Из него газы через дымовую трубу выходят в атмосферу. Вода в котел подается по трубопроводу 9, газ-трубопроводу10.Пар из барабана котла, минуя пароперегреватель 4, поступает на паропровод 11.
Одним из важнейших показателей конструкции котлоагрегата является его циркуляционная способность. Равномерная и интенсивная циркуляция воды и паровой смеси способствует смыванию со стены пузырьков пара и газа, выделяющихся из воды, а так же препятствует отложению на стенках накипи, что в свою очередь обеспечивает невысокую температуру стенок(200-400 С), ненамного превышающую температуру насыщения и еще не опасную для прочности котельной стали. Паровой котел ДЕ -10-14 Г принадлежит к котлам естественной циркуляцией.
Схема конструкции объекта.
1- экранные трубы; 2- верхний барабан; 3- манометр; 4- предохранительные клапаны; 5- трубы питательной воды; 6- сепаратор пара; 7- предохранительная пробка; 8- камера догорания; 9- перегородки; 10- конвективные трубки; 11- обдувочное устройство; 12- нижний барабан; 13- продувочный трубопровод.
Рис.14
1.3. Обоснование необходимости автоматизации технологических параметров.
Регулирование питания котельных агрегатов и регулирование давления в барабане котла главным образом сводится к поддержанию материального баланса между отводом пара и подачей воды. Параметром, характеризующим баланс, является уровень воды в барабане котла. Надежность работы котельного агрегата во многом определяется качеством регулирования уровня. При повышении давления, снижение уровня ниже допустимых пределов, может привести к нарушению циркуляции в экранных трубах, в результате чего произойдет повышение температуры стенок обогреваемых труб, и их пережег.
Повышение уровня также ведет к аварийным последствиям, так как возможен заброс воды в пароперегреватель, что вызовет выход его из строя. В связи с этим, к точности поддержания заданного уровня предъявляются очень высокие требования. Качество регулирования питания также определяется равенством подачи питательной воды. Необходимо обеспечить равномерное питание котла водой, так как частые и глубокие изменения расхода питательной воды могут вызвать значительные температурные напряжения в металле экономайзера.
Барабанам котла с естественной циркуляцией присуща значительная аккумулирующая способность, которая проявляется в переходных режимах. Если в стационарном режиме положение уровня воды в барабане котла определяется состоянием материального баланса, то в переходных режимах на положение уровня влияет большое количество возмущений. Основными из них являются изменение расхода питательной воды, изменение паросъема котла при изменении нагрузки потребителя, изменение паропроизводительности при изменении при изменении нагрузки топки, изменение температуры питательной воды.
Регулирование соотношения газ-воздух необходимо как чисто физически, так и экономически. Известно, что одним из важнейших процессов, происходящих в котельной установке, является процесс горения топлива. Химическая сторона горения топлива представляет собой реакцию окисления горючих элементов молекулами кислорода. Для горения используется кислород, находящийся в атмосфере. Воздух в топку подается в определенном соотношении с газом посредством дутьевого вентилятора. Соотношение газ-воздух примерно составляет 1.10. При недостатке воздуха в топочной камере происходит неполное сгорание топлива. Не сгоревший газ будет выбрасываться в атмосферу, что экономически и экологически не допустимо. При избытке воздуха в топочной камере будет происходить охлаждение топки, хотя газ будет сгорать полностью, но в этом случае остатки воздуха будут образовывать двуокись азота, что экологически недопустимо, так как это соединение вредно для человека и окружающей среды.
Система автоматического регулирования разряжения в топке котла сделана для поддержания топки под наддувом, то есть чтобы поддерживать по
стоянство разряжения (примерно 4мм. вод. ст.). При отсутствии разряжения пламя факела будет прижиматься, что приведет к обгоранию горелок и нижней части топки. Дымовые газы при этом пойдут в помещение цеха, что делает невозможным работу обслуживающего персонала.
В питательной воде растворены соли, допустимое количество которых определяется нормами. В процессе парообразования эти соли остаются в котловой воде и постепенно накапливаются. Некоторые соли образуют шлам – твердое вещество, кристаллизующееся в котловой воде. Более тяжелая часть шлама скапливается в нижних частях барабана и коллекторов.
Повышение концентрации солей в котловой воде выше допустимых величин может привести к уносу их в пароперегреватель. Поэтому соли, скопившиеся в котловой воде, удаляются непрерывной продувкой, которая в данном случае автоматически не регулируется. Расчетное значение продувки парогенераторов при установившемся режиме определяется из уравнений баланса примесей к воде в парогенераторе. Таким образом, доля продувки зависит от отношения концентрации примесей в воде продувочной и питательной. Чем лучше качество питательной воды и выше допустимая концентрация примесей в воде, тем доля продувки меньше. А концентрация примесей в свою очередь зависит от доли добавочной воды, в которую входит, в частности, доля теряемой продувочной воды.
Сигнализация параметров и защиты, действующие на останов котла, физически необходимы, так как оператор или машинист котла не в силах уследить за всеми параметрами функционирующего котла. Вследствие этого может возникнуть аварийная ситуация. Например, при упуске воды из барабана, уровень воды в нем понижается, вследствие этого может быть нарушена циркуляция и вызван, пережег труб донных экранов. Сработавшая без промедления защита, предотвратит выход из строя парогенератора. При уменьшении нагрузки парогенератора, интенсивность горения в топке снижается. Горение становится неустойчивым и может прекратиться. В связи с этим предусматривается защита по погашению факела.
Надежность защиты в значительной мере определяется количеством, схемой включения и надежностью используемых в ней приборов. По своему действию защиты подразделяются на действующие, на останов парогенератора; снижение нагрузки парогенератора; выполняющие локальные операции.
Технологические параметры.
Таблица 1.1.
| Параметр | ед. изм. | min | норма | max. |
| Производительность | т/ч | 9,5 | 10,0 | 10,5 |
| Температура перегретого пара | С | 535 | 540 | 545 |
| Давление в барабане котла | МПа | 1,33 | 1,40 | 1,47 |
| Температура питательной воды после экономайзера | С | 190 | 200 | 210 |
| Расход природного газа | м/ч | 237,5 | 250,0 | 262,5 |
| Содержание О в отходящих газах | % | 1,33 | 1,40 | 1,47 |
| Температура отходящих газов | С | 180,5 | 190,0 | 199,5 |
| Давление газа перед горелками | МПа | 0,0475 | 0,0500 | 0,0525 |
| Разрежение в топке | мм. вод. ст. | 4,75 | 5,00 | 5,25 |
| Уровень в барабане | мм | -100 | 0 | +100 |
| Расход питательной воды | м/ч | 17 | ||
| Давление питательной воды | МПа | 1,805 | 1,900 | 1,995 |
Основные данные теплового расчёта котла ДЕ
Таблица 1.2
| НАИМЕНОВАНИЕ | ДЕ-10-14ГМ | |
| Мазут | Газ | |
| КПД котла, % | 93,8 | 82,7 |
| Расчётный расход топлива Вр, кг/ч, м /ч | 750 | 800 |
| Объём топочной камеры, м3 | 17,14 | |
| Лучевоспринимающая поверхность нагрева Нл, м | 38,96 | |
| Полная поверхность стен топки Не,., м2 | 41,47 | |
| Коэффициент избытка воздуха на выходе из топки ат | 1,58 | 1,55 |
| Температура газов на выходе из топки t ,°С | 1170 | 1110 |
| Тепловая нагрузка экранов qE, кВт/ м2 | 946,1 | 888,9 |
| Видимое тепловое напряжение топочного объёма, qv кВт/м3 | 441,1 | 436,4 |
| Расположение труб котельного пучка | Коридорное | |
| Расчётная поверхность нагрева Нр, м | 117,69 | |
| Сечение для прохода газов F, м2 | 0,41 | |
| Средняя скорость газов со, м/с | 18,0 | 16,9 |
| Коэффициент теплопередачи К, Вт/(м хК) | 233,6 | 287,9 |
| Температура газов за пучками t, °С | 306 | 264 |
| Тип чугунного экономайзера ВТИ | ВЭ-Х11-16п-2м | |
| Поверхность нагрева Нэк, м2 | 236 | |
| Средняя скорость газов сог, м/с | 8,0 | 7,37 |
| Коэффициент теплопередачи К, Вт/(м хК) | 57,7 | 73,8 |
| Температура воды на выходе из экономайзера t,°C | 133 | 130 |
| Температура газов за экономайзером t эк ,°С | 172 | 143 |
2.СПЕЦИАЛЬНАЯ ЧАСТЬ
2.1 Выбор средств автоматизации















