Diplom_Krasnoselskaya (1004304), страница 6
Текст из файла (страница 6)
- количество буронабивных столбов
Несущая способность буронабивного столба определяется.
, (2.1.3.8)
где,
- площадь поперечного сечения опоры
- расчетное сопротивление грунта под нижним концом столбчатой опоры,
-толщина слоя грунта
-расчётное сопротивление грунта или грунтового раствора сдвигу по боковой поверхности фундамента в пределах
=98 кПа ,расчетное сопротивление песок пылеватый
=147 кПа ,расчетное сопротивление песок мелкий средний
=0 кПа, расчетное сопротивление ила .
=1470 кПа, расчетное сопротивление галечник с щебенистым грунтом с супесчаным заполнением.
- толщина 1-го слоя грунта, соприкасающегося с боковой поверхностью опор ;
- толщина 2-го слоя грунта, соприкасающегося с боковой поверхностью опор ;
- толщина 3-го слоя грунта, соприкасающегося с боковой поверхностью опор ;
- толщина 4-го слоя грунта, соприкасающегося с боковой поверхностью опор ;
кН/
(2.1.3.9)
где F- расчетная вертикальная нагрузка на столб
- несущая способность столба
<
кН/
ВЫВОД:Условие выполняется принимаем 4 столба по 21,7м . Запас прочности превосходит в ≈1.81 раз но из за слабых грунтов находящихся выше несущего таких как «ил» с прочностью 0 кПа и «песок с органикой» с прочностью 98 кПа и из условия что объект находится в районе с сейсмичностью в 8 балок. Принимаем и в последующих вариантах глубину заложения в 21,7м по 4 буронабивных столба.
2.2. Вариант 2
Во втором варианте принята схема 2Х18,2м. Пролетные строения принимаются балочно-разрезной системы, представляет собой металлические балочное пролетное строения с ездой по верху на балласте. Инвентарный № 2210-КМ. Беговые опоры безростверкные на 4 буронабивных столбах диаметром 1.5м, промежуточные опоры безростверкные с 2 буронабивными столбами.
2.2.1. Определение фактического отверстия моста.
Фактическое отверстие моста определяется по формуле (2.1.1.):
Проверка обеспеченности фактического отверстия проверяется в приделах :
Условие выполняется следовательно к дальнейшей разработке принимается схема моста 2х18,0.
Рисунок 2.2.1 . Схема второго варианта.
2.2.2. Определение отметок моста .
2.2.3. Определение размеров промежуточной опоры
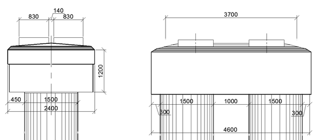
Назначение размеров опор принимаем исходя из размеров опорных частей и зазора между пролётными строениями. Схема опоры представлена на рисунке 2.2.3.1.
Рисунок 2.2.3.1. - Схема для определения размеров опор
Определение зазора выполняется по формуле:
где
- зазор между пролетными строениями; (2.2.3.2.)
- удлинение пролётного строения вследствие его линейного температурного расширения:
где
- коэффициент температурного линейного расширения;
- полная длина пролётного строения
расчётный перепад температур в зоне мостового перехода;
- удлинение пролётного строения вследствие воздействия на него постоянной и временной нагрузки, определяется по формуле:
где
- погонная временная нагрузка;
- погонная постоянная нагрузка из типового проекта;
- расчетное сопротивление стали 15ХСНД;
- расчетный пролет балки;
- коэффициент, учитывающий прогиб пролетного строения.
.
, - полные длины пролетных строений;
, - расчетные длины пролетных строений;
.
Учитывая найденный выше зазор и размеры опорных частей определим минимальные размеры опоры:
,
где
- размер подвижной опорной части вдоль оси моста;
- размер нижней опорной подушки поперек оси моста;
- расстояние от края опорной части до края подферменной площадки;
- расстояние от края подферменной площадки до края насадки;
- расстояние от грани подферменника до края насадки;
Учитывая так же, условия размещения свай оболочек в насадке принимаем окончательные размеры опоры:
Из размещения буронабивных столбов :
-
вдоль оси моста a=2.4 м ;
-
поперёк оси моста b=4.6м.
2.2.4. Местный размыв у промежуточной опоры промежуточной опоры
Глубину местного размыва в неоднородном по крупности несвязном грунте (песке) у опоры определяют в данном случае по формуле:
где
, (2.2.4.2.)
- средний диаметр частиц слоя отмостки и их содержание в грунте (по массе), принимается равным среднему диаметру крупных включений,
где:
- средний диаметр крупных включений (гравий) материала (песка);
- содержание (в долях) крупных включений в грунте;
2.2.5 Разработка промежуточной опоры моста.
Во втором варианте моста применяем безростверкную промежуточная опора на буронабивных столбах диаметром 1.5 м .
Рисунок 2.2.5.1.- Расчетная схема промежуточной опоры.
Проверка глубины заложения буронабивных столбов из расчета по несущей способности.
(2.2.5.1.)
где N- суммарная нагрузка, находится по формуле (2.1.3.1.)
-временная нагрузка, находится по формуле (2.1.3.2.)
- постоянная нагрузка, находится по формуле (2.1.3.4.)
кН
Временной нагрузка, приходящейся на промежуточную опору определяется по формуле:
(2.2.5.2.)
где, ω_(л.вл)- площадь линии влияния, находится по формуле (2.2.5.3.)
γ_fV – коэффициент надежности для временной нагрузки [10]
v - интенсивность временной нагрузки прил.5 [10]
μ - динамический коэффициент
ω_(л.вл)=λ*1*0.5 (2.2.5.3.)
ω_(л.вл)=(18,2*2)*1*0.5=18,25
где, λ-длина линии влияния
∆ -температурный зазор
Постоянная нагрузка, приходящейся на промежуточную опору определяется по формуле (2.2.5.4.)
(2.2.5.4.)
где ,
- коэффициент надежности для постоянной нагрузки от мостового полотна с ездой на балласте;
-интенсивность постоянной нагрузки от мостового полотна с ездой на балласте , расчитывается по формуле (2.2.5.5.);
- коэффициент надежности для постоянной нагрузки от мостового полотна с ездой на балласте;
- интенсивность постоянной нагрузки от пролетного строения;
- интенсивность постоянной нагрузки от тротуаров с перилами;
- коэффициент надежности для постоянной нагрузки;
- вес опоры , вычисляется по формуле (2.2.5.6.)
(2.2.5.5.)
где,
-объем балласта
- удельный вес балласта
(2.2.5.6.)
где,
-удельный вес бетона
-объём опоры
где ,
-объем насадки, находящаяся по формуле :
,где b –ширина насадки ;l-длина насадки ;h- высота насадки
-объем буронабивного столба , находящаяся по формуле :
,где l-длина БНС;
- площадь пяты опирания столба; -кол-во столбов
Для более точного расчета принимаем по рекомендациям Москва 2001 года «типовые пролетные строения 2210 КМ»
=1021
Проверка несущей способности буронабивных столбов выполняется по формуле(2.1.3.7).
, ( 2.2.5.7.)
где,
- площадь поперечного сечения опоры
кН/м2 - расчетное сопротивление грунта под нижним концом столбчатой опоры,
-расчётное сопротивление грунта или грунтового раствора сдвигу по боковой поверхности фундамента в пределах
=98 кПа ,расчетное сопротивление песок пылеватый
=147 кПа ,расчетное сопротивление песок мелкий средний
=0 кПа, расчетное сопротивление ила.
=1470 кПа, расчетное сопротивление галечник с щебенистым грунтом с супесчаным заполнением.
- толщина 1-го слоя грунта, соприкасающегося с боковой поверхностью опор ;
- толщина 2-го слоя грунта, соприкасающегося с боковой поверхностью опор ;
- толщина 3-го слоя грунта, соприкасающегося с боковой поверхностью опор ;
- толщина 4-го слоя грунта, соприкасающегося с боковой поверхностью опор ;
кН/
(2.2.5.8.)
где F- расчетная вертикальная нагрузка на столб
- несущая способность столбов
<
кН/
ВЫВОД:Условие выполняется принимаем 2 столба по 21,7 м . Запас прочности превосходит в ≈1,38 раз но из за слабых грунтов находящихся выше несущего таких как «ил» с прочностью 0 кПа и «песок с органикой» с прочностью 98 кПа из условия что объект находится в районе с сейсмичностью в 8 балок. Принимаем и в последующих вариантах глубину заложения в 21.7м
2.2.6 Разработка береговой опоры моста.
Конструкцию верха опоры принимаем аналогично первому варианту так она минимальна – безростверкную, во втором варианте проверяем конструкцию фундамента т.к. схема загружения не совпадет с первым вариантом.














