Для студентов МГТУ им. Н.Э.Баумана по предмету Технология производства машин (МТ-3)Проектирование технологического процесса обработки детали «Корпус» и приспособлений «Кондуктор» Проектирование технологического процесса обработки детали «Корпус» и приспособлений «Кондуктор»
5,0051
2021-06-262021-06-26СтудИзба
Курсовая работа: Проектирование технологического процесса обработки детали «Корпус» и приспособлений «Кондуктор»
Описание
Проектирование технологического процесса обработки детали «Корпус» и приспособлений «Кондуктор»
технологический процесс изготовления Детали «Корпус»;
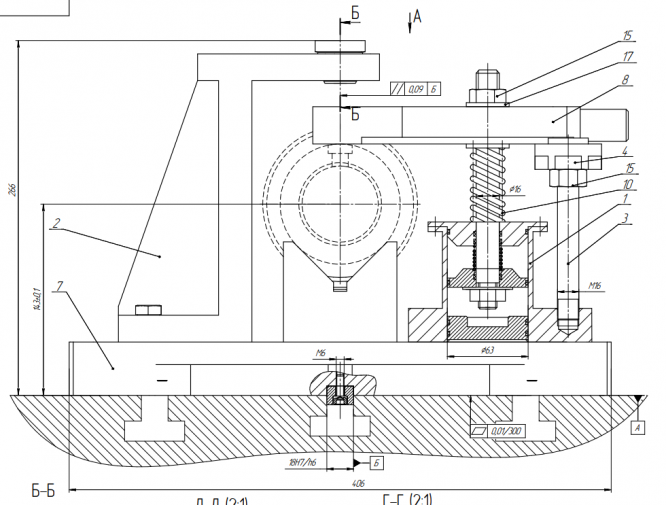
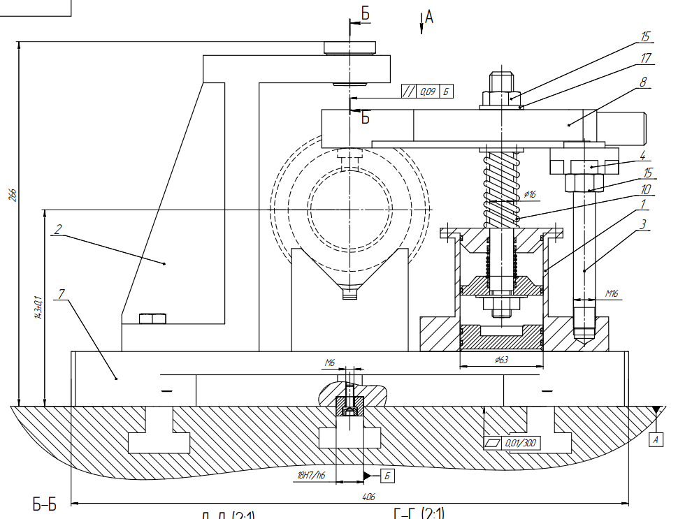
конструкцию специального приспособления «Разжимная оправка», «Кондуктор»;
технологический процесс сборки приспособления «Кондуктор».
технологический процесс изготовления Детали «Корпус»;
конструкцию специального приспособления «Разжимная оправка», «Кондуктор»;
технологический процесс сборки приспособления «Кондуктор».
Характеристики курсовой работы
Учебное заведение
Просмотров
47
Размер
2,48 Mb
Список файлов
Курсовой проект Производство технологических машин
1c1dd78b-0448-f32e-63f4-ef7eabbf59f3.pdf
22c3c7ed-f2eb-c6b5-f8f4-c5d08b470c9d.pdf
4102e21c-7fea-bd71-5056-1c7b7aa94521.pdf
5946c054-2e9b-7aae-e5b5-2a31f601619f.pdf
7945d48d-47cb-d34f-2598-78a2abf423c1.pdf
a68e27e5-80b3-169a-8827-b6fc2f9cbf15.pdf
c77a30cc-6a60-1501-4721-c237dfd008ef.pdf
Комментарии
Нет комментариев
Стань первым, кто что-нибудь напишет!
МГТУ им. Н.Э.Баумана


















