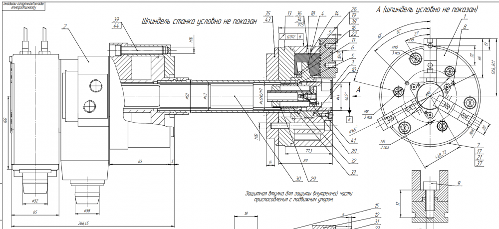
Для студентов МГТУ им. Н.Э.Баумана по предмету Технология производства машин (МТ-3)Технологический процессизготовления детали типа стержень и приспособление трёхкулачковый патронТехнологический процессизготовления детали типа стержень и приспособление трёхкулачковый патрон
5,00527
2021-06-262021-06-26СтудИзба
Курсовая работа: Технологический процессизготовления детали типа стержень и приспособление трёхкулачковый патрон
Описание
Характеристики курсовой работы
Учебное заведение
Просмотров
32
Размер
2,38 Mb
Список файлов
Курсовой проект по дисциплине Проектирование технологической оснастки
Выбор заготовки.pdf
МТП.pdf
ОТП 2.pdf
ОТП.pdf
Приспособления.pdf
РПЗ.pdf
Сборка приспособления.pdf

МГТУ им. Н.Э.Баумана


















