145008 (620878)
Текст из файла
МИНИСТЕРСТВО ОБРАЗОВАНИЯ И НАУКИ РОССИЙСКОЙ ФЕДЕРАЦИИ
Федеральное агентство по образованию
МОСКОВСКИЙ ГОСУДАРСТВЕННЫЙ СТРОИТЕЛЬНЫЙ УНИВЕРСИТЕТ (МГСУ)
Факультет ПГС-о
Кафедра Металлические конструкции
КУРСОВОЙ ПРОЕКТ
По дисциплине Металлические конструкции
Тема: Проектирование и расчет балочной клетки
Выполнил студент
Поздняков Н.В., ПГС-о, IV курс, 2 группа
Руководитель проекта
Морозова Д.В.
МЫТИЩИ 2005 г.
Содержание
1. Исходные данные
2. Выбор схемы балочной клетки
2.1 Расчет настила
2.2 Усложненный тип балочной клетки
3. Проектирование и расчет главных балок
3.1 Изменение сечения главной балки по длине
3.2 Проверка прочности и общей устойчивости главной балки
3.3 Проверка местной устойчивости сжатого пояса и стенки сварной балки
3.4 Расчет поясных швов главной балки
3.5 Расчет опорного ребра главной балки
3.6 Проектирование стыка главной балки на высокопрочных болтах
3.7 Проектирование сварного стыка главной балки
4. Проектирование и расчет колонн
4.1 Расчетная схема и расчетная длина колонны
4.2 Определение продольной силы в колонне, выбор типа сечения колонны
4.3 Подбор сечения, проверка общей устойчивости колонн и местной устойчивости стенки и полок
4.4 Расчет и конструирование оголовка колонны
4.5 Расчет и конструирование базы колонны
Список используемой литературы
1. Исходные данные
| Шаг колонн в продольном направлении А, м | 16 |
| Шаг колонн в поперечном направлении B, м | 6 |
| Габариты площадки в плане | 3Ах3В |
| Отметка верха настила, м | 9 |
| Строительная высота перекрытия, м | не ограничена |
| Временная равномерно распределенная нагрузка, кН/м2 | 22 |
| Материал конструкций: настила балок настила и вспомогательных главных балок колонн фундамента | сталь С235 сталь С245 сталь С255 сталь С275 бетон В12,5 |
| Допустимый относительный прогиб настила | 1/120 |
| Тип сечения колонны Сопряжение колонны с фундаментом | сплошная шарнирное |
2. Выбор схемы балочной клетки
балочная клетка настил прочность колонна
2.1 Расчет настила
Несущий настил состоит из стального листа, уложенного на балки и приваренного к ним.
Уже заранее зная оптимальную толщину настила, приведем подбор настила и балок настила именно для этой толщины.
По графику зависимости l/t для листового настила шарнирно закрепленными краями от заданного прогиба и нормативной нагрузки на настил получаем l/t=150.
Определим расход металла при толщине настила t = 6 мм и t = 12 мм.
При t = 6 мм
l=150х6=900 мм, тогда число балок настила равно n=16000/900= =17,78 шагов или 18 балок.
Принимаем n = 18 , a1= 900 мм.
Схема нормального типа балочной клетки при t=6 мм и а1=900 мм
При t = 12 мм
l=150х12=1800 мм, т.к. рекомендованный шаг балок настила находиться в пределах от 750 до 1200 мм, то принимаем l=1200 мм, тогда число балок настила равно n=16000/1200=13,33 шага или 14 балок. Принимаем n = 14, a2 = 1200 мм.
Схема нормального типа балочной клетки при t=12 мм и а2=1200 мм
2.1.1 Рассматриваем 1 вариант при tн = 6 мм
Толщина настила tн = 6 мм
Вес настила = 7,85 г/см3 = 7850 кг/м3
при tн = 6 мм вес gn= 0,471 кН/м2
Расчетная схема балок настила
Нормативная нагрузка на балку настила
qn = (pn +gn)·a1 = (22+0,471)·0,9 = 20,22 кН/м
Расчетная нагрузка на балку настила
q = (p·pn + g·gn)· a1 = (1,2·22 + 1,05·0,471)·0,9 =24,21 кН/м
p = 1,2, g = 1,05 – коэффициенты надежности
Расчетный изгибающий момент (длина балки настила 6 м)
кНм = 10892 кНсм.
Требуемый момент сопротивления балки настила:
см3.
При условии Wx>Wтр по ГОСТ 8239-72 принимаем стальной горячекатанный двутавр № 30 с уклоном внутренних граней полок. Для него из сортамента выписываем: Wx = 472 см3; Ix = 7080 см4; g = 36,5 кг/м, ширина полки b=135 мм.
Так как W = 472 см3 Wр,тр = 412,58 см3, то проверяем только прогиб балки настила по формуле:
,
здесь l – длина изгибаемой балки, в нашем случае это В=600 см.
см.
По формуле находим, что наибольший допустимый прогиб для балки такой длины составляет:
см.
f = 2,34 < 2,4 = [f], следовательно принятая балка удовлетворяет условиям прочности и прогиба. Проверку касательных напряжений в прокатных балках при отсутствии ослабления опорных сечений обычно не производят, так как она легко удовлетворяется из-за относительно большой толщины стенок балок.
Общую устойчивость балок настила проверять не надо, так как их сжатые пояса надежно закреплены в горизонтальном направлении приваренным к ним настилом.
Выбранная балка настила проходит по всем проверкам.
Вычислим общую массу настила и балок настила на одном пролете:
кг,
тогда расход металла на 1 м2 будет:
кг/м2.
2.1.2 Рассматриваем 2 вариант при tн = 12 мм
Толщина настила tн = 12 мм
Вес настила = 7,85 г/см3 = 7850 кг/м3
при tн = 12 мм вес gn= 0,942 кН/м2
Нормативная нагрузка на балку настила
qn = (pn +gn)·a2 = (22+0,942)·1,2 = 27,53 кН/м
Расчетная нагрузка на балку настила
q = (p·pn + g·gn)·a2 = (1,2·22 + 1,05·0,942)·1,2 =32,87 кН/м
p = 1,2, g = 1,05 – коэффициенты надежности
Расчетный изгибающий момент (длина балки настила 6 м)
кНм = 14790 кНсм.
Требуемый момент сопротивления балки настила:
см3.
При условии Wx>Wтр по ГОСТ 8239-72 принимаем стальной горячекатанный двутавр № 33 с уклоном внутренних граней полок. Для него из сортамента выписываем: Wx = 597 см3; Ix = 9840 см4; g = 42,2 кг/м, ширина полки b=140 мм.
Так как W = 597 см3 Wр,тр = 560,23 см3, то проверяем только прогиб балки настила по формуле:
,
здесь l – длина изгибаемой балки, в нашем случае это В=600 см.
см.
По формуле находим, что наибольший допустимый прогиб для балки такой длины составляет:
см.
f = 2,29 < 2,4 = [f], следовательно принятая балка удовлетворяет условиям прочности и прогиба. Проверку касательных напряжений в прокатных балках при отсутствии ослабления опорных сечений обычно не производят, так как она легко удовлетворяется из-за относительно большой толщины стенок балок.
Общую устойчивость балок настила проверять не надо, так как их сжатые пояса надежно закреплены в горизонтальном направлении приваренным к ним настилом.
Вычислим общую массу настила и балок настила на одном пролете:
кг,
тогда расход металла на 1 м2 будет:
кг/м2.
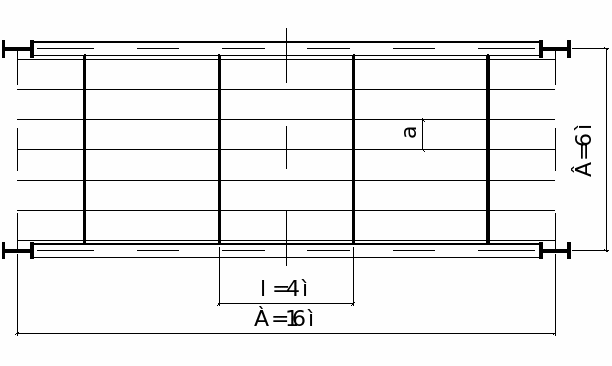
2.2 Усложненный тип балочной клетки
В усложненном типе балочной клетки балки настила, в отличии от нормального типа, опираются не на главные балки, а на вспомогательные.
Выберем шаг вспомогательных балок - l. Он должен быть в пределах от 3 до 4 м. Примем l = 4 м, т.е. при разбиении А=16 м на 4 части.
Схема усложненного типа балочной клетки.
Подбор настила
Настил будем выбирать из соображений экономии металла и принятой за минимальный шаг балок настила 900 мм.
Число балок настила равно n = 6000/900 = 6,67 шагов или 7 балок.
Толщина настила tн = 6 мм вес gn= 0,471 кН/м2
Нормативная нагрузка на балку настила
qn = (pn +gn)·a = (22+0,471)·0,9 = 20,22 кН/м
Расчетная нагрузка на балку настила
q = (p·pn + g·gn)·a = (1,2·22 + 1,05·0,471)·0,9 =24,21 кН/м
p = 1,2, g = 1,05 – коэффициенты надежности
Расчетная схема балок настила
Расчетный изгибающий момент (длина балки настила 4 м)
кНм = 4842 кНсм.
Требуемый момент сопротивления балки настила:
см3.
При условии Wx>Wтр по ГОСТ 8239-72 принимаем стальной горячекатанный двутавр № 22 с уклоном внутренних граней полок. Для него из сортамента выписываем: Wx = 232 см3; Ix = 2550 см4; g = 24 кг/м, ширина полки b=110 мм.
Проверим подобранную балку настила на наличие пластических деформаций:
кН/см2 < 24 кН/см2.
Проверяем прогиб балки настила по формуле:
,
здесь l – длина изгибаемой балки, в нашем случае это l=400 см.
см.
По формуле находим, что наибольший допустимый прогиб для балки такой длины составляет:
см.
f = 1,28 < 1,6 = [f], следовательно принятая балка удовлетворяет условиям прочности и прогиба. Проверку касательных напряжений в прокатных балках при отсутствии ослабления опорных сечений обычно не производят, так как она легко удовлетворяется из-за относительно большой толщины стенок балок.
Общую устойчивость балок настила проверять не надо, так как их сжатые пояса надежно закреплены в горизонтальном направлении приваренным к ним настилом.
Определение силы растягивающая настил и катет сварного шва
По первому предельному состоянию найдем распор Н:
кН/см.
- приведенный модуль жесткости.
Таким образом для нашего случая получим
кН/см2,
Определим катет шва сварного соединения настила и балки настила:
, (2)
Характеристики
Тип файла документ
Документы такого типа открываются такими программами, как Microsoft Office Word на компьютерах Windows, Apple Pages на компьютерах Mac, Open Office - бесплатная альтернатива на различных платформах, в том числе Linux. Наиболее простым и современным решением будут Google документы, так как открываются онлайн без скачивания прямо в браузере на любой платформе. Существуют российские качественные аналоги, например от Яндекса.
Будьте внимательны на мобильных устройствах, так как там используются упрощённый функционал даже в официальном приложении от Microsoft, поэтому для просмотра скачивайте PDF-версию. А если нужно редактировать файл, то используйте оригинальный файл.
Файлы такого типа обычно разбиты на страницы, а текст может быть форматированным (жирный, курсив, выбор шрифта, таблицы и т.п.), а также в него можно добавлять изображения. Формат идеально подходит для рефератов, докладов и РПЗ курсовых проектов, которые необходимо распечатать. Кстати перед печатью также сохраняйте файл в PDF, так как принтер может начудить со шрифтами.
















