144733 (620710), страница 4
Текст из файла (страница 4)
От нормативной нагрузки:
Nk,n = Gk,n + Ll [P0,n (nэ - 1) + P1,n] =
= 106,31 + 7,87,8 [11,07 (5 - 1) + 5,30] = 3 123 кН.
От расчётной нагрузки:
Nk = n (Gk + Ll [P0 (nэ - 1) + P1]) =
= 0,95 (116,94 + 7,87,8 [13,091 (5 - 1) + 6,513]) = 3 514 кН.
3. Расчёт и конструирование предварительно напряженной панели перекрытия
3.1 Характеристики прочности бетона и арматуры
Бетон
Применяем тяжелый бетон класса В40 (по заданию), подвергнутый тепловой обработке при атмосферном давлении.
Расчётное сопротивление сжатию Rb = 22,0 МПа (табл.13 СНиП [2]).
Бетон находится под воздействием длительной нагрузки, поэтому в расчетах умножаем его расчётное сопротивление на коэффициент условий работы γb2 = 0,9 (табл.15 СНиП [2]).
Арматура
Продольная рабочая арматура панели - предварительно напрягаемая, класса А-VI (А1000) - по заданию.
Сопротивление растяжению:
нормативное Rsn = 980 МПа (табл. 19* СНиП [2]),
расчётное Rs = 815 МПа (табл.22* СНиП [2]).
Полка панели армируется сеткой из проволочной арматуры класса Вр-I (В500).
Расчётное сопротивление растяжению Rs = 410 МПа (табл.23* СНиП [2]).
3.2 Предварительное напряжение арматуры
Предварительно напряженная арматура - это арматура, получающая начальные (предварительные) напряжения в процессе изготовления конструкций до приложения внешних нагрузок в стадии эксплуатации.
3.2.1 Методы натяжения арматуры
Существуют два метода натяжения арматуры: натяжение на упоры и натяжение на бетон. Натяжение на бетон применяется, как правило, только в монолитных конструкциях.
Используем метод натяжения арматуры на упоры, так как он наиболее целесообразен в условиях заводского изготовления железобетонных конструкций.
Арматура до бетонирования натягивается и затем фиксируется в натянутом состоянии на жестком стенде или форме. После укладки в форму бетона и набора им необходимой передаточной прочности арматура освобождается от натяжных приспособлений. Арматура, стремясь сократиться, обжимает бетон, а сама остается растянутой.
3.2.2 Способы натяжения арматуры
Существует 4 способа натяжения арматуры (из них получили распространение только первые два):
Механический (с помощью домкратов, рычагов, грузов).
Электротермический (с помощью эл. тока).
Электротермомеханический (комбинированный).
Физико-химический (самонапряжение).
Используем электротермический способ натяжения, так как он является наиболее распространённым благодаря своей простоте, малой трудоёмкости и сравнительно низкой стоимости оборудования.
Стержни арматуры нагревают до температуры 300…350ºС с помощью электротока и в нагретом состоянии закрепляют в упорах формы. При остывании стержни, стремясь сократиться, натягиваются, что используется для обжатия бетона. Точность этого метода по сравнению с остальными более низкая. Кроме того, этот способ достаточно энергоёмкий и не может применяться для натяжения арматуры классов Aт-VII, B-II, Bр-II, К-7, К-19.
3.2.3 Величина предварительных напряжений в арматуре
Допустимое отклонение значения предварительного напряжения при электротермическом способе натяжения определяются по формуле (2) СНиП [2]:
,
где l - длина натягиваемого стержня (расстояние между наружными гранями упоров): l = 7,8 м.
В соответствии с формулой (1) СНиП [2] установим пределы, в которых можно назначать величину предварительного напряжения в арматуре:
sp 0,3 Rsn + p = 0,3980 + 76,15 = 370,15 МПа;
sp Rsn - p = 980 - 76,15 = 903,85 МПа.
Границы этого интервала установлены на основе следующих соображений:
при высоких значениях предварительных напряжений существует опасность разрыва арматурной стали или её проскальзывания в захватах при натяжении; опасность разрушения бетона или образования в нём трещин вдоль напрягаемой арматуры.
низкие значения предварительных напряжений неэффективны, т.к. почти всё напряжение будет утрачено в результате потерь.
Величина предварительного напряжения назначается обычно близкой к верхнему пределу: σsp 0,9Rsn = 0,9980 = 882 МПа. Принимаем σsp = 800 МПа.
Передаточная прочность бетона Rbp - это прочность бетона к моменту его обжатия усилием натяжения арматуры.
Передаточная прочность бетона назначается не менее (п.2.6* СНиП [2]):
Rbp 0,5 B = 0,540 = 20 МПа, где В - класс бетона, В = 40 МПа.
Rbp 15,5 МПа.
Принимаем Rbp = 20 МПа.
Возможные производственные отклонения от заданного значения предварительного напряжения арматуры учитываются в расчётах коэффициентом точности натяжения арматуры γsp:
sp = 0,9 - при благоприятном влиянии предварительного напряжения;
sp = 1,1 - при неблагоприятном влиянии предварительного напряжения.
Значение sp = 1,1 соответствует случаю, когда увеличение усилия обжатия сверх проектного неблагоприятно сказывается на работе конструкции, например, при расчёте прочности железобетонного элемента в стадии обжатия.
3.3 Граничная относительная высота сжатой зоны бетона
Граничное значение относительной высоты сжатой зоны бетона определяется по формуле (25) СНиП [2]:
,
где
ω - характеристика сжатой зоны бетона, определяемая по формуле (26) СНиП [2]:
ω = - 0,008 Rbb2 = 0,85 - 0,008 22 0,9 = 0,6916;
- коэффициент, учитывающий вид бетона; для тяжелого бетона = 0,85;
Rb здесь следует брать в МПа.
σsR - напряжение в арматуре, определяемое по формуле:
σsR = Rs + 400 - σspsp = 815 + 400 - 8000,9 = 495 МПа;
здесь используется значение sp = 0,9.
σsc,u - предельное напряжение в арматуре сжатой зоны, принимаемое при b2 < 1,0 равным σsc,u = 500 МПа.
Тогда
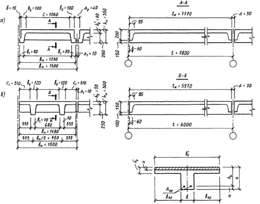
3.4 Опалубочные размеры панели
Опалубочные размеры необходимы для изготовления опалубочных форм сборных железобетонных элементов. Обычно предусматривается применение типовых опалубочных форм. Чертежи железобетонных элементов, на которых показано не армирование, а только наружные размеры элементов, называются опалубочными.
3.4.1 Основные габаритные размеры панели
а) номинальные - в осях. Эти размеры установлены в процессе компоновки конструктивной схемы каркаса здания:
длина ln = 7800 мм
ширина bn = 1300 мм
высота hn = 350 мм.
б) конструктивные - с учётом зазоров, которые необходимы:
для возможности свободной укладки сборных элементов при монтаже (зазор не менее 10 мм);
для возможности замоноличивания швов между элементами (зазор не менее 30 мм при высоте элементов более 250 мм, п.5.51 СНиП [2]).
Устраиваем зазоры (рис.3.1): Δ = 30 мм, Δ1 = 10 мм, тогда конструктивные размеры панели будут такими:
длина lk = ln - Δ = 7 800 - 30 = 7 770 мм,
ширина bk = bn - Δ1 =1 300 - 10 = 1 290 мм.
Принимаем величину уступа в поперечном сечении ребристой панели δ = 15 мм, тогда зазор Δ2:
Δ2 = Δ1 + 2δ = 10 + 2 · 15 = 40 мм > 30 мм,
требования СНиП выполнены.
3.4.2 Ширина продольного ребра панели
внизу (b1) принимается из условия обеспечения требуемой толщины защитного слоя бетона b1 ≥ 70…80 мм, принимаем b1 = 80 мм.
вверху (b2) принимается из условия обеспечения уклона граней ребра, равного 1/10:
в рёбристой панели:
;
в панели типа "2Т":
.
средняя ширина:
3.4.3 Размеры полки (плитной части)
ширина (расстояние в свету между продольными рёбрами):
в ребристой панели:
.
в панели типа 2Т:
консольный свес
.
толщина hf ≥ 50…60 мм, принимаем hf = 60 мм.
Поперечные рёбра
Поперечные ребра панели предусматриваются по её краям, и иногда - по длине пролета (мы их устанавливать не будем). Размеры поперечных ребер назначаем конструктивно (см. рис.3.1.)
3.5 Эквивалентное поперечное сечение панели
При расчете фактическое поперечное сечение панели заменяется эквивалентным тавровым сечением (рис.3.2.) Оно имеет ту же площадь и те же основные размеры.
В расчетах на трещиностойкость, которые мы выполнять не будем, используется приведённое сечение: площадь сечения арматуры приводится к площади сечения бетона, исходя из равенства их деформаций.
Рис.3.1
Поперечное и продольное сечение рёбристой панели (а) и панели типа "2Т" (б).
Рис.3.2
Эквивалентное поперечное сечение панели.
Полная высота сечения равна высоте панели: h = hn = 350 мм.
Полезная (рабочая) высота сечения h0 = h - a, где
а - расстояние от нижней растянутой грани сечения до центра тяжести продольной рабочей арматуры.
Принимаем а = 3 см, тогда h0 = 35 - 3 = 32 см.
Толщина стенки эквивалентного сечения равна суммарной толщине ребер:
b = 2bm = 2·9 = 18 см.
Толщина полки hf = 6 см.
Участки полки, удаленные от ребра, напряжены меньше, чем соседние участки. Поэтому ширина свеса полки в каждую сторону от ребра bef ограничивается двумя условиями (п.3.16 СНиП [2]); она должна быть:
не более 1/6 пролета элемента: bef ≤ l/6 = 7800/6 = 1300 мм.
в рёбристой панели, когда расстояние между поперечными ребрами больше, чем между продольными:
при hf ≥ 0,1h: bef ≤ с/2
при hf < 0,1h: bef ≤ 6 hf
В панели типа "2Т": bef ≤ c1, а также:
при hf ≥ 0,1h: bef ≤ 6 hf
при 0,05 h ≤ hf < 0,1h: bef ≤ 3 hf
при hf < 0,05 h: свесы не учитываются
В данной рёбристой панели 0,1h = 0,1·35 = 3,5 см < hf = 6 см, поэтому
bef ≤ c/2 = 106/2 = 53 см.
Принимаем bef = 53 см, тогда принимаемая в расчете ширина полки bf:
bf = 2 b2 + 2 bef = 2·10 + 2·53 = 126 см.
В панели типа "2Т": bf = 2 b2 + 2 bef + с.
3.5 Подбор продольной рабочей арматуры панели
Определение требуемой продольной рабочей арматуры производят с помощью вспомогательного коэффициента А0:
Все величины в расчётных формулах рекомендуется брать в кН и см:
М = 119,04 кН = 11 904 кН·см; Rb = 22 МПа = 2,2 кН/см2.
По значению коэффициента А0 находим значения относительной высоты сжатой зоны ξ = x / h0 и относительного плеча внутренней пары сил η0 = z0 / h0, используя специальную таблицу или предлагаемые аналитические зависимости:
,
η0 = 1 - 0,5ξ = 0,976.
Фактическая высота сжатой зоны:
х = ξ h0 = 0,047732 = 1,53 см < hf´ = 6 см,
















