125875 (593174), страница 6
Текст из файла (страница 6)
Если приводы электрооборудования, устанавливаемые на машине, изолированы от ее станины, то в их конструкции следует предусматривать устройства для самостоятельного заземления.
Вблизи оборудования должны быть вывешены инструкции по эксплуатации, схемы установки и трубопроводов, правила техники безопасности и правила оказания помощи пострадавшим.
Для оказания пострадавшим доврачебной помощи необходимо иметь в наличии индивидуальные средства защиты (аптечки).
Запрещается:
- включать установку при отсутствии защитного заземления или зануления электродвигателей, пусковых приборов, охлаждаемого оборудования и других металлических частей;
- эксплуатировать оборудование после истечения срока испытания изоляции электрической сети и защитного заземления; оно должно проводиться ежегодно с применением приборов;
- снимать защитные кожухи с токонесущих частей магнитных пускателей, клеммных коробок электродвигателей, приборов автоматики и других частей, находящихся под напряжением;
- снимать ограждения с движущихся и вращающихся частей агрегата;
- эксплуатировать оборудование при снятых защитных кожухах с частей оборудования, находящихся под напряжением;
- прикасаться к движущимся частям включенного в сеть агрегата независимо от того, находится он в работе или в периоде автоматической остановки;
- эксплуатировать оборудование при неисправных приборах автоматики и защиты;
- выполнять работы по ремонту оборудования, регулировке приборов лицам, не знакомым с работой машины;
- устанавливать на электрощитках самодельные предохранители (жучки) вместо стандартных плавких предохранителей (пробок).
3. Расчетная часть
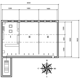
Рис. 18. План установки кондиционирования воздуха для столовой на 100 посадочных мест. I – кухня ; II – торговый зал.
Столовая находится на втором этаже типового двухэтажного здания. Наружная стена (восточная) выполнена из кирпичной кладки толщиной 370 мм. Внутренние стены также выполнены из кирпичной кладки толщиной 250 мм. Теплоизоляционное покрытие – плиты жесткие минераловатные - присутствует только у наружной стены.
Оконные проемы с двойным спаренным переплетом и расстоянием между стеклами 15 мм.
Кровля шатровая, покрытая профнастилом. Утеплителем кровли служит слой рубероида толщиной 20мм.
Высота потолков помещения – 3 м.
3.1 Тепловлажностный баланс кондиционируемого помещения
Расчетные параметры воздуха в кондиционируемых помещениях устанавливаются в результате притока и отвода тепла и влаги в эти помещения. Так, в летнее время, как правило, в помещениях выделяется избыточное количество тепла и влаги. Поэтому задача установки кондиционирования воздуха — охлаждение и осушение воздуха в помещении. В зимний период, наоборот, воздух, подаваемый в кондиционируемое помещение, нагревают и увлажняют для компенсации тепло- и влагопотерь кондиционируемых помещений.
Тепло, поступаемое в помещение (со знаком +) или уходящее из него (со знаком—), подсчитывают по формуле:
∑Q = Qл + Qоб + Qосв ± Qм ± Qогр + Qрад + Qинф, квт
где: Qл — тепловыделение от людей, вт;
Qо6 — тепловыделение от технологического оборудования;
Qосв — тепловыделение от осветительных приборов;
Qм—тепловыделение от обрабатываемых технологических материалов;
Qoгp — теплопоступление через ограждающие конструкции;
Qpaд — теплопоступление от солнечной радиации;
Qинф — теплопоступление от инфильтрации наружного воздуха.
Общее количество влаги, поступаемое в помещение (со знаком + ), либо поглощаемое в нем (со знаком —), подсчитывают по формуле:
∑W = Wл + Woб ± Wм + W инф кг/сек,
где Wл — влаговыделение от людей;
Wo6 — влаговыделение от технологического оборудования;
WM — влаговыделение от обрабатываемых материалов;
Wинф — влаговыделение от инфильтрации наружного воздуха
При расчете установки кондиционирования воздуха необходимо знать не только величину суммарных тепло- и влаговыделений, но и их отношение Eп.
EП = ∑Q/∑W кдж/кг.
Эта величина называется тепловлажностным отношением. Если помещение, в котором имеются постоянные теплопритоки ∑Q и влагопритоки ∑W, не оборудовано установкой кондиционирования воздуха, то параметры воздуха в помещении начнут изменяться (температура, влажность и энтальпия воздуха увеличиваются). Процесс этого изменения в i—d диаграмме изображается прямой линией, проходящей через точку П с заданными температурой и влажностью в помещении (пунктирная линия на рис. 18). Угол наклона этой линии зависит от величины EП. Чтобы удержать положение точки П (т. е. чтобы температура и влажность в помещении не менялись), в летнее время в помещение подают более холодный и более сухой воздух, состояние которого на рис. 18 обозначено точкой K. Эта точка тоже должна лежать на линии с наклоном Eп (но ниже точки П), так как только при этом условии воздух, поданный в помещение, одновременно поглотит избыток тепла ∑Q и избыток влаги ∑W, в результате чего положение точки П останется неизменным.
Положение точки К на линии с наклоном Еп определяется допустимой разностью (перепадом) температур ∆t между приточным воздухом (точка К) и воздухом в помещении (точка П).
Перепад температур выбирается, исходя из принятого способа распределения воздуха, а также высоты помещения. На практике для торговых залов предприятий общественного питания ∆t —4 : 8 °С.
Для производственных помещений при подаче воздуха в рабочую зону перепад ∆t принимается в пределах 6—9 °С, а при подаче воздуха под потолком — может быть увеличен до 12—14 °С
При этом меньшие значения ∆t соответствуют помещениям с высотой до 3,0 м.
Рис. 18. Изображение процесса изменения состояния воздуха в помещении в i—d диаграмме влажного воздуха.
3.2 Определение теплопритоков
Теплоприток от людей.
Количество тепла выделяемое людьми Qл (в Вт) подсчитывают по формуле:
Qл= qчел · n ,
где qчел - величина тепловыделения одним человеком в зависимости от температуры воздуха в помещении и рода выполняемой работы.
qчел = 70 вт [1. стр. 259, таб. 76]
n - число людей, одновременно находящихся в помещении.
Qл= 70 · 100 = 7000 вт
Теплоприток от освещения.
Теплопоступления от осветительных приборов рассчитываются по формуле:
Qосв= А · F,
где А – удельный теплоприток от осветительных приборов на 1 м2 площади. Для предприятий общественного питания А = 4.5 вт/м2
F – площадь помещения
Qосв= 4.5 · 1200 = 5400 вт
Тепловыделение от пищи (по укрупненным показателям):
Qм = Qодн. порц. · n , вт
где Qодн. порц - тепловыделение от одной порции пищи.
Qодн. порц = 17.5 вт [1. стр. 265]
Qм = 17.5 · 100 = 1750 вт
Теплопритоки через наружные ограждения.
Определяем толщину теплоизоляционного слоя наружной стены по формуле:
δиз = λиз [1/K – (1/λн + ∑δi/λi + 1/ λв] , м.
где К – нормативный коэффициент теплопередачи ограждения, вт/(м2 · град)
К = 0.75 вт/(м2 · град) [1. стр. 74]
λн - коэффициент теплопередачи от воздуха к наружной поверхности ограждения, вт/(м2 · град)
λн = 23.3 вт/(м2 · град) [1. стр. 67 таб. 14]
λв - коэффициент теплоотдачи от внутренней поверхности ограждения к воздуху данного помещения, вт/(м2 · град)
λв = 9 вт/(м2 · град) [1. стр. 67 таб. 14]
δi , δиз –толщины изоляционного и других слоев материалов, составляющих конструкцию ограждения, м.
δкирп. кладки = 0.37 м
δштукатурки = 0.02 м
λиз , λi – коэффициенты теплопроводности изоляционного и строительных материалов, вт/(м · град)
λиз (мин. плит) =0.084 вт/(м · град) [1. стр. 68 таб. 15]
λкирп. кладки = 0.82 вт/(м · град) [1. стр. 69 таб. 15]
λштукатурки = 0.9 вт/(м · град) [1. стр. 69 таб. 15]
δиз = 0.084 [1/0.75 – (1/23.3 + 0.37/0.82 + 0.02/0.9 + 0.02/0.9 + 1/9)] = 0.067 м.
Плиты жесткие минераловатные по ГОСТ 10140 – 62 выпускаются следующих размеров: длина – 1000мм , ширина – 500мм , толщина – 40,
50 и 60 мм. Принимаем толщину слоя плиты 60 мм.
Определяем значение действительного коэффициента теплопередачи через ограждения Кд для наружной (восточной) стены.
Кд = 1/(1/ λн + ∑δi/λi + 1/ λв) + δиз. пр/λиз , вт/(м2 · град)
где λн = 23.3 вт/(м2 · град) [1. стр. 67 таб. 14]
λв = 9 вт/(м2 · град) [1. стр. 67 таб. 14]
δштукатурки = 0.02 м
δкирп. кладки = 0.37 м
δиз. пр = 0.06 м
λкирп. кладки = 0.82 вт/(м · град) [1. стр. 69 таб. 15]
λштукатурки = 0.9 вт/(м · град) [1. стр. 69 таб. 15]
λиз (мин. плит) = 0.084 вт/(м · град) [1. стр. 68 таб. 15]
Кд = 1/(1/ 23.3 + 0.37/0.82 + 0.02/0.9 + 0.02/0.9 + 1/ 9) + 0.06/0.084 = 0.735 вт/(м2 · град)
Теплоприток через наружную (восточную) стену определяем по формуле:
Qвост. ст = Кд · F · ∆t
∆t = (tн–tв) =28.5 – 25 = 3.5 °С
F = 40 · 3 = 120 м2
Qвост. ст = 0.735 · 120 · 3.5 = 308.7 вт
Определяем значение действительного коэффициента теплопередачи Кд для внутренних стен :
Кд = 1/(1/ λн + ∑δi/λi + 1/ λв), вт/(м2 · град)
где λн = 23.3 вт/(м2 · град) [1. стр. 67 таб. 14]
λв = 9 вт/(м2 · град) [1. стр. 67 таб. 14]
δштукатурки = 0.02 м
δкирп. кладки = 0.25 м
λкирп. кладки = 0.82 вт/(м · град) [1. стр. 69 таб. 15]
λштукатурки = 0.9 вт/(м · град) [1. стр. 69 таб. 15]
Кд = 1/(1/ 23.3 + 0.25/0.82 + 0.02/0.9 + 0.02/0.9 + 1/ 9) = 2 вт/(м2 · град)
Теплоприток через внутренние стены определяется по формуле:
Qвост. ст = Кд · F · ∆t , вт
Температура воздуха в соседних помещениях 22 °С.
∆t = (tн–tв) =22 – 25 = - 3 °С
F = 30 · 3 + 30 ·3 + 40 · 3= 300 м2
Qвост. ст = 2 · 300 · (-3) = - 1800 вт
Определяем значение действительного коэффициента теплопередачи Кд для кровли :
Кд = 1/(1/ λн + ∑δi/λi + 1/ λв), вт/(м2 · град)
где λн = 23.3 вт/(м2 · град) [1. стр. 67 таб. 14]
λв = 9 вт/(м2 · град) [1. стр. 67 таб. 14]
δ жел. бет. плиты = 0.3 м
δ возд. просл. средн .= 1.5 м
δ проф. настила = 0.0015 м
δ рубероид = 0.02 м
λ жел. бет. плиты = 1.4 вт/(м · град) [1. стр. 68 таб. 15]
λ возд. просл. = 0.02553 вт/(м · град) [1. стр. 69 таб. 15]
λ проф. настила (сталь)= 58 вт/(м · град) [1. стр. 68 таб. 15]
λ рубероид = 0.16 вт/(м · град) [1. стр. 68 таб. 15]
Кд = 1/(1/ 23.3 + 0.3/1.4 + 1.5/0.02553 + 0.0015/58 + 0.02/0.16 + 1/9) = 0.0169 вт/(м2 · град)
Определяем теплоприток через кровлю:
Qкровли = Ккр · Fкр · ∆t + Ккр · Fкр · ∆tсолн. , вт [4. стр. 56]
где ∆t = (tн–tв) =28.5 – 25 = 3.5 °С
∆tсолн. = 10 °С [2. стр. 58]
Fкр = 1200 м2
















