Для студентов МГТУ им. Н.Э.Баумана по предмету Детали машин (ДМ)ДМ 722 - Привод ленточного транспортера с коническим редукторомДМ 722 - Привод ленточного транспортера с коническим редуктором
5,0053
2021-04-292024-09-03СтудИзба
Курсовая работа ДМ: ДМ 722 - Привод ленточного транспортера с коническим редуктором вариант 722
-64%
Описание
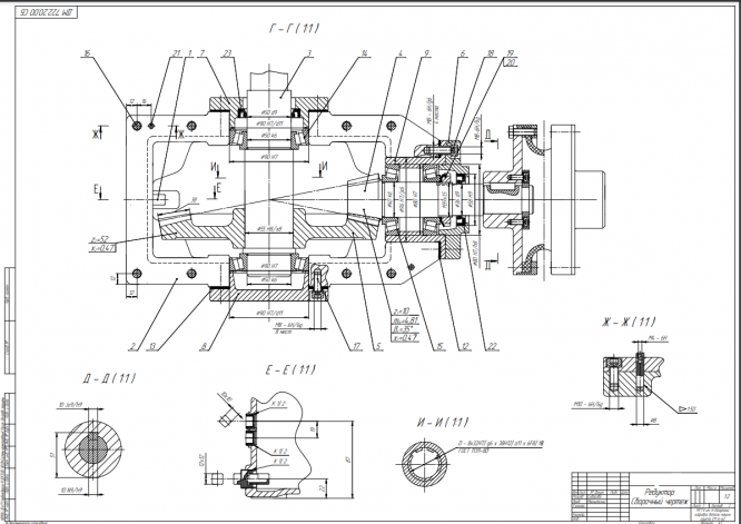
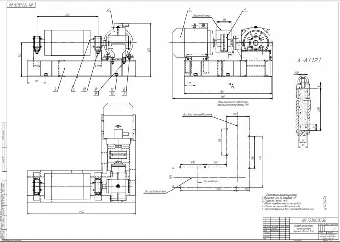
В результате проделанной работы спроектирован привод ленточного транспортера с коническим редуктором. Разработаны чертеж общего вида привода, сборочный чертеж редуктора, чертежи вала-шестерни, конического колеса и сварной рамы, а также сборочный чертеж приводного вала. Рассчитан вал привода на статическую прочность и на сопротивление усталости, подшипники на заданный ресурс, шпоночные соединения на прочность, соединение с натягом на нераскрытие стыка, групповое резьбовое соединение на смятие. Выполненные расчеты подтверждают надежность работы привода в течение 10000 часов
![]()





Файлы условия, демо
Характеристики курсовой работы
Предмет
Учебное заведение
Семестр
Номер задания
Вариант
Просмотров
538
Размер
2,88 Mb
Список файлов
Привод ленточного транспортера с коническим редуктором
ВАл.pdf
Лист 1 - обший вид.pdf
Лист 2 редуктор.pdf
Лист 3.1 колесо.pdf
Лист 4 приводной вал.pdf
Лист 4.PNG
Лист 5 - Привод ленточного транспортера.pdf
Лист 5.PNG
РПЗ.pdf
Сварная рама.pdf
Спецификация 2.pdf
Спецификация.pdf

Друзья, спасибо за доверие! Если вам понравилась работа – поставьте 5⭐ и напишите отзыв. Это поможет другим студентам, а мне даст силы делать ещё больше качественных материалов для вас 🔥