Для студентов МГТУ им. Н.Э.Баумана по предмету Детали машин (ДМ)ДМ1519 - Проектирование привода цепного транспортера с двухступенчатым цилиндрическим редуктором выполненным по развернутой схемеДМ1519 - Проектирование привода цепного транспортера с двухступенчатым цилиндрическим редуктором выполненным по развернутой схеме
5,005221
2021-01-172024-09-03СтудИзба
ДМ1519 - Проектирование привода цепного транспортера с двухступенчатым цилиндрическим редуктором выполненным по развернутой схеме
Бестселлер
-64%
Описание
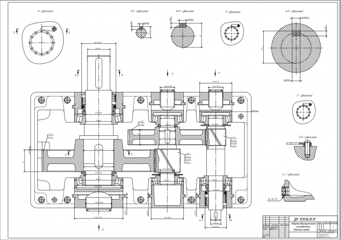
РПЗ и Чертеж Autocad в формате A1
Введение
Цель курсового проекта №1519: спроектировать привод цепного транспортера с двухступенчатым цилиндрическим редуктором, выполненным по развернутой схеме.
Составными частями привода являются асинхронный электродвигатель, цепная передача с натяжным устройством, цилиндрический двухступенчатый редуктор, приводной вал с звёздочками и муфта. Устройство привода: вращающий момент передается с электродвигателя на входной вал редуктора с помощью муфты с торообразной оболочкой; с выходного вала редуктора через комбинированную муфту на приводной вал.
Требуется выполнить необходимые расчеты, выбрать наилучшие параметры схемы и разработать конструкторскую документацию, предназначенную для изготовления привода:
• чертеж общего вида редуктора (на стадии эскизного проекта);
• сборочный чертеж редуктора (на стадии технического проекта);
• рабочие чертежи деталей редуктора;
• чертеж общего вида привода;
• расчетно-пояснительную записку и спецификации;
Для вычислений использовался калькулятор CASIO fx-570 ES.Для графических построений использовалась программа Autodest AutoCAD Professional 2018. Стандартные изделя взяты из библиотеки стандарных деталей.
![]()
Введение
Цель курсового проекта №1519: спроектировать привод цепного транспортера с двухступенчатым цилиндрическим редуктором, выполненным по развернутой схеме.
Составными частями привода являются асинхронный электродвигатель, цепная передача с натяжным устройством, цилиндрический двухступенчатый редуктор, приводной вал с звёздочками и муфта. Устройство привода: вращающий момент передается с электродвигателя на входной вал редуктора с помощью муфты с торообразной оболочкой; с выходного вала редуктора через комбинированную муфту на приводной вал.
Требуется выполнить необходимые расчеты, выбрать наилучшие параметры схемы и разработать конструкторскую документацию, предназначенную для изготовления привода:
• чертеж общего вида редуктора (на стадии эскизного проекта);
• сборочный чертеж редуктора (на стадии технического проекта);
• рабочие чертежи деталей редуктора;
• чертеж общего вида привода;
• расчетно-пояснительную записку и спецификации;
Для вычислений использовался калькулятор CASIO fx-570 ES.Для графических построений использовалась программа Autodest AutoCAD Professional 2018. Стандартные изделя взяты из библиотеки стандарных деталей.





Файлы условия, демо
Характеристики курсовой работы
Предмет
Учебное заведение
Семестр
Номер задания
Вариант
Программы
Просмотров
4969
Размер
9,3 Mb
Список файлов
Проектирование привода цепного транспортера с двухступенчатым цилиндрическим редуктором выполненным по развернутой схеме
РПЗ
3.2.dwg
4.bak
4.dwg
4.dwl
4.dwl2
Drawing4.dwg
List 3 Муфта.dwg
list 3.1.dwg
list 4.dwg
~$нг РПЗ.docx
РПЗ.docx
лист 2.dwg
лист 5.dwg
лист 1.dwg
лист 3.dwg
спецификация.dwg
3.2.bak
3.2.dwg
3.2.pdf
4.bak
4.dwg
Drawing3.bak
Drawing3.dwg
Drawing4.bak
Drawing4.dwg
List 2.bak
List 2.dwg
List 3 Муфта.bak
List 3 Муфта.dwg

Друзья, спасибо за доверие! Если вам понравилась работа – поставьте 5⭐ и напишите отзыв. Это поможет другим студентам, а мне даст силы делать ещё больше качественных материалов для вас 🔥
Комментарии

Отзыв
Есть недочёты, хорошо подходит как база для выполнения аналогичного варианта курсача