1-Архитектурный раздел (1234625), страница 3
Текст из файла (страница 3)
Согласно [10, п.4.3-4.14] составлена таблица 1.9 по составу и размеру помещений.
Таблица 1.9
Состав и размер помещений офисов
| Наименование | Ед. изм | Показатель | |
| по СП | Фактически | ||
| 1. Офисное помещение №1 (50 чел) | м2 | 120 | 148,5 |
Окончание табл. 1.9
| Наименование | Ед. изм | Показатель | |
| по СП | Фактически | ||
| 2. Офисное помещение №2 (18 чел) | м2 | 72 | 80,1 |
| 3. Уборная | м2 | 1,2 × 0,8 | 1 × 1,8 |
| 4. Техническое помещение | м2 | - | 10,2 |
| 5. Техническое помещение | м2 | - | 5,9 |
| 6. Холл | м2 | - | 8,7 |
| 7. Мусорокамера | м2 | - | 21,1 |
| 8. Холл №2 | м2 | - | 13,8 |
| 9. Вестибюль | м2 | - | 36 |
1.1.5.3 Определение состава помещений подземной автостоянки
Согласно [12, п.5.3-6.12] составлена таблица 1.10 по составу и размеру помещений.
Таблица 1.10
Состав и размер помещений офисов
| Наименование | Ед. изм | Показатель | |
| по СП | Фактически | ||
| м2 | - | 5 |
| м2 | - | 28.2 |
| м2 | - | 10.6 |
| м2 | - | 14.9 |
| м2 | - | 28.1 |
| м2 | - | 60.6 |
| м2 | - | 8.2 |
1.1.5.4 Конструктивная схема здания и требования ЕМС
Схема конструктивного остова здания – рамно – связевая. Вертикальные ребра жесткости, представляет собой систему вертикальных диафрагм, лифтовой шахты и лестниц. Горизонтальными диафрагмами жесткости служат плиты перекрытия. Пространственную жесткость обеспечивают вертикальные, горизонтальные диафрагмы жесткости. Вертикальная диафрагма жесткости – монолитные стены. Горизонтальная диафрагма жесткости – монолитные плиты перекрытия. Сопряжение диафрагмы жесткости – жесткое. Данное сопряжение обеспечивает перераспределение усилий между элементами, при воздействие нагрузки.
Рисунок 1.2 - Конструктивный остов здания
1.1.5.5 Окончательная разработка эскизов, планов, этажей здания
На основе клаузурной проработки планировочного решения здания и с учётом п. 1.1.4.1, 1.1.4.2, 1.1.4.3 завершается работа над эскизами планов здания. С этой целью на планы наносятся элементы конструктивной системы, определяются количество и размещение эвакуационных выходов, размеры проходов, расположение окон и дверей, их типы и размеры, уточняются размеры отдельных помещений и здания в целом, просчитываются площади помещений и заносятся в табл. 1.8, 1.9, 1.10.
Планировочное решение здания должно быть увязано с модульной сеткой и разбивочными осями.
1.1.5.6 Построение разреза здания
Разрез здания выполняется на основе решения плана с учётом принятой конструктивной системы. Плоскость разреза должна проходить по наиболее характерным частям здания для полного представления его объёмно-планировочного и конструктивного решения. Как правило, разрез выполняется по лестничной клетке или входу здания. На разрезе должны быть показаны основные конструкции
1.1.5.7 Разработка фасада здания
Разработка архитектурного решения фасада здания - завершающая и очень важная часть эскизного проектирования. Архитектура фасада выявляет художественные и конструктивные достоинства и недостатки здания, определяет его выразительность и цельность архитектурного образа. Поэтому при решении фасадов здания учтены основные положения теории архитектурной композиции:
а) тектоника здания;
б) приёмы и средства архитектурной композиции;
в) принцип единства и соподчинённости
1.2 Обоснование выбора конструктивных элементов здания.
Выбрав на основе эскизного проектирования здания, принципиальное решение его элементов и конструкций приступают к обоснованию и уточнению размеров и разработке отдельных деталей конструкций. В данной работе основные конструктивные элементы здания приняты согласно заданию на проектирование, составленным заказчиком.
1.2.1 Фундаменты
Ввиду неоднородности грунтового обоснования, а также неравномерного отпора грунта принята монолитная фундаментная плита толщиной 1000 мм. Фундаментная плита обеспечивает перераспределение осадок здания благодаря щебеночной подушки из не пучинистого грунта.
1.2.2 Колонны и диафрагмы жёсткости
Вертикальными несущими элементами являются монолитные железобетонные колонны сечением 600*600. Жёсткость и устойчивость колонн обеспечена диафрагмами жёсткости толщиной 200 мм. Арматура диафрагмы жёсткости связана с арматурой колонн.
1.2.3 Перекрытия
Перекрытия в виде плоской монолитной железобетонной плиты. В местах сопряжения колонны с плитой сделаны капители.
Покрытия над зданием и перекрытия над автостоянкой имеют утепление – экструдированный пенополистирол.
Перекрытия монолитные железобетонные безбалочные рисунке 1.3.
Рисунок. 1.3 - состав перекрытия
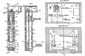
1.2.4 Лестницы и лифтовые шахты
Лестничная клетка – двухмаршевая, с одинаковым количеством ступеней в маршах и устройством на входе цокольного (пригласительного) марша в 6 ступеней (90 см). Размеры лестничной клетки в плане – 2,54 × 5,8 м. 3,3×5,8 м.
Рисунок 1.4 – Лестница
Рисунок 1.5 - Лифтовая шахта
1.2.5 Ограждающие конструкции
1.2.5.1 Стены
Наружные стены ненесущие в виде заполнения в пределах одного этажа между дисками перекрытий.
Наружная стена трехслойной конструкции:
1 слой толщиной 200 мм состоит из керамзитобетонных блоков размером 400*200*100,
2 слой из минераловатных плит марки П125 (Базалит-ДВ)
3
слой из облицовочного лицевого кирпича.
1 – керамзитобетонные блоки;
2 – утеплитель –минеральная вата;
3 – облицовочный кирпич;
4 – углепластиковая арматура
Рисунок. 1.6 - Конструкция наружной стены
1.2.5.2 Теплотехнический расчёт стены
Ограждающие конструкции по своим теплотехническим качествам должны поддерживать в помещениях необходимый температурно-влажностный режим и ограничивать теплопотери зданий в отопительный период года. Производится определение необходимой толщины утеплителя.
Условие расчета:
|
| (1.1) |
где
-фактическое сопротивление теплопередаче ограждающей конструкции;
- нормируемое сопротивление теплопередаче ограждающей конструкции.
|
| (1.2) |
где
- базовое значение требуемого сопротивления теплопередаче, принимается по [6, п. 5.2]. в зависимости от градусо-суток отопительного оборудования;
- коэффициент, учитывающий особенности района строительства, в расчете принимается равным 1 [6, п. 5.2].
Градусо-сутки отопительного периода, °С·сут/год, определяют по формуле:
|
| (1.3) |
где tот, zот, - средняя температура наружного воздуха, °С, и продолжительность, сут/год, отопительного периода, принимаемые по своду правил для периода со среднесуточной температурой наружного воздуха (таблица 1.1); tв - расчетная температура внутреннего воздуха здания, °С - по минимальным значениям оптимальной температуры соответствующих зданий по ГОСТ 30494 (в интервале 20-22 °С); согласно классификации помещений и минимальных значений оптимальной температуры по ГОСТ 30494 (в интервале 16-21 °С)[6].
| ГСОП = (20+9,5)*204 = 6018 °С·сут/год |
Нормируемое значение сопротивления теплопередаче наружных стен:
| | (1.4) |
где a, b – коэффициенты, значения которых следует принимать по данным таблицы для соответствующих групп зданий; a = 0,00035, b = 1,4 [6, табл. 3].
,
,
,
(м2·°С)/Вт,















