Пояснительная записка (1232974), страница 6
Текст из файла (страница 6)
Электроснабжение канализационной насосной станции №5А (далее КНС) осуществляется от трансформаторной подстанции ТП мощностью 630кВт. Электроэнергия поступает на распределительное устройство РУ, к которому подключено силовое электрооборудование. Здесь же размещены первичные аппараты для средств учета потребляемой электроэнергии.
Силовое электрооборудование размещено в электрощитовой КНС. Оно содержит: силовые шкафы управления СШУ, преобразователь частоты ПЧ и компенсатор реактивной мощности КРМ. Компенсатор реактивной мощности - это устройство, воздействующее на баланс реактивной мощности в узле электроэнергетической системе с целью регулирования напряжения и снижения потерь электроэнергии. Силовой шкаф управления содержит коммутационный аппарат, с помощью которого осуществляется коммутация питания электропривода М центробежного насоса Н либо к выходу ПЧ, либо к секции РУ.
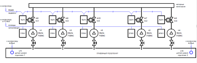
В машзале КНС размещено основное и вспомогательное оборудование КНС. Основное оборудование включает насосы ЦН2 и ЦН4, электроприводы М2 и M4 соответственно. В состав вспомогательного оборудования входят: дренажные, пожарные, вакуум-насосы; задвижки; вентиляторы; обогреватели и другое оборудование. Управление им производится при помощи исполнительных механизмов ИМ1–Им3.
Для получения информации о значениях регулируемых параметров служат датчики Д1–Д3.
Сигналы управления и измерительные сигналы от оборудования НС собираются в шкафу управления ШУ. Здесь же происходит их объединение в одну общую информационную линию связи, которая подключается к технологическому контроллеру ТК.
Технологический контроллер реализует общий алгоритм управления НС и обмен информацией с автоматизированной системой управления технологическим комплексом АСУ ТК. Программное обеспечение ТК содержит ряд функциональных блоков, реализованных на программном уровне:
- управление основной насосной установкой;
- управление дополнительной насосной установкой, например, пожарными насосами;
- управление дренажными насосами;
- измерение и обработка параметров оборудования НС;
- управление отоплением и вентиляцией помещений НС;
- осуществление функций охраны от несанкционированного проникновения посторонних лиц на территорию НС;
- обслуживание локального терминала;
- передача информации о параметрах и режимах работы оборудования НС на АСУ ТК и обработка сигналов управления, получаемых от нее.
3.3 Назначение и структура системы
Назначение системы:
Комплектная высоковольтная станция частотного управления (ВСЧУ) должна быть предназначена для автоматического согласованного управления группой перекачивающих насосных агрегатов КНС с частотным регулированием их производительности в функции регулирования уровня стоков приемного резервуара.
Локальная система автоматического управления в составе ВСЧУ должна обеспечивать контроль текущего режима, оперативное управление и архивирование состояний основного технологического оборудования – насосными агрегатами, задвижками на напоре агрегатов, уровней в приемном резервуаре – в режиме реального времени.
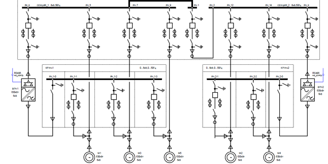
На рисунке 3.2 представлена предполагаемая к использованию структурная схема автоматизированной канализационной насосной станции №5А. К ней уже подключены высоковольтные преобразователи частоты (ВПЧ1 и ВПЧ2) и распределительные устройства (КРУпч1 и КРУпч2 соответственно).
Рисунок 3.2 - Предполагаемая к реализации структурная схема КНС – 5А
Электротехнический комплекс (ЭТК) обеспечивает работу пяти насосных агрегатов (НА) с помощью двух комплектных высоковольтных преобразователей частоты (агр.1, 3, 5 от ВПЧ1, агр.2, 4 от ВПЧ2) и одного промышленного управляющего контроллера.
- ЭТК имеет возможность последовательного поочередного разгона двигателей своей секции шин (СШ) с последующим переключением их на питание от сети.
- Сохраняется возможность прямого пуска двигателей.
- Есть возможность выбора места управления – местного или дистанционного.
ЭТК осуществляет связь с автоматизированной системой мониторинга КНС (АСМ КНС).
- Имеет место возможность выбора автоматической сборки и разборки схемы для пуска электродвигателя с обеспечением электрических и технологических защит.
- Осуществляется автоматическое управление электроприводами напорных задвижек во всех режимах.
- Присутствует выбор режима управления для любого НА:
а) «Плавный пуск от ВПЧ» - поочерёдный плавный пуск электродвигателя насоса (ЭД) от ВПЧ с последующей синхронизацией напряжения ВПЧ с напряжением сети, безударным переключением ЭД насоса с питания от ВПЧ на питание от сети и последующей работой ЭД от сети.
б) «Регулирование» - плавный пуск ЭД насоса от ВПЧ, автоматическое поддержание заданного уровня за счёт регулирования частоты вращения насоса от ВПЧ.
в) «Пуск, работа от сети» - прямой пуск, работа ЭД насоса от сети, включение, отключение ЭД насосов, не подключённых к ВПЧ, при одном насосе, работающем от ВПЧ в режиме «Регулирование» - резервный режим работы.
- Алгоритмы управления должны предусматривать выравнивание токовой
загрузки частотно-управляемых электродвигателей по скорости вращения.
При недостаточной производительности основных агрегатов должно производиться подключение дополнительного агрегата непосредственно от сети 6 кВ. Очередность и статусы управления агрегатами в автоматическом режиме должны определяться оператором произвольно в зависимости от текущего состояния оборудования (готовности к включению).
4 Экономическая оценка модернизации КНС – 5А
Экономия в денежном выражении от внедрения автоматизированной системы управления с частотным регулированием на КНС складывается в основном из экономии электроэнергии при замене регулирования дросселированием на частотное регулирование и определяется расчетным путем.
Расчет сделан с учетом технического задания на внедрение автоматизированной системы управления с частотным регулированием на КНС-5а, которым предусмотрено частотное регулирование двумя насосными агрегатами (с помощью двух высоковольтных преобразователей частоты).
4.1 Существующий режим
В таблице 4.1 показан существующий режим наработки насосной станции за год и работа насосов в год.
| Количество воды, перекачиваемой за год, | 44080 тыс. м3 |
| Максимальная в году подача и, соответствующее этой подаче, давление, | 7909 м3/ч / 51,8 м.в.ст. |
| Минимальная в году подача и, соответствующее этой подаче, давление, | 2197 м3/ч / 47,1 м.в.ст. |
| Способ регулирования режима работы станции | По уровню в приёмном резервуаре, путем дросселирования и количеством насосных агрегатов |
| Число часов работы в году: | 8760 час. |
| с одним агрегатом, | 438 час. |
| с двумя агрегатами, | 5694 час. |
| с тремя агрегатами, | 2628 час. |
Таблица 4.1 – годовые характеристики работы КНС – 5А
Учитывая, что сведения о среднестатистических параметрах режима работы станции в году отсутствуют, доопределим их следующим образом.
Вариант №1.
Насосная станция перекачивает за год 44080 тыс. м3 воды равномерно со средней подачей равной 44080000 м3/8760час=5084 м3/час, что соответствует одновременной работе двух насосных агрегатов.
Вариант №2.
Насосная станция перекачивает за год 44080 тыс. м3 воды по следующему графику:
- 8,4 месяца в году (6 132 часа) перекачивание воды осуществляется со средней подачей равной 4300 м3/час, что соответствует одновременной работе двух насосных агрегатов.
- 3,6 месяца в году (2 628 часа) перекачивание воды осуществляется со средней подачей равной 6750 м3/час, что соответствует одновременной работе трех насосных агрегатов.
4.2 Расчет потребления мощности при режиме работу КНС
по варианту №1.
Вариант №1 соответствует перекачиванию насосной станцией за год 44080 тыс. м3 воды равномерно со средней производительностью равной:
/ч ; [4.1]
что соответствует одновременной работе двух насосных агрегатов.
Расчетная упрощенная технологическая схема при режиме работу КНС по варианту №1 приведена на рисунке 4.1.
Рисунок 4.1 – Расчетная технологическая схема режима работы КНС с производительностью
/ч (в работе два насосных агрегата)
Режим работы насосных агрегатов определяется требуемой производительностью станции, напорной характеристикой сети, напорной характеристикой насосов и способом регулирования производительности насосов. На рисунке 4.2 приведены напорные характеристики насосов и сети для рассматриваемого режима в предположении, что распределение нагрузки между насосами равномерное.
Рисунок 4.2 - Работа двух насосов с общей производительностью
/ч (с дросселированием и частотным регулированием).
Мощность, потребляемая из сети, определяется выражением:
При частотном регулировании:
Экономия электроэнергии при частотном регулировании по сравнению с дросселированием составляет:
∆W = 8343024 - 6474516 = 1868508кВт × час; [4.4]
Цена годовой экономии электроэнергии при тарифе с НДС и с учетом прогноза на 2015 составит:
6753тыс.руб.
4.3 Расчет потребления мощности при режиме работу КНС по варианту №2.
Вариант №2 соответствует перекачиванию насосной станцией за год 44080 тыс. м3 воды по следующему графику:
Режим-1: 8,4 месяца в году (6 132 часа) перекачивание воды осуществляется со средней подачей равной 4300 м3/час, что соответствует одновременной работе двух насосных агрегатов.
Режим-2: 3,6 месяца в году (2 628 часа) перекачивание воды осуществляется со средней подачей равной 6750 м3/час, что соответствует одновременной работе трех насосных агрегатов.
Вариант №2, режим-1.
Расчетная упрощенная технологическая схема режима-1 приведена на рисунке 4.3.
Рисунок 4.3 - Расчетная технологическая схема режима работы КНС с производительностью 4300
; режим – 1 (в работе два насосных агрегата)
На рисунке 4.4 приведены напорные характеристики насосов и сети для режима-1.
Рисунок 4.4 Работа двух насосов с общей производительностью
/ч (с дросселированием и частотным регулированием).
В соответствии с характеристикой сети, для обеспечения производительности Q=4300м3/час, требуется напор на выходе насосной равный Hвых.= 40м.в.ст. и параллельной работы двух насосов, каждый с производительностью QНА=2150м3/час (предполагается, что загрузка насосов одинакова).
Мощность, потребляемая из сети, определяется выражением:
















