Диплом_Исаев (1229774), страница 12
Текст из файла (страница 12)
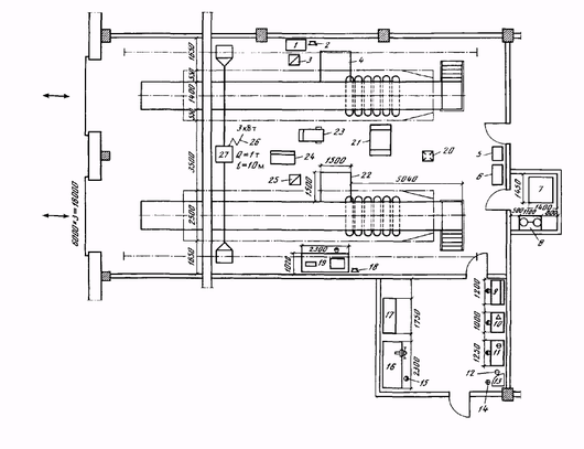
1, 24 - установка диагностическая для проверки газового оборудования К-277; 2,18 - розетка переменного однофазного тока; 3, 25 - отсос выхлопных газов; 4, 22 - приямок; 5 - ящик с песком; 6 - шкаф с огнетушителями; 7 - компрессор; 8 - баллоны сжатого воздуха; 9 - шкаф; 10 - установка диагностическая для проверки газового оборудования К-278; 11 -стол; 12 - подвод холодной воды;13 - мойка деталей; 14 - подвод горячей воды; 15 - рабочее место; 16 - верстак; 17 - шкаф; 19 - стеллаж с газоанализатором; 20 - подвод сжатого воздуха; 23 - тележка для транспортировки газовых баллонов; 26 - подвод электроэнергии
Рисунок 5.1 – Универсальный пост ТР ГБА
В зоне поста расположены две канавы тупикового типа с общим входом. Образованная таким образом зона позволяет выполнять разборочно-сборочные работы текущего ремонта ГБА, выполнять работы по монтажу и демонтажу газовых баллонов при их переосвидетельствовании. Для удобства и снижения трудоемкости работ пост оборудован канавами с дополнительными приямками. Приямки находятся в зоне расположения газового оборудования и позволяют рабочему в полный рост выполнять все работы во вспомогательном и моторном отсеках.
На расположенном в смежном помещении участке выполняются работы по ремонту газового оборудования. Основное назначение производственных участков заключается в проведении разборочно-сборочных и ремонтно-восстановительных работ деталей и узлов системы питания автомобилей, работающих на сжиженном нефтяном газе. Ремонт приборов газовой системы, снятых с ГБА, осуществляется на специализированном участке по ремонту приборов газовой системы питания. Участок оснащен стендами для ремонта газового оборудования К-278, ИС-001, комплектом инструмента И-149, установкой для мойки деталей газового оборудования.
Расположение зоны постов ТР заложено при проектировании здания и соблюдено при строительстве, с соблюдением требований СНиП П-90-81 «Производственные здания промышленных предприятий» и ОНТП-СТО-01-81, выполнение технологического расчета проекта технического перевооружения зоны постовых работ ТР проводилось с соблюдением норм и требований СНиП 2.09.02-85 «Производственные здания» и ОНТП-01-91.
5.2 Вредные и опасные факторы
Технологические процессы производства текущего ремонта подвижного состава связаны с наличием производственных вредных и опасных факторов. Согласно ГОСТ 12.0.003-86. ССБТ. «Опасные и вредные производственные факторы. Классификация» и «Правил по охране труда на автомобильном транспорте ПОТ Р О-200-01-95» при проведении текущего ремонта узлов системы питания ГБА ремонтные рабочие подвержены воздействию следующих вредностей и опасностей: движущиеся машины и механизмы, подвижные части технологического оборудования, поражение электрическим током; недостаточное естественное освещение, отклонение показателей освещенности рабочей зоны от нормативных; повышенная запыленность и отклонение показателей подвижности, влажности и температуры воздуха рабочей зоны от нормативных, агрессивные и токсичные вещества - пары масел и топлив нефтяного происхождения, пожароопасность.
5.3 Виды инструктажа по охране труда в зоне ТР
Под охраной труда на предприятиях автомобильного транспорта понимается система законодательных актов и соответствующих им мероприятий, направленных на сохранение здоровья и работоспособности работников автотранспортных предприятий.
Для обеспечения безопасных условий работы на промышленном предприятии в соответствии с ГОСТ 12. 0.004-79, ТОИ-Р-200-03-95; ГОСТ 12.0.003-86. ССБТ «Опасные и вредные производственные факторы. Классификация» и «Правил по охране труда на автомобильном транспорте
ПОТ Р О-200-01-95» принята система инструктажей, которые проходит каждый работник предприятия.
Инструктаж по охране труда обязаны проходить в сроки, установленные для определенных видов работ и профессий (части 1, 2, 3 статьи 12 Основ законодательства об охране труда). В проведении инструктажа и проверки знаний по охране труда принимает участие служба охраны труда предприятия (п.п. 3.14-3.17 Рекомендаций Минтруда РФ от 30.01.95г.).
Виды инструктажа и порядок их проведения установлены
ГОСТ 12.0.004-90. Правила обучения и проверки знаний, установленных этим актом, применяются на всех предприятиях, в учреждениях, организациях. В соответствии с указанным актом, обычно проводятся следующие виды инструктажа: вводный – при поступлении на работу; первичный – на рабочем месте; плановый – периодически в установленные сроки; внеплановый (текущий) – при изменении технологического процесса или оборудования, при нарушении правил по охране труда и производственной санитарии; целевой - при привлечении к выполнению разовых работ связанных с ликвидацией последствий стихийных бедствий, аварий, т.е. при временном переводе на другую работу в случае производственной необходимости (статья 212 ТК РФ).
С целью улучшения профилактической работы по дальнейшему снижению производственного травматизма, улучшения производственной дисциплины и повышения ответственности всех работников за состоянием охраны труда проводится трехступенчатый контроль.
5.4 Требования к персоналу зоны постовых работ ТР ГБА
При приспособлении действующего АТУ для эксплуатации газобаллонных автомобилей, должны соблюдаться все требования, предъявляемые к предприятиям по обслуживанию автомобилей, работающих на бензине и(или) дизельном топливе. При проведении ремонтных работ ГБА, технический персонал должен выполнять следующие требования: проверить перед началом работы исправность инструмента и оборудования, включить вентиляцию; производить ремонт газовой аппаратуры на автомобиле только при отсутствии давления газа в газопроводах; производить регулировку частоты вращения коленчатого вала на холостом ходу, все прочие работы производить при неработающем двигателе; выполнять работы по снятию и установке газовой аппаратуры специальными инструментами; производить сварочные, окрасочные работы (включая горячую сушку), а также работы с электродрелью, абразивными материалами и т.п., дающими искрение, только при отсутствии газа в баллонах.
Допуск к работе лиц, не прошедших в установленном порядке обучение, инструктаж и проверку знаний правил, норм и инструкций по охране труда, запрещается. Во избежание создания аварийных ситуаций техническому персоналу запрещается: запускать двигатель при утечке газа; выпускать газ из баллона вне установленного места; производить снятие и ремонт аппаратуры при наличии в ней газа; пользоваться нестандартным и неисправным инструментом; проверять пламенем герметичность соединений; применять дополнительные рычаги при открытии и закрытии вентилей; очищать краску и красить наполненные газом баллоны; пользоваться замасленными шлангами, скрученными и сплющенными резиновыми трубками.
При возникновении утечек газа на автомобиле, находящемся в помещении, его необходимо отбуксировать на улицу, а помещение проветрить. По окончании ремонта газового оборудования автомобиль направляют на общие посты для дальнейшего прохождения ТО и ТР автомобиля в целом.
5.5 Режим работы производства
Режим работы производства по рекомендациям ОНТП-01-91: пятидневная рабочая неделя, с одной сменой в сутки, продолжительностью 8,2 часа, число рабочих дней в году 255. Годовой фонд времени 1-го производственного рабочего на работах с нормальными условиями труда 1820 ч.
В соответствии со статьей 21 Трудового Кодекса нормальная продолжительность рабочего времени рабочих и служащих предприятий не превышает 41 часа в неделю. Суммарный месячный учет рабочего времени устанавливается администрацией предприятия. Режим труда и отдыха, работающих устанавливается в соответствии с действующим законодательством с учетом особенностей производства.
Время начала и окончания перерыва определяется правилами внутреннего трудового распорядка. Работникам предоставляются перерывы для отдыха и приема пищи продолжительностью не более 2 часов и не менее 30 минут – время, которое в рабочее время не включается (ТК РФ ст. 108).
5.6 Организация рабочих мест
Размещение производственного оборудования отвечает требованиям действующих нормативных правовых актов, межотраслевым правилам по охране труда на автомобильном транспорте (от 12.05.2003 №28 п.2.1.12) и обеспечивает последовательность операций технологического процесса. Размещение производственного оборудования, исходных материалов, заготовок, деталей, агрегатов, готовой продукции, отходов производства и тары в производственных помещениях и на рабочих местах не представляет опасности для персонала.
Расстояния между единицами оборудования, а также между оборудованием и стенами производственных зданий, сооружений и помещений соответствует требованиям действующих норм технологического проектирования, строительным нормам и правилам. Ширина проезда на постах ТР установлена в зависимости от габаритов транспортных средств и принята в соответствии с действующим нормативным правовым актом (ОНТП-01-91, приложение 4.5). Пути транспортирования материала, деталей, узлов и агрегатов кратчайшие, исключающие встречные и пересекающиеся грузопотоки.
Ширина основных проходов на рабочем месте определена с учетом габаритов ремонтируемых агрегатов и обрабатываемых изделий. Вспомогательное оборудование расположено так, чтобы оно не выходило за пределы установленной для рабочего места площадки. Материалы, детали, агрегаты, готовые изделия у рабочего места уложены на стеллажи способом, обеспечивающим их устойчивость и удобство захвата при использовании грузоподъемных механизмов.
За порядок на рабочих местах отвечают непосредственно исполнители данных видов работ. В течение смены, по мере необходимости или по окончании того или иного вида работ на рабочем месте наводится порядок. Порядок также может наводиться во время технологических перерывов. Рабочие места обеспечивают удобство работы, свободу движений, минимум физических напряжений и безопасные высокопроизводительные условия труда.
5.7 Техника безопасности при работе с технологическим оборудованием
Система организационных и технических мероприятий и средств, предотвращающих производственный травматизм, определяется как техника безопасности.
Приказом руководителя предприятия на рабочих местах назначаются ответственные лица за технику безопасности и правильную эксплуатацию различного оборудования. Ответственные лица за технику безопасности проводят занятия с рабочими по обучению безопасным приемам работы, проводят первичные инструктажи на рабочем месте, проводят контроль технического состояния машин, механизмов и оборудования, за наличием и исправностью средств защиты, ограждений, предохранительных устройств, за санитарным состоянием помещений.
Работники, осуществляющие эксплуатацию, техническое обслуживание и ремонт транспортных средств, а также остальные работники предприятия проходят обучение и инструктаж по технике безопасности, аттестацию или проверку знаний правил промышленной безопасности в соответствии с
ГОСТ 12.0.004-90 «Организация обучения безопасности труда. Общее положения» и «Правилами по охране труда на автомобильном транспорте
ПОТ Р О-200-01-95».
5.7.1 Требования к инструменту и технологической оснастке
Применяемые инструменты и организация работы с ними отвечают требованиям нормативной документации, техническим условиям и требованиям «Межотраслевых правил по охране труда на автомобильном транспорте».
Ручные инструменты (молотки, зубила, пробойники и т.п.) не должны иметь: на рабочих поверхностях повреждения (выбоины, сколы); на боковых гранях в местах зажима их рукой заусенцев, задиров и острых ребер; на поверхности ручек инструментов заусенцев и трещин, поверхность должна быть гладкой; перекаленную рабочую поверхность.
Длина зубила должна быть не менее 150 мм, а длина бородка, керна – не более 150 мм. Молотки и кувалды должны быть надежно насажены на деревянные ручки и расклинены металлическими клиньями, а напильники и стамеска должны иметь деревянные ручки с металлическими кольцами на концах. Запрещается пользоваться неисправными приспособлениями и инструментом. Перед началом работы следует проверить работником все инструменты, неисправные подлежат замене.
Для переноски инструментов, если это требуется по условиям работы, рабочему выдается сумка или легкий переносной ящик, или специальная передвижная тележка.
Верстаки для слесарных работ имеют жесткую и прочную конструкцию, подогнаны по росту работающих с помощью подставок под них или подставок для ног. При работе на асфальтированном или бетонном полу у верстака для предупреждения простудных заболеваний расположены деревянные решетки. Расстояние между верстаками принимают в зависимости от их габаритных размеров и расположения в соответствии с действующим нормативным правовым актом.
При работе на керамическом или бетонном полу у верстака для предупреждения простудных заболеваний расположены деревянные решетки. Расстояние между верстаками приняты в зависимости от их габаритных размеров и расположения в соответствии с действующим нормативным правовым актом.
5.7.2 Ограждение движущихся частей стендов и механизмов















