2.конструкции новое (1218563), страница 4
Текст из файла (страница 4)
Где A(sw) – площадь сечения поперечной арматуры с шагом S(w), расположенная в пределах расстояния 0,5*h(0) по обе стороны от контура расчётного поперечного сечения по периметру контура расчётного поперечного сечения;
u – периметр контура расчётного поперечного сечения.
Шаг поперечной арматуры должен быть не более трети высоты рабочего сечения плиты перекрытия, то есть S<h(0)/3=0.175/3=0.058 м
Принимаем арматуру класса В500 Ø8 с шагом 50 мм.
Расчётное сопротивление поперечной арматуры R(sw)= 175МПа, площадь двух стержней диаметром 8 мм равна A(sw)=1.01 см2
Находим усилие в поперечной арматуре:
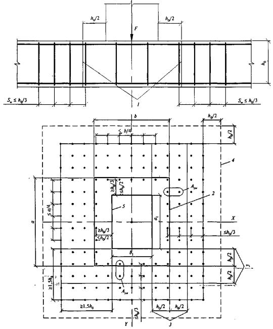
Рисунок 2.45 - Схема для расчета железобетонных плит с вертикальной, равномерно распределенной поперечной арматурой на продавливание.
1 - расчетное поперечное сечение; 2 - контур расчетного поперечного сечения; 3 - границы зоны, в пределах которых в расчете учитывается поперечная арматура; 4 - контур расчетного поперечного сечения без учета в расчете поперечной арматуры; 5 - контур площадки приложения нагрузки
Внешнюю нагрузку F найдём по формуле:
Где А(гр) – грузовая площадь,м2;
А(пр) – площадь верхней части пирамиды продавливания;
Нагрузку P выбираем по наибольшему значению из двух видов:
- монтажной;
- полезной.
Для жилья полезная нагрузка, согласно [11], равна 1,5 кПа=1,5кН/м2
Для расчёта монтажной нагрузки, необходимо знать технологический процесс заливки плиты в опалубку:
- установка опалубки;
- установка телескопических стоек для поддержания опалубки;
- заливка бетонной смеси в опалубку.
При расчете плит на монтажные нагрузки их собственный вес, определяемый с учетом производственной влажности, принимается с коэффициентом динамичности 1,4.
G=1.4*2500*24.4*19.3*0,22=36,26 кН
Размеры плиты перекрытия в плане 24,4*19,3 м, поэтому чтобы узнать вес 1 м2 плиты необходимо собственный вес поделить на площадь плиты:
36,26/(24,4*19,3)=0,07 кПа
Масса телескопической стойки 14,45 кг. В технологической карте предусмотрено 25 стоек, следовательно, масса стоек на плиту равна: 25*14,45 = 361,25 кг= 0,036 кН
Таким образом, монтажная нагрузка равна 0,07 кПа
В итоге, полезная нагрузка больше чем монтажная, поэтому дальнейший расчёт ведём по наибольшей нагрузке.
Грузовая площадь вычислим как половину шага колон с обеих сторон от колонны:
A(гр)=4.3*3,75=16,125 м2
Площадь верхней части пирамиды продавливания равна:
А(пр)=(0,175+0,4)*2=1,15 м2
Тогда внешняя нагрузка от сосредоточенной силы равна:
Внешние сосредоточенные моменты М(х) и М(y) находим следующим образом:
- выделяем грузовую полосу вдоль оси X и Y;
- находим равнодействующую силу;
- умножаем равнодействующую силу на плечо до оси колонны.
Таким образом, площадь A(y)=2.15*3,75=8,06 м2 (см рисунок. 2.46)
Нагрузка равна 1,5 МПа, следовательно сосредоточенная сила равна F(y)=1.5*8.06=12 кН
Сосредоточенный момент М(y) равен:
М(y)=12*2,15/2=13 кН*м
Рисунок 2.46 - Определение грузовой площади относительно оси Y
Рисунок 2.47 - Определение грузовой площади относительно оси X
Таким образом, площадь A(x)=1.85*4.3=7.96 м2 (см рисунок. 2.47)
Нагрузка равна 1,5 МПа, следовательно сосредоточенная сила равна F(y)=1.5*7.96=12 кН
Сосредоточенный момент М(y) равен:
М(x)=12*1.85/2=11 кН*м
Находим предельный сосредоточенный изгибающий момент в направлении оси Y – М(by.ult).
Где W(by) – момент сопротивления по бетону относительно оси Y.
Где L(x) и L(y) – размеры нижней части пирамиды продавливания.
В нашем случае, размеры верхней части пирамиды продавливания равны L(x)=L(y)=0,575 м, это значит что моменты сопротивления относительной оси X и Y равны:
Предельный сосредоточенный момент поперечной арматуры равен:
Где W(sw) –момент сопротивления поперечной арматуры.
В расчёте W(sw)=W(bx)=W(by)=0.077 м3 так как поперечная арматура расположена равномерно вдоль расчётного контура продавливания.
В расчёте на продавливание должны выполняться условия:
-
F(b,ult)+F(sw,ult)<2*F(b,ult)
F(b,ult)+F(sw,ult)=420+654.4=1074.4 кН
2*F(b,ult)=2*420=840 кН
Принимаем F(b,ult)+F(sw,ult)=840 кН
-
М(bx,ult)+M(sw,ult)<2*M(bx,ult)
М(bx,ult)+M(sw,ult)=80,85+21,8=102,65 кН*м
2*M(bx,ult)=2*80,85=161,7 кН*м
Принимаем М(bx,ult)+M(sw,ult)= 102,65 кН*м
-
М(by,ult)+M(sw,ult)<2*M(by,ult)
М(by,ult)+M(sw,ult)=80,85+21,8=102,65 кН*м
2*M(by,ult)=2*80,85=161,7 кН*м
Принимаем М(by,ult)+M(sw,ult)= 102,65 кН*м
Проверку выполняем на продавливание выполняем по формуле 2.21:
Проверка выполняется, это означает что принимается без капительное решение колонн. Чертежи см
















