Расчет лестницы перекрытие_Марина (1218445)
Текст из файла
2.1 Расчетно-конструктивная схема
2.1.1 Расчет лестничных конструкций. Исходные данные для проектирования
Исходные данные для проектирования лестничных конструкций следующие:
Класс бетона ………………………………………………...........................……..В15
Класс арматуры ……………………………………………..................................В500
Класс ответственности здания……………………………………………....II(γn=1,0)
Бетон тяжелый, естественного твердения, класса В 15:
;
МПа;
МПа. Арматура класса В500,
МПа,
МПа.
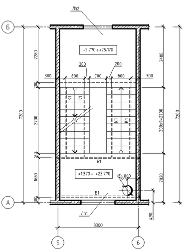
План расположения элементов лестницы типового этажа приведен на
рисунке 2.1.
Рисунок 2.1 – План расположения элементов лестницы типового этажа
Поперечный разрез лестницы приведен на рисунке 2.2.
Рисунок 2.2 – Поперечный разрез лестницы
Основные размеры поперечного сечения приведены на рисунке 2.3.
Рисунок 2.3 - Основные размеры поперечного сечения
2.1.2 Сбор нагрузки
Сбор нагрузок на ступени лестничного марша приведены в таблице 2.1.
Таблица 2.1- Нагрузки на 1 м2 ступени
| Вид нагрузки | Нормативная нагрузка, кН/м2 | Коэффициент надежности по нагрузке | Расчетная нагрузка, кН/м2 |
| Постоянная: | |||
| Вес жб ступеней | 3,82 | 1,1 | 4,22 |
| Итого постоянная: | 3,82 | 1,1 | 4,22 |
| Временная: | |||
| Нагрузка кратковременная | 3,0 | 1,2 | 3,6 |
| Итого временная: | 3,0 | - | 3,6 |
| Итого общее (постоянная, временная): | 6,82 | - | 7,82 |
Рисунок 2.4 – Схема армирование ступеней
С учетом коэффициента надежности по назначению здания расчетная нагрузка для расчетов по первой группе предельных состояний на 1 погонный метр составляет:
-на одну ступень:
кН/м;
Максимальный расчетный изгибающий момент определяется по формуле:
Максимальная расчетная поперечная сила определяется по формуле:
2.1.3 Подбор сечения арматуры в ступени лестничного марша
Максимальный изгибающий момент составляет:
Рабочая высота сечения плиты h0:
, (2.1)
а - величина защитного слоя бетона, мм.
мм = 0,1 м
Расчет производим как для прямоугольного сечения.
Вычисляем параметр
по формуле:
, (2.2)
где
-расчетное сопротивление бетона;
-условная ширина плиты для расчета,м;
M- изгибающий момент, кН·м,
рабочая высота сечения, м.
Определяем
по формуле:
Определяем ŋ по формуле:
ŋ = 1 – 0,5 · ξ, (2.4)
ŋ = 1 - 0,5 · 0,0253 = 0,9873
Требуемая площадь сечения арматуры
определяется по формуле:
(2.5)
где
-расчетное сопротивление арматуры растяжению, МПа.
По сортаменту арматуры принимаем армирование 3Ø5 В500,
мм2 = 0,59 м2 (шаг стержней 200 мм = 0,2 м).
Высота сжатой зоны
определяется по формуле:
= 3,41 · 10-3
Определяем
по формуле:
где
относительная деформация растянутой арматуры, при напряжениях Rs;
где
- модуль упругости арматуры;
относительная деформация сжатого бетона, при напряжениях равных Rb;
Так как
фактический несущий момент определяется по формуле:
.
Так как
,следовательно принимаем 3Ø5 В500,
мм2 = 0,589 м2 (шаг стержней 200 мм = 0,2 м).
2.1.4 Расчет по бетонной полосе между наклонными сечениями лестничной ступени
Максимальная поперечная сила составляет:
Расчет предварительно напряженных элементов по бетонной полосе между наклонными сечениями выполняется по формуле:
где
поперечная сила в нормальном сечении, кН;
коэффициент, принимаемый равным 0,3.
Условие выполняется.
2.1.5. Расчет по бетонной полосе между наклонными сечениями лестничной ступени
Поскольку допускает не устанавливать поперечную арматуру в многопустотных плитах, выполним проверку прочности сечения плиты на действие поперечной силы при отсутствии поперечной арматуры.
Поперечная сила составляет:
Расчет предварительно напряженных изгибаемых элементов по наклонному сечению выполняется из условия:
(2.10)
где
поперечная сила в наклонном сечении с длиной проекции с на поперечную ось, расположенных по одну сторону от рассматриваемого наклонного сечения; при этом учитывают наиболее опасное загружение в пределах наклонного сечения;
поперечная сила, воспринимаемая бетоном;
поперечная сила, воспринимаемая арматурой в наклонном сечении.
Поперечную силу
определяют по формуле:
(2.11)
где
коэффициент, принимаемый 1,5;
- длина проекции поперечной силы на продольную ось.
= 1,12 м
Подставляем значения в формулу:
Так как
, следовательно несущей способности бетона достаточно для восприятия поперечной силы.
2.1.6 Расчет монолитных площадок лестничных клеток
Исходные данные для проектирования для проектирования монолитных конст-
рукций лестничных клеток:
Класс бетона …………………..….………………………………………………В15
Класс арматуры ……………………………………………………………….….В500
Класс ответственности здания………..……………..…………..………..….II(γn=1,0)
Бетон тяжелый, естественного твердения, класса В 15:
;
МПа;
МПа.
Арматура класса В500,
МПа,
МПа.
Высота площадочной плиты
= 0,08 м.
2.1.7 Сбор нагрузки на монолитную площадку лестничной клетки
Сбор нагрузок на лестничную площадку приведен в таблице 2.2
Таблица 2.2- Нагрузки на 1 м2 площадки
| Вид нагрузки | Нормативная нагрузка, кН/м2 | Коэффициент надежности по нагрузке | Расчетная нагрузка, кН/м2 |
| Постоянная: | |||
| Вес жб площадки; (t=80 мм; γ=25 кН/м3); 0,10 м х 25кН/м3=2,0 кН/м2; | 2,0 | 1,1 | 2,2 |
| Цементно-песчанная стяжка (t=50 мм; γ=19,0 кН/м3); 0,050 м х 19,0 кН/м3=0,57 кН/м2; | 0,57 | 1,2 | 0,68 |
| Итого постоянная: | 2,57 | 1,1 | 2,88 |
| Временная | |||
| Временная нагрузка | 3,0 | 1,2 | 3,6 |
| Итого временная: | 3,0 | - | 3,6 |
| Итого общее (постоянная, временная) : | 5,57 | - | 6,48 |
С учетом коэффициента надежности по назначению здания суммарная расчетная нагрузка для расчетов по первой группе предельных состояний на 1 погонный метр составляет:
Максимальный расчетный изгибающий момент в площадочной плите определяется по формуле:
Максимальная расчетная поперечная сила в площадочной плите определяется по формуле:
2.1.8 Подбор сечения арматуры в площадке лестничной клетки
Максимальный изгибающий момент составляет:
Рабочая высота сечения плиты h0:
(2.12)
где а- величина защитного слоя бетона, мм.
Расчет производим как для прямоугольного сечения шириной
= 1 м.
Вычисляем параметр
по формуле:
, (2.13)
где
-расчетное сопротивление бетона;
-условная ширина плиты для расчета, м; M- изгибающий момент, кНм,
рабочая высота сечения, м.
Определяем
по формуле:
Определяем ŋ по формуле:
ŋ = 1 – 0,5 · ξ, (2.15)
ŋ = 1 - 0,5 · 0,312 = 0,8435
Требуемая площадь сечения арматуры
определяется по формуле:
, (2.16)
где
-расчетное сопротивление арматуры растяжению, МПа.
По сортаменту арматуры принимаем армирование 5Ø5 В500,
мм2 =0,928 м2 (шаг стержней 200 мм = 0,2 м).
Высота сжатой зоны
определяется по формуле:
= 3,41 · 10-3
Определяем
по формуле:
где
относительная деформация растянутой арматуры, при напряжениях Rs;
где
- модуль упругости арматуры;
относительная деформация сжатого бетона, при напряжениях равных Rb;
Так как
фактический несущий момент определяется по формуле:
Так как
, следовательно принимаем 5Ø5 В500,
мм2 (шаг стержней 200 мм = 0,2 м).
2.1.9 Расчет по бетонной полосе между наклонными сечениями площадки лестничной клетки
Характеристики
Тип файла документ
Документы такого типа открываются такими программами, как Microsoft Office Word на компьютерах Windows, Apple Pages на компьютерах Mac, Open Office - бесплатная альтернатива на различных платформах, в том числе Linux. Наиболее простым и современным решением будут Google документы, так как открываются онлайн без скачивания прямо в браузере на любой платформе. Существуют российские качественные аналоги, например от Яндекса.
Будьте внимательны на мобильных устройствах, так как там используются упрощённый функционал даже в официальном приложении от Microsoft, поэтому для просмотра скачивайте PDF-версию. А если нужно редактировать файл, то используйте оригинальный файл.
Файлы такого типа обычно разбиты на страницы, а текст может быть форматированным (жирный, курсив, выбор шрифта, таблицы и т.п.), а также в него можно добавлять изображения. Формат идеально подходит для рефератов, докладов и РПЗ курсовых проектов, которые необходимо распечатать. Кстати перед печатью также сохраняйте файл в PDF, так как принтер может начудить со шрифтами.
















