1- АР ПЗ (1218374), страница 3
Текст из файла (страница 3)
Таблица .1.3- Требования по планировке для жилой части здания
| Наименование помещения | Площадь, м2 |
| жилой комнаты в однокомнатной квартире | 14 |
| общего жилого помещения в квартирах с числом комнат две и более | 16 |
| спальни | 8 |
| Кухни: от 2х комнатн.кв. и более Однокомнатные кв. | 8 5 |
| Спальня, кухня в мансардном этаже (жилая комната ≥16м2) | с7 |
Требования по планировке для общественной части.
Состав помещений и их площади определяются в соответствии с технологией функциональных процессов соответствующих типов общественных зданий и в соответствии с расчетными нормами, приведенными в [6].
Помещения в зданиях административного назначения составляют следующие основные функциональные группы:
а) кабинеты руководства;
б) рабочие помещения структурных подразделений;
в) помещения для совещаний и (или) конференц-залы;
г) помещения информационно-технического назначения, в том числе: технические библиотеки, проектные кабинеты, архивы, помещения медиатеки и др.;
д) входная группа помещений, в том числе вестибюль, аван-вестибюль, гардероб, бюро пропусков, помещение охраны;
е) помещения социально-бытового обслуживания сотрудников;
ж) помещения технического обслуживания учреждения;
и) помещения инженерного обслуживания здания.
Площадь кабинетов и приемных руководства учреждений, организаций и предприятий рекомендуется принимать по таблице 1.4.
Таблица 1.4 - Площадь кабинетов и приемных руководства учреждений
| Помещение | Площадь, м | |||
| До 300 | 300-600 | 600-1000 | Св. 1000 | |
| Кабинет руководителя учреждения | 27-36 | 36-45 | 45-54 | 54 |
| Кабинет первого заместителя руководителя | 18-24 | 24-36 | 24-36 | 36-45 |
| Кабинет заместителя руководителя | 12-18 | 18-24 | 18-24 | 18-36 |
| Кабинет помощника руководителя (референт) | 12 | 12 | 12 | 12-18 |
| Приемная руководителя учреждения | 12 | 18 | 24 | 36 |
| Приемная заместителя руководителя | 12 | 12 | 18 | 24 |
| Примечание - Допускается устройство общей приемной при кабинетах руководителя и его заместителя. | ||||
В общественных зданиях вестибюль принимается 0,2-0,3 м
, гардероб - 0,15 м
на одного расчетного посетителя, но не менее 18 м
суммарной площади.
Состав помещений функциональных групп в учреждениях, указанных в перечислениях а) -г) и ж), устанавливается в задании на проектирование, а их площадь и функциональная взаимосвязь определяются технологическими требованиями.
-
Объемно-планировочное решение здания
-
Конструктивная система здания
Конструктивная система проектируемого здания – рамно-связевая. Вертикальными несущими элементами являются монолитные железобетонные колонны, устойчивость колонн обеспечивается монолитными железобетонными диафрагмами жесткости, а также стенами лестничной клетки и лифтовых шахт, горизонтальными несущими элементами являются монолитные безбалочные плиты перекрытия, жесткость обеспечивается единим диском перекрытия по всей площади этажа.
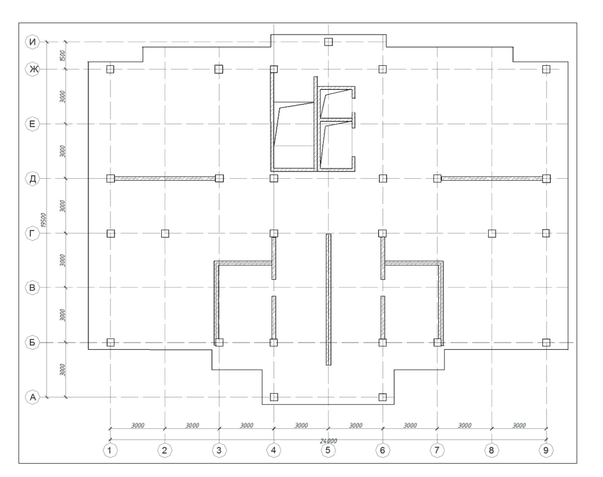
Рисунок 1.2- Конструктивная схема
-
Планы этажей
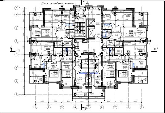
Настоящий проект 14-ти этажного жилого дома ширококорпусного типа выполнен для климатических условий города Благовещенска.
Данный проект соответствует требованиям экологических, санитарно-гигиенических, противопожарных и других норм, действующих на территории России, и обеспечит безопасную для жизни и здоровья людей эксплуатацию объекта. Данное здание имеет сложную конфигурацию в плане: длина здания – 24000мм (по осям 1-9) , ширина 19500мм (по осям А-И). Планировочной схемой здания предусмотрено 2 входных узла.
На первом этаже в осях 1-2, Д-Е располагается электрощитовая, имеющая отдельный выход непосредственно на улицу, офисные помещения, а на 2-14 этажах запроектированы 2-3 комнатные квартиры, предназначенные для коммерческой реализации. Категория помещения электрощитовой по взрывопожарной и пожарной опасности - Д, поэтому она отделяется от квартир противопожарными перегородками 1типа. Планировочная структура квартир позволяет изменять номенклатуру типов квартир по этажам, осуществлять ее перепланировку по желанию клиента. При этом неизменным остается расположение санитарно-технических узлов и кухонь. Жилой дом имеет техподполье для прокладки инженерных сетей, в нем располагаются помещения под инженерное оборудование - тепловой пункт и водопроводно-насосную станцию. Тепловой пункт имеет отдельный вход. Также в техподполье располагается кладовая уборочного инвентаря, оборудованная раковиной. Из техподполья предусмотрено три выхода непосредственно наружу.
Все квартиры выполняются в объеме стройварианта: теплый наружный контур; перегородки из гипсокартона и кирпича; штукатурка, затирка стен, перегородок, потолков; пенобетонная стяжка полов, металлопластиковые окна. Кроме этого монтируется система отопления, водоснабжения, канализации (без установки приборов), электроснабжения, связи.
В качестве элементов архитектурного оформления жилого дома используются: облицовка фасадов и входа фасадными плитами краспан, сплошное остекление лоджий.
Здание запроектировано с учетом требований доступности для маломобильных групп населения, согласно [12]. Для обеспечения доступности всем маломобильным группам населения проектом предусмотрены следующие объемно-планировочные решения:
-
при входе в здание устроен пандус;
-
тамбур с размерами, удовлетворяющими требованиям;
Лестничная клетка оборудована лифтами грузоподъемностью 630кг с
габаритными размерами кабины 1100x2100x2100 и грузоподъемностью 400кг с
габаритными размерами 1100x1100x2100. Высота порогов в дверных проемах и перепадов конструкции пола принята в соответствии с нормами. Проектируемое здание представляет собой монолитный железобетонный каркас, состоящей из колонн, монолитных стен, жестко связанных с монолитными без балочными перекрытиями и свайными ростверками. Колонны приняты сечением 400х400 мм. Толщина перекрытий 160 мм. Толщина монолитных стен 200 мм. Конструктивная схема здания приведена на рис. 1.2.
На основе клаузурной проработки планировочного решения здания завершается работа над эскизами планов здания. С этой целью на планы наносятся элементы конструктивной системы, определяются количество и размещение эвакуационных выходов, размеры проходов, расположение окон и дверей, их типы и размеры, уточняются размеры отдельных помещений и здания в целом, просчитываются площади помещений.
Планировочное решение здания должно быть увязано с модульной сеткой и разбивочными осями. Окончательная разработка эскизов планов этажей здания представлена на рис. 1.3 и 1.4
Рисунок 1.3- План на отм. 0.000
Рисунок 1.4- План типового этажа
-
Разрезы
Разрез здания выполняется на основе решения плана с учётом принятой конструктивной системы. Плоскость разреза должна проходить по наиболее характерным частям здания, для полного представления его объёмно-планировочного и конструктивного решения. Как правило, разрез выполняется по лестничной клетке или входу здания. На разрезе должны быть показаны основные конструкции. Разрез представлен на рис.1.5.
Рисунок 1.5- Разрез здания
-
Фасады
Разработка архитектурного решения фасада здания (рис. 1.6) - завершающая и очень важная часть эскизного проектирования. Архитектура фасада выявляет художественные и конструктивные достоинства и недостатки здания, определяет его выразительность и цельность архитектурного образа. Поэтому при решении фасадов здания учтены основные положения теории архитектурной композиции:
а) тектоника здания;
б) приёмы и средства архитектурной композиции; в) принцип единства и соподчинённости
Рисунок 1.6 – Фасады здания
-
Генеральный план
Генеральный план разработан на основании задания на проектирование и в соответствии с нормами [14]. Подъезд к жилому дому запроектирован с ул. Донской переулок. Плотность запроектированных посадок деревьев и кустарников озеленения соответствует норме. Открытые автостоянки выполнены в соответствии с требованиями [14].
Площадь озелененной территории квартала (микрорайона) многоквартирной застройки жилой зоны (без учета участков школ и детских дошкольных учреждений) должна составлять, как правило, не менее 25% площади территории квартала.
Расстояние от зданий и сооружений, а также объектов инженерного благоустройства до деревьев и кустарников следует принимать в соответствии с таблицей 1.5.
Таблица 1.5- Расстояние от зданий и сооружений до деревьев и кустарников
| Здание, сооружение , объект инженерного благоустройства | Расстояния, м, от здания, сооружения, объекта до оси | |
| ствола дерева | кустарника | |
| Наружная стена здания и сооружения | 5,0 | 1,5 |
| Край трамвайного полотна | 5,0 | 3,0 |
| Край тротуара и садовой дорожки | 0,7 | 0,5 |
| Край проезжей части улиц, кромка укрепленной полосы обочины дороги или бровка канавы | 2,0 | 1,0 |
| Мачта и опора осветительной сети, трамвая, мостовая опора и эстакада | 4,0 | - |
| Подошва откоса, террасы и др. | 1,0 | 0,5 |
| Подошва или внутренняя грань подпорной стенки | 3,0 | 1,0 |
| Подземные сети: | ||
| газопровод, канализация | 1,5 | - |
| тепловая сеть (стенка канала, тоннеля или оболочка при бесканальной прокладке) | 2,0 | 1,0 |
| водопровод, дренаж | 2,0 | - |
| силовой кабель и кабель связи | 2,0 | 0,7 |
| Примечания
| ||
Окончание табл 1.5
| Здание, сооружение , объект инженерного благоустройства | Расстояния, м, от здания, сооружения, объекта до оси | |
| ствола дерева | кустарника | |
| 5 м и должны быть увеличены для деревьев с кроной большего диаметра; | ||
Площадь территории, занимаемой площадками для игр детей, отдыха взрослого населения и занятий физкультурой, должна быть не менее 10% общей площади квартала (микрорайона) жилой зоны.
















