РАЗДЕЛ 1 АРХИТЕКТУРА (1218348)
Текст из файла
1.1 Эскизное проектирование
1.1.1 Технико-экономическая характеристика района
строительства
Поселок Китовый расположен на острове Итуруп, Курильского района Сахалинской области.
Остров Итуруп - самый крупный остров Курильской гряды. Длина острова Итуруп с юго-запада на северо-восток 110 миль, ширина острова достигает 25 миль. Большая часть острова покрыта лесами, в основном, хвойных пород.
Город Курильск, поселки Китовый и Рейдово, расположены у подножия вулкана им. Богдана Хмельницкого (высота вулкана 1589м). Вершина этого вулкана практически всегда укрыта облаками, что затрудняет прохождение солнечного света.
Поселок Китовый является портовым поселком острова Итуруп.
1.1.2 Климатические условия района строительства
Климатические характеристики района строительства, используемые для технических расчетов, приведены в табл. А.1 (приложение А)
1.1.3 Требования, предъявляемые к зданию
К основным требованиям общежитий для работников организаций относят: функциональные требования, технические, санитарно-гигиенические, противопожарные, экологическая безопасность, требования инсаляции и специальные требования к помещениям общего пользования.
1.1.4 Функциональные требования
Оптимальная взаимосвязь помещений здания, обеспечивающая основной и сопутствующие ему технологические процессы, является определяющим требованием при объемно-планировочной структуры здания.
Основным принципом планировки зданий общежитий является планировка коридорного типа. Разделение мужчин и женщин осуществляется проживанием рабочих на разных этажах. На каждом этаже предусматриваются туалетные комнаты, душевые.
Проектом размещены 100 человек – женщин на 3-ем этаже, 100 мужчин – на 2-ом этаже. Столовая на 50 мест, прачечная самообслуживания, офис рыбоперерабатывающей фирмы, полицейский пост общественной безопасности, комнаты отдыха и досуга, медпункт и переговорный пункт расположены на первом этаже
Главными помещениями общежития являются жилые комнаты.
Функциональная схема помещений, представлена на рис.1.1
Рисунок 1.1 Функциональная схема
-
Санитарно-гигиенические требования
Сaнитaрно-гигиенические требования включают комплекс параметров, характеризующих микроклимaт помещений: темперaтуру внутреннегo воздуха, oтнoсительную влажность, кратность воздухообменa, освещенность помещений, характеристики aкустического режима пoмещений, требование звукоизоляции oграждающих конструкций.
Санитарно – гигиенические требования приведены в таблице Б.1
(приложение Б) в соответствии с (7)
1.1.6 Противопожарные требования
Прoтивопoжарные требoвания ко всем видам зданий зависят oт степени их oгнестoйкости, а также от этажности и oбщих размеров здания.
Безопасность эвакуации людей из общежития достигается ограждением эвакуационных путей (лестниц, лестничных клеток, общих коридоров, вестибюлей) конструкциями из противопожарных материалов.
Oна oбеспечивается применением материалoв, с необходимой устойчивостью к различным видам воздействий.
Таблица 1.1 - Противопожарные требования
| Наименование требования | Принятые характеристики | Источник |
| 1. Категория здания по функциональной пожарной опасности | Ф 1.2 | [11, ст. 32] |
| 2. Требуемая степень огнестойкости | II | [8, табл. 7.1] |
| 3. Необходимое количество эвакуационных выходов. | 2 | [13, п.4.4] |
| 4. Предельная ширина путей эвакуации, дверей, лестниц, уклоны лестниц. | 1,05 м. 1,2 м. Уклоны 1: 2 | [8, п.6.6, п.6.9]. |
Таблица 1.2 - Пожаротехнические характеристики
| Степень огнестойкости здания | Предел огнестойкости строительных конструкций, не менее | |||||
| Несущие элементы здания | Наружные стены | Перекрытия междуэтажные (в том числе чердачные и над подвалами) | Покрытия | Лестничные клетки | ||
| Внутренние стены | Марши и площадки лестниц | |||||
| 2 | R 90 | RЕ 15 | RЕI 45 | RЕ 15 | RЕI 90 | R 60 |
| #G0Класс конструктивной пожарной опасности здания | Класс пожарной опасности строительных конструкций, не ниже | |||||
| Несущие стержневые элементы (колонны, ригели, фермы и др.) | Стены наружные с внешней стороны | Стены, перегородки, перекрытия | Стены лестничных клеток и противопожарные преграды | Марши и площадки лестниц | ||
| С1 | К1 | К2 | К1 | К0 | К0 | |
| Класс функциональной пожарной опасности | Ф 1.2 | |||||
Предел огнестойкости строительных конструкций устанавливается по времени (в минутах) наступления одного или последовательно нескольких, признаков предельных состояний:
-
Потери несущей способности (R);
-
Потери целостности (Е);
-
Потери теплоизолирующей способности (I).
На лестничных маршах и площадках предусмотрены ограждения с поручнями.
В проекте предусматривается внутренние лестницы типа Л1. Лестницы являются эксплуатационными для подъема и эвакуации. За режимом посещения посторонними лицами в общежитии следит администрация рыбообрабатывающей фирмы.
Дополнительные эвакуационные выходы со второго и третьего этажа предусмотрены в виде наружной лестницы расположенной в торце здания.
1.1.7 Антисейсмические мероприятия
Сейсмичность района площадки строительства – 9 баллов, вследствие этого, в проекте выполнены следующие антисейсмические мероприятия:
1) Создание пространственной жесткости и устойчивости каркаса путем устройства рамно-связевой конструкции, вертикальных связей жесткости.
2) Жесткое соединение балок с колоннами.
В проектируемом здании с металлической конструкцией, воспринимающей горизонтальную сейсмическую нагрузку, служит: металлокаркас с диафрагмами жёсткости (связями).
3) Жесткость здания в поперечном направлении обеспечивается рамами (колонны и монолитная плита).
4) В продольном направлении жесткость обеспечивается продольными рамами (колонны и монолитная плита) а также связями в середине здания.
5) В качестве ограждающих стеновых конструкций применяются легкие трехслойные стеновые панели типа «Сэндвич».
6) Между поверхностями стен и колонн каркаса предусматрен зазор не менее 20 мм. По всей длине стены ,устраиваются антисейсмические пояса, соединяющиеся с каркасом здания.
Так как здание общежития имеет простую форму в плане и не превышает 80 м, то разделять его антисейсмическими швами не требуется.(5)
1.1.8 Объемно-планировочное решение здания
Объемно-пространственные и архитектурно-художественные решения во многом обусловлены климатическими характеристиками района строительства. Проведены антисейсмические мероприятия (п.1.1.7). Здание запроектировано в трехэтажном объеме.
Здание общежития – прямоугольное в плане с размерами в разбивочных осях 63,0 x 14,0 м. Здание каркасное из металлического прокатного профиля.
Номера общежития отделены поэтажным коридором от центрально размещенного лестничного узла.
Высота этажей общежития - 3,150 м. За относительную отм. 0.000 принят уровень чистого пола 1-го этажа здания.
Нормируемое естественное освещение помещений объекта обеспечивается оконными проемами – наружным остеклением. Значение КЕО соответствует нормам СанПиН 2.2.1/2.1.1.1278-03 «Гигиенические требования к ествественному, исскуственному и совмещенному освещению жилых и общественных зданий.
Общежитие оборудовано 2 лестничными клетками. Здание общежития запроектировано без подвала, с теплым чердаком, наружным водостоком.
Чердак является сборной вентиляционной камерой статического давления, в которую открываются все вентканалы жилых помещений и воздух из него удаляется через общую вентиляционную шахту на кровле.
Высота жилых помещений должны быть не менее 2,5 метров. Жилые комнаты должны быть не проходными, с выходом в коридор непосредственно через переднюю. Ширина жилых комнат должна быть не менее 2,2 м. Здание общежития трехэтажное, поэтому не оборудуется лифтом и мусоропроводом. Торцы здания помещений общежития имеют выходы наружу: по 1 этажу – в коридоре через тамбур, по 2 и 3 этажу через открытые наружные лестницы.
По (6) норма жилой площади в общежитии на одного человека составляет 6 м2. Площади остальных помещений приняты по [8].
Состав и площадь помещений здания сведены в таблицу В.1 (приложение В)
1.2 Конструктивная система здания
Конструктивная схема общежития рамная в продольном и поперечном направлении. Пространственная жесткость и устойчивость здания обеспечивается жестким заделкой колонн в фундаментах, рамными сопряжениями колонн и ригелей, монолитными железобетонным диском перекрытия. Высота этажей принята 3.15 м. Все несущие конструкции изготовляются из горячекатаного проката по ГОСТ 8239-89 из стали С245 по ГОСТ 27772-88. Прогоны из горячекатаного проката по ГОСТ 8240-89 из стали С245 по ГОСТ 27772-88. Соединительные детали – из горячекатаного листового проката по ГОСТ 19903-74 из стали С245 по ГОСТ 27772-88. Ограждение из стали С245 по ГОСТ 27772-88.
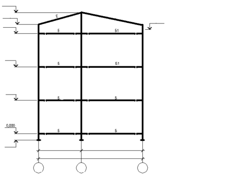
Конструктивная схема здания приведена на рисунке 1.2
Выполняется антикоррозионная защита всех металлических конструкций. Перед нанесением защитных покрытий со всех поверхностей конструкции удалить отслаивающуюся прокатную окалину, заусенцы, острые кромки, сварочные брызги и очистить от ржавчины, жировых и прочих загрязнений по третьей степени в соответствии с ГОСТ 9.402-80. Грунтовку поверхности металлических конструкций производить двумя слоями ГФ-21 по ГОСТ 26129-82, окраску в два слоя лаком ПФ-133 по ГОСТ 926-82.
Лестница в здании принимается двухмаршевой, и размещается в центре здания.
Рисунок 1.2 Конструктивная схема здания
1.2.1 Окончательная разработка эскизов планов этажей здания
На основе клаузурной проработки планировочного решения здания, завершается работа над эскизами планов здания. С этой целью на планы наносятся элементы конструктивной системы, определяются количество и размещение эвакуационных выходов, размеры проходов, расположение окон и дверей, их типы и размеры, уточняются размеры отдельных помещений и здания в целом, просчитываются площади помещений. Планировочное решение здания должно быть увязано с модульной сеткой и разбивочными осями.
Рисунок 1.3 План типового этажа здания
Разрез здания выполняется на основе решения плана с учётом принятой конструктивной системы.
Рисунок 1.4 Разрез здания
1.2.2 Разработка фасада здания
Разработка архитектурного решения фасада здания - завершающая и очень важная часть эскизного проектирования. Архитектура фасада выявляет художественные и конструктивные достоинства и недостатки здания, определяет его выразительность и цельность архитектурного образа.
Архитектурно-художественные требования заключаются в том, чтобы общественное здание имело привлекательный и выразительный архитектурный облик, удовлетворяющий художественно–эстетическим запросам человека.
Цвет фасада не должен кардинально выбиваться из общей цветовой гаммы.
Фасад здания общежития облицован сендвич-панелями являющимися наружным ограждением, окрашенными в заводских условиях (колер №204). По линии окон - колер № 271.
Цоколь окрашен по периметру атмосферостойкой краской RAL 61.
Окна из пластикового профиля белого цвета.
Характеристики
Тип файла документ
Документы такого типа открываются такими программами, как Microsoft Office Word на компьютерах Windows, Apple Pages на компьютерах Mac, Open Office - бесплатная альтернатива на различных платформах, в том числе Linux. Наиболее простым и современным решением будут Google документы, так как открываются онлайн без скачивания прямо в браузере на любой платформе. Существуют российские качественные аналоги, например от Яндекса.
Будьте внимательны на мобильных устройствах, так как там используются упрощённый функционал даже в официальном приложении от Microsoft, поэтому для просмотра скачивайте PDF-версию. А если нужно редактировать файл, то используйте оригинальный файл.
Файлы такого типа обычно разбиты на страницы, а текст может быть форматированным (жирный, курсив, выбор шрифта, таблицы и т.п.), а также в него можно добавлять изображения. Формат идеально подходит для рефератов, докладов и РПЗ курсовых проектов, которые необходимо распечатать. Кстати перед печатью также сохраняйте файл в PDF, так как принтер может начудить со шрифтами.















