ПЗ_КИМ (1212490), страница 6
Текст из файла (страница 6)
Заключительные работы
Подготовительные работы. На данном этапе подготавливается площадка для размещения бурового комплекса. Монтируется буровая установка и вспомогательное оборудование, проводится проверка системы локации буровой головки и установки приготовления бурового раствора.
Бурениe пионерной скважины.
Бурение пионерной, или как еще говорят - пилотной, скважины выполняется буровым комплексом в направлении - от себя. Оно осуществляется при помощи породоразрушающего инструмента — буровой головки или забойным двигателем. Буровая головка соединена с буровой штангой, что позволяет управлять процессом строительства пилотной скважины и обходить выявленные на этапе подготовки к бурению подземные препятствия в любом направлении в пределах естественного изгиба протягиваемой рабочей нити. Буровая головка имеет отверстия для подачи специального бурового раствора, который закачивается в скважину и образует суспензию с размельченной породой. Буровой раствор уменьшает трение на буровой головке и штанге, предохраняет скважину от обвалов, охлаждает породоразрушающий инструмент, разрушает породу и очищает скважину от её обломков, вынося их на поверхность. Контроль за местоположением буровой головки осуществляется с помощью системы локации которая передает данные о местоположении, уклоне азимуте буровой головки. Эти данные являются определяющими для контроля соответствия траектории строящегося трубопровода проектной и минимизирует риски излома рабочей нити. Строительство пилотной скважины завершается выходом буровой головки в заданной проектом точке.
Расширение скважины
На буровой машине буровые штанги вкручиваются последовательно, одна в другую, по мере продвижения буровой головки. Таким образом, соединённые между собой штанги, похожи на гибкий трос. После проведения пилотного бурения плеть штанг остается в скважине. При этом буровая головка отсоединяется от буровых штанг и вместо неё присоединяется риммер — расширитель обратного действия. Приложением тягового усилия с одновременным вращением риммер протягивается через створ скважины в направлении буровой установки, расширяя пилотную скважину до необходимого для протаскивания трубопровода диаметра. Для обеспечения беспрепятственного протягивания трубопровода через расширенную скважину её диаметр должен на 25-100 % превышать диаметр трубопровода.
Протаскивание трубопровода.
На противоположной от буровой установки стороне скважины располагается готовая к протягиванию плеть трубопровода. К переднему концу плети крепится оголовок с воспринимающим тяговое усилие вертлюгом и риммеру, и в то же время не передает вращательное движение на трубопровод. Таким образом, буровая установка затягивает в скважину плеть протягиваемого трубопровода по проектной траектории.
Заключительные работы.
После проведения работ по ГНБ выполняются работы связанные с демонтажом и вывозом бурового оборудования. Демонтируется монтажная площадка, вывозятся остатки бурового шлама и строительного мусора. Выполняется техническая и биологическая рекультивация.
Основные преимущества технологии ГНБ.
Возможность бестраншейного строительства, ремонта и санации подземных коммуникаций:
-
под реками, оврагами, лесными массивами;
-
в специфических грунтах (скальные породы, плавуны);
-
в охранных зонах высоковольтных воздушных линий электропередач, магистральных газо-, нефте-, продуктопроводов;
-
в условиях плотной жилищной застройки городов при прохождении трассы под автомагистралями, трамвайными путями, автомобильными дорогами, скверами и парками;
-
Сокращение сроков и объёма организационно-технических согласований перед началом работ в связи с отсутствием необходимости остановки движения всех видов наземного транспорта, перекрытия автомобильных и железных дорог;
-
Значительное сокращение сроков производства работ за счет использования высокотехнологичных буровых комплексов;
-
Значительное сокращение количества привлекаемой для прокладки трубопроводов тяжелой техники и рабочей силы;
-
Уменьшение риска аварийных ситуаций и, как следствие, гарантия длительной сохранности трубопроводов в рабочем состоянии;
-
Отсутствие необходимости во внешних источниках энергии при производстве работ в связи с полной автономностью установок;
-
.
-
Отсутствие необходимости производства работ по водопонижению в условиях высоких грунтовых вод.
Экономический аспект.
-
Уменьшение сметной стоимости строительства трубопроводов за счет сокращения сроков производства работ, затрат на привлечение дополнительной рабочей силы и тяжелой землеройной техники;
-
Минимизация затрат на энергообеспечение буровых комплексов вследствие экономичности используемых агрегатов;
-
Отсутствие затрат на восстановление поврежденных участков автомобильных и железных дорог, зеленых насаждений и предметов городской инфраструктуры;
-
Сокращение эксплуатационных расходов на контроль и ремонт трубопроводов в процессе эксплуатации.
Социально-экологические преимущества
-
Сохранение природного ландшафта и экологического баланса в местах проведения работ, исключение техногенного воздействия на флору и фауну, размыва берегов и донных отложений водоемов;
-
Минимизация негативного влияния на условия проживания людей в зоне проведения работ.
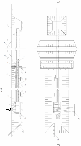
1 - установка горизонтального бурения; 2 - рабочий котлован; 3 - полиспаст; 4 - якорная труба; 5 -
ограждение; 6 - полотно дороги; 7 - приемный котлован; 8 - режущая головка; 9 - приямок для откачки воды;10 - шнек; 11 - кожух; 12 - направляющая тележка; 13 - отвал грунта; 14 - лестница; 15 - трубоукладчик
Рисунок 9 - Схема прокладки водовода методом горизонтально-направленного бурения
Рисунок 10 – установка ГНБ фирмы Vermeer
Описание особенностей проведения работ в условиях стесненной городской застройки.
Траса линейного объекта имеет разветвленную сеть и проходит по существующим городским улицам, вдоль проезжих частей, тротуаров и жилых домов.
Производство работ по прокладке сетей будет производится в стесненных условиях сельской застройки. Выполняться они будут короткими захватками с полным завершением работ на захватке и восстановлением разрушенного покрытия.
Частичная прокладка сетей будет производится вдоль существующих улиц по краю проезжей части. Рытье траншей и прокладка труб будет осуществляться с колес, в связи с ограниченностью пространства и отсутствием мест складирования материалов.
Размещение строительной техники для монтажа и обеспечения материалами в местах производства работ будет осуществляться с частичным перекрытием проезжих частей и полным перекрытием тротуаров. Что соответственно затруднит движение транспортных средств и пешеходов. Для безопасного движения пешеходов необходимо создать дополнительные проходы по проезжей части с установкой ограждения. Подходы жилым домам оборудовать деревянными трапами с перилами. Регулировку движения транспортных средств осуществлять путем установки соответствующих знаков, либо при помощи сигнальщиков, оборудованных жилетами яркого оранжевого цвета и красными флажками.
В местах пересечения трассы с другими подземными инженерными сетями залегающими выше проектируемой, необходимо произвести работы по укреплению и подвеске существующих инженерных сетей.
Зеленые насаждения попавшие в зону производства работ необходимо огородить деревянными коробами для предотвращения их повреждения.
Так же производство работ осложнено выполнением работ под воздушными линиями электропередач, на что должно быть получено соответствующее разрешение от владельца электросетей.
Заключение
Для достижения поставленной цели в выпускной квалификационной работе были выполнены следующие задачи:
-
Выбрана оптимальная схема водоснабжения города с учетом верхней и нижней зоны жилой застройки города.
-
Запроектирована водопроводная насосная станция с двумя группами насосов отдельно на нижнюю и верхнюю зоны
-
Запроектирована установка двух резервуаров чистой воды на 300 м3 каждый для обеспечения хранения хозяйственно-питьевого и противопожарного запасов воды на верхней зоне застройки города.
-
Запроектирована прокладка магистрального водовода диаметром 140 мм от НС-II до РЧВ верхней зоны.
Все принятые инженерные решения были выполнены в соответствии с действующими нормативными документами в области организации строительства систем водоснабжения.
Список литературы
-
Свод правил СП 31.13330.2012 "СНиП 2.04.02-84*. Водоснабжение. Наружные сети и сооружения" Актуализированная редакция СНиП 2.04.02-84*/
-
Акимов, О.В., Акимова Ю.М., Ганус А.Н. Водоснабжение и водоотведение: учеб. Пособие/ Хабаровск: Изд-во ДВГУПС, 2015
-
Дикаревский В.С. Водоснабжение и водоотведение на железнодорожном транспорте: учеб. для вузов/ Москва: ГОУ УМЦ ЖДТ, 2009
-
Репин Б.Н. Водоснабжение и водоотведение. Наружные сети и сооружения. Справочник: учеб. изд./Москва: Интеграл, 2013
-
М. Г. Журба, Л. И. Соколов, Ж. М. Говорова. Водоснабжение. Проектирование систем и сооружений : пособие для вузов в 3 т, Т. 2 : Очистка и кондиционирование природных вод/ Москва : АСВ., 2010
-
М. Г. Журба, Л. И. Соколов, Ж. М. Говорова. Водоснабжение. Проектирование систем и сооружений в 3 т.: учеб. пособие для вузов в 3 т. Т. 3 : Системы распределения и подачи воды/ Москва : АСВ., 2010
-
Белоконев Е.Н., Попова Т.Е. Водоотведение и водоснабжение: учеб. Пособие/ Ростов-на-Дону: Феникс, 2009
-
М. Г. Журба, Л. И. Соколов, Ж. М. Говорова. Водоснабжение. Проектирование систем и сооружений : учеб. пособие для вузов в 3 т Т. 1 : Системы водоснабжения, водозаборные сооружения/ Москва : АСВ, 2010
ПРИЛОЖЕНИЕ 1
ОКОНЧАНИЕ ПРИЛОЖЕНИЯ 1
ПРИЛОЖЕНИЕ 2















