ПЗ (1199709), страница 13
Текст из файла (страница 13)
Каждая грузовая единица в вагоне маркируется, согласно нормативно-технической документации на конкретный вид ВМ, транспортной маркировкой по ГОСТ 14192-96, а также имеет маркировку, характеризующую вид и степень опасности (транспортную опасность) ВМ.
Маркировка, характеризующая транспортную опасность, наносится в соответствии с ГОСТ 19433-88 на упаковку, транспортный пакет, а также на контейнер или железнодорожное транспортное средство. Для грузов, перечисленных в табл.П.10.2, она содержит:
- знак опасности, основной и дополнительный;
- условный номер.
Для ВМ, поименованных в [1], указанная маркировка содержит:
- знак опасности;
- транспортное наименование груза;
- номер ООН.
Допускается не наносить маркировку, характеризующую транспортную опасность ВМ, на транспортный пакет, если на его боковой и торцевой поверхностях четко видна маркировка, нанесенная на упаковку. Тара, средства упаковывания или транспортные средства из-под ВМ имеют маркировку, характеризующую транспортную опасность этого ВМ. Допускается маркировку наносить на крышку упаковки, если она не размещается на боковой и торцевой стенках. Тогда в междверном проеме вагона вывешивается таблица с маркировкой, характеризующей транспортную опасность перевозимого ВМ. На решетчатой цилиндрической таре указанную выше маркировку наносят на свободную от маркировки торцевую поверхность. При транспортировании ВМ, упакованных в футляры, установленные на поддоны, знак опасности и условный номер наносят на футляры, а манипуляционные знаки по ГОСТ 14192-96 - на поддоны.
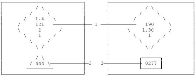
Знаки опасности, используемые при перевозке по участку Хабаровск 2 - Бикин, в зависимости от подклассов ВМ выполняются в соответствии с рисунком 7.1. Цвет фона указанных знаков опасности - оранжевый. Высота цифр 1.4, 1.5, 1.6 составляет 30 мм, толщина - 5 мм.
Рисунок 7.1. Знаки опасности для взрывчатых материалов: а - подклассов 1.1-1.3; б - подкласса 1.4; в - подкласса 1.5; г - подкласса 1.6
* - место нанесения класса;
** - место нанесения подкласса и группы совместимости;
*** - место нанесения группы совместимости;
- место нанесения номера аварийной карточки.
Знаки опасности имеют форму квадрата, поставленного на угол. Размер стороны квадрата для этих знаков, наносимых на упаковку и (или) транспортный пакет - составляет не менее 100 мм (допускается уменьшать размер стороны квадрата до 50 мм, если не позволяют габаритные размеры упаковки, а вместо надписи "Взрывается" допускается сокращенная надпись "Взрыв"), а на контейнер, железнодорожное транспортное средство - не менее 250 мм.
Маркировка, характеризующая транспортную опасность груза, наносится на:
-
упаковку и (или) транспортный пакет - на контрастном фоне или ярлыке рядом с манипуляционными знаками по ГОСТ 14192-96;
-
контейнер - на дверь, боковые стенки и, если позволяет конструкция, на крышу;
-
железнодорожное транспортное средство - в центре обеих дверей так, чтобы она была видна персоналу при проведении погрузочно-разгрузочных, маневровых, аварийно-восстановительных работ.
Также допускается совмещение маркировки, характеризующей транспортную опасность, с транспортной маркировкой и маркировкой, характеризующей продукцию, на одном ярлыке. При этом размер ярлыка возрастает на величину, кратную числу знаков.
Способы и материалы для нанесения маркировки используются в соответствии с ГОСТ 14192-96.
Рисунок 7.2. Форма и содержание ярлыка опасности: 1 - знак опасности; 2 - условный номер; 3 - номер ООН.
На крупногабаритную тару, контейнер и железнодорожное транспортное средство прикрепляется съемный ярлык опасности, с нанесением на него знака опасности, с указанием в нем номера аварийной карточки и условного номера ВМ в треугольнике (рис.7.2., 1) или номера ООН в прямоугольнике (рис.7.2., 3), который после разгрузки удаляется грузополучателем.
При подготовке груза к отправке на транспортные пакеты наносят соответствующую маркировку, а также на транспортное средство наклеивают съемный ярлык опасности, который будет соответствовать номеру аварийной карточки груза.
7.3 Подготовка и подача вагонов под погрузку
Погрузка ВМ на станции Хабаровск 2, Хор, Вяземская производится в исправные и чистые вагоны, которым до очередного периодического ремонта остается не менее 15 сут., оборудованные роликовыми колесными парами и композиционными тормозными колодками, имеющими толщину не менее 30 мм. Допускается использовать для перевозки ВМ вагоны, имеющие переходные площадки или стояночные ручные тормоза в случае сопровождения их военизированной охраной железной дороги. Запрещается погрузка ВМ в вагоны без технического осмотра, а также без осмотра в коммерческом отношении и признания их годными под перевозку этих грузов. Начало погрузки ВМ в порожние вагоны и контейнеры производится не позднее 24 часов с момента окончания технического обслуживания. Техническое обслуживание вагонов и определение пригодности их в техническом отношении под перевозку этих грузов осуществляется в установленном порядке работниками вагонного хозяйства.
Технический осмотр и определение пригодности ходовых частей, колесных пар, буксового узла, рамы вагона, тормозных и ударно-тяговых устройств подвижного состава, принадлежащего грузоотправителям (грузополучателям) или арендованного ими, производятся работниками вагонного хозяйства железных дорог по заявке грузоотправителя, подаваемой начальнику станций письменно или регистрируемой телефонограммой. Техническое состояние и пригодность под перевозку ВМ кузовов этих вагонов (пола, обшивки стен, крыши, дверей, крышек люков), плотность прилегания крышек, а также чистоту и состояние всего наружного и внутреннего оборудования определяет грузоотправитель.
Учет предъявления к техническому осмотру вагонов, подаваемых под погрузку ВМ, в том числе и вагонов, принадлежащих грузоотправителям (грузополучателям) или арендованных ими, производится в отдельной книге формы ВУ-14. Об осмотре вагонов и определении пригодности их в техническом отношении для перевозки ВМ работники, производившие осмотр, делают в этой книге соответствующие записи с указанием дополнительных данных о включении или выключении автотормозов, а также данных о дате и месте последнего периодического ремонта и удостоверяют эти записи своей подписью. Пригодность вагонов для перевозки ВМ в коммерческом отношении определяется грузоотправителем. Очистка подвижного состава после выгрузки ВМ осуществляется средствами и за счет грузоотправителя (грузополучателя) с соблюдением мер предосторожности и безопасности. При обнаружении утечек, разливов или россыпи ВМ дополнительно производится обезвреживание и промывка вагонов и контейнеров. Выключение автотормозов у указанных вагонов после их загрузки производится на сдаточном пути.
При перевозке ВМ в цельнометаллическом специализированном вагоне грузоотправителя (грузополучателя), имеющем помещение для сопровождающих и воинского караула (наряда), разрешается следование их в этом вагоне независимо от вида, загруженного в него ВМ. Указанное помещение оборудовано приборами отопления, исключающими выброс искр в атмосферу и, обеспечивающими автоматическое выключение приборов, имеющих электрическое отопление при их неисправности, а также снабжено средствами пожаротушения по нормам, установленным грузоотправителем (грузополучателем). Конструкция приборов отопления и место их установки согласованы с органами управления военизированной охраной и вагонным хозяйством железнодорожной администрации. Отметка в перевозочных документах о наличии в вагоне печного отопления не производится.
Грузоотправитель проверяет перед погрузкой наличие и исправность указанных приборов и средств. Электрооборудование специализированных вагонов для перевозки ВМ находятся во взрывобезопасном исполнении. Следование воинских караулов (нарядов) и сопровождающих специалистов в вагоне, загруженном ВМ, не допускается. Для размещения специалистов, воинских караулов (нарядов) и охраны грузоотправителя при таких перевозках железной дорогой в счет плана грузоотправителя предоставляется крытый четырехосный вагон, по возможности с переходной площадкой. Такие вагоны должны оборудоваться железной дорогой.
Для размещения охраны и сопровождающих специалистов используются вагоны, принадлежащие грузоотправителю (грузополучателю) и оборудуемые им, освидетельствованные санэпидстанцией о пригодности перевозки людей и служебных животных, или цельнометаллический пассажирский вагон, оборудованный грузоотправителем (грузополучателем). Грузоотправители при отгрузке ВМ в специализированных, собственных или находящихся в аренде вагонах, контейнерах перед каждой погрузкой предъявляют работникам станций, на которых осуществляется погрузка, и вагонного депо Хабаровск 2 свидетельства о технической исправности вагонов и контейнеров, включая их оборудование, гарантирующее безопасность перевозки конкретного взрывчатого материала. Номер свидетельства работники вагонного хозяйства проставляют в книге ВУ-14, а грузоотправитель в графе 4 накладной производит отметку: "Вагон в техническом и коммерческом отношении и оборудование его исправны и соответствуют установленным требованиям".
Прежде чем грузить взрывчатые вещества в вагон, работники вагонного хозяйства удостоверяются в его технической и коммерческой исправности. При сопровождении охраны в состав поезда ставятся крытые вагоны, пригодные для перевозки людей.
7.4 Завоз, погрузка, выгрузка и перегрузка ВМ
Погрузка (выгрузка) ВМ производится только на железнодорожных подъездных путях, принадлежащих грузоотправителям (грузополучателям) или арендованных ими и имеющих соответствующие склады и другие обустройства, обеспечивающие своевременную погрузку или выгрузку указанных грузов и безопасность работ. Погрузка и выгрузка ВМ, принадлежащих министерствам обороны, внутренних дел, службе безопасности, производится также на специально выделенных открытых площадках станций Хабаровск 2, Хор, Вяземская. Погрузка и выгрузка вагонов с ВМ на подъездных путях предприятий, учреждений, организаций, а также на специально выделенных открытых площадках железнодорожных станций Хабаровск 2, Хор, Вяземская производится круглосуточно силами и средствами грузоотправителя (грузополучателя) в соответствии с требованиями. Порядок подачи и уборки вагонов на подъездные пути предприятий, учреждений, организаций устанавливается договором на эксплуатацию железнодорожного подъездного пути, а при обслуживании его локомотивом железной дороги - договором на подачу и уборку вагонов. Погрузка и выгрузка ВМ производится под руководством специально выделенного ответственного представителя грузоотправителя или грузополучателя в присутствии представителя пожарной охраны соответствующей станции. При этом указанный представитель грузоотправителя или грузополучателя обеспечивает организацию завоза и вывоза ВМ со специально выделенных открытых площадок железнодорожных станций; правильность погрузки, размещения и крепления ВМ в вагонах согласно техническим условиям и правилам правильность специального укрытия ВМ на открытом подвижном составе; выполнение условий совместной погрузки ВМ и соблюдение мер безопасности при погрузочно-разгрузочных работах; охрану ВМ до момента передачи груженого вагона железной дороге или с момента приема от дороги вагона, прибывшего под выгрузку. При погрузке и выгрузке на специально выделенных открытых площадках станции Хабаровск 2, Хор, Вяземская вагонов с ВМ, принадлежащих министерствам обороны, внутренних дел, службе безопасности, грузоотправители (грузополучатели) до начала работ сообщают начальнику данной станции фамилию и должность лица, ответственного за обеспечение безопасности производства работ.
Грузоотправитель заблаговременно подготавливает к перевозке ВМ специальное оборудование вагонов, а также материалы для крепления ВМ и подготовки вагонов (доски, стойки и перегородки, щиты, решетки, мягкий подстилочный материал, войлок, брезент, крафт-бумагу, клей и др.). До сдачи ВМ к отправлению, а также в процессе погрузки ВМ все грузовые места тщательно осматриваются грузоотправителем с целью проверки правильности упаковки, качества тары, наличия маркировки и правильности указания на ВМ и в перевозочных документах условного номера ВМ (номера ООН) и массы груза, целости пломб и печатей, если груз опломбирован. Все обнаруженные дефекты и неисправности, а также повреждения тары в процессе погрузки, выгрузки устраняются в специально отведенных местах в возможно короткий срок. Если при погрузке ВМ, выявляются грузовые места, дефекты которых не могут быть устранены до погрузки, а также в случае россыпи, разлива, они не допускаются к перевозке и немедленно вывозятся грузоотправителем с территории станции, в соответствии с предписаниями аварийной карточки на ВМ.















