Тип проект_3_11 ПСЧ (1195237), страница 3
Текст из файла (страница 3)
Типовая схема расположения ПСЧ, кабелей связи и электропитания представлена в приложении 7.4
Типовая схема установки шкафа ПСЧ и подключения ПЭ-1 к шкаф ПСЧ представлены в приложении 7.6
Спецификация оборудования и материалов для установки шкафа ПСЧ представлена в приложении 7.5
Выбор места установки ПСЧ определяется комиссионно для каждого объекта (станция, депо). По этим исходным данным разрабатывается рабочий проект установки ПСЧ на конкретном объекте, в котором и определяется фактическая спецификация материалов (длины кабелей электропитания и связи, длины асбестовых труб и т.д.).
5.1Требования и рекомендации к проведению типовых работ по установке ПСЧ
ПСЧ должны устанавливаться, как правило, в промежутке между опорами контактной сети и ЛЭП, но не ближе 5 м от опорных и поддерживающих конструкций, светофоров (мачтовых и карликовых) и стрелочных приводов. Не рекомендуется устанавливать ПСЧ под жесткой или гибкой поперечинами контактной сети, под мостами и на них, в том числе под пешеходными мостами, а также ближе 5 м от границы переездов. Установка всего напольного оборудования производится на основании согласованного со службами Ш, Э, П, НС дороги и утвержденного главным инженером дороги проекта.
Типовой вариант установки шкафа ПСЧ для – двухпутного участка – на Рис. 5 .5.
Для установки шкафа ПСЧ необходимо выполнить следующие работы:
-
Устроить котлован под основание шкафа.
-
Произвести установку фундамента шкафа с учетом размещения запасных полуколец кабеля.
-
Произвести засыпку основания шкафа щебнем с виброуплотнителем.
-
Произвести измерение сопротивления основания шкафа сигнальному току утечки в землю. Если сопротивление больше 100 Ом, то шкаф изолировать от основания с помощью изолирующих втулок и прокладок.
-
Установку шкафа производить с отклонением от вертикали не более 1 градуса.
-
Заземляющий проводник оконцевать заделкой в кольцо и закрепить на болт заземления шкафа.
Рис. 5.5 Установка ПСЧ
5.1.1Электроснабжение ПСЧ
Особое место в обеспечении нормального функционирования является обеспечение ПСЧ надежными источниками электропитания.
Аппаратура ПСЧ является потребителем первой категории. Поэтому электроснабжение в шкафах ПСЧ должно быть выполнено от двух независимых источников электроснабжения.
Перерыв в их электроснабжении может быть допущен только на время автоматического ввода резервного питания. Это время должно быть минимальным, но не более 1,3 с. Мощность потребления ПСЧ не более 500 ВА.
Сеть переменного тока должна быть под напряжением 220В +5%/-10%
Электроснабжение в шкафу ПСЧ может быть выполнено от (табл. 5.1):
-
источника электроснабжения устройств СЦБ и связи (комплектные трансформаторные подстанции, щит выключения питания (ЩВП) поста электрической централизации, релейный шкаф автоблокировки или входного сигнала и т.п.) через специально установленный изолирующий трансформатор;
-
ДПР, ПР и высоковольтных линий электроснабжения устройств СЦБ (ВЛ СЦБ – основное электроснабжение) и нетяговых потребителей (ВЛ ПЭ, ДПР, ПЭ - резервное) с установкой специальных трансформаторных подстанций с учетом требований типовых проектов;
-
резервных систем электроснабжения на постах ЭЦ, домов связи и других служебно-технических зданий с использованием, например, дизель-генераторных агрегатов (ДГА) и т.п.
Рекомендуемые схемы электроснабжения приведены в таблице
Таблица 5.2 Варианты электроснабжения шкафа ПСЧ
| № п/п | 1 фидер | 2 фидер | Род тяги |
| 1 | Одноцепная высоковольтная линия а) сущ. или проект ЛЭП – 10(6) кВ, ЛЭП – 1 кВ б) сущ. ТП и другие местные источники ВЛ СЦБ – 10(6) кВ | ЛЭП – 10(6)кВ продольного электроснабжения на самостоятельных опорах | Электротяга |
| Различные независимые от ВЛ СЦБ источники электроснабжения электроприемники I(II) категории | |||
| ЛЭП – 6(10) кВ ПЭ на опорах контактной сети | |||
| ДПР – 27,5 кВ на опорах контактной сети | |||
| 2 | Двухцепная ВЛ СЦБ -10(6) кВ | Любой | |
| Цепь АБ а) сущ. или проект ЛЭП – 10(6) кВ, ЛЭП – 1 кВ б) сущ. ТП и другие местные источники ВЛ СЦБ – 10(6) кВ | Цепь ПЭ | ||
Запрещается производить электроснабжение аппаратуры ПСЧ от КТП для электрообогрева стрелок и других хозяйственных нужд (например, водокачек).
Проект подключения системы электроснабжения ПСЧ должен согласовываться с дистанцией электроснабжения, Ш и НС. Во всех цепях электропитания должны устанавливаться автомат включения резерва, защиты и индикации (АВРЗИ)
аналогично системам электроснабжения устройств СЦБ в релейных шкафах автоблокировки и электрической централизации при времени переключения согласно установленной продолжительности (не более 1,3 с).
Электропитание на пунктах управления и обработки информации, расположенных в домах связи и на постах ЭЦ, должно осуществляться при согласовании с дорогой по схемам электроснабжения устройств СЦБ и связи от отдельного трансформатора. При расположении источников электропитания с разных сторон пути силовые кабели от основного и резервного источников электропитания должны подводиться только к одному из пунктов электропотребления, при этом другие пункты электропотребления запитываются с использованием кабеля, проложенного между ними по специальному каналу, в том числе и под железнодорожным полотном. При этом следует учитывать, что силовые кабели вводятся в шкафы через муфту при фундаментных блоках или изолированно на клеммы шкафа при других видах фундаментов. При монтаже напольного оборудования тип кабеля, кабельная трасса и особые условия их прокладки определяются на стадии проектирования, а работы по прокладке кабелей и их монтажу должны производиться согласно Правилам по монтажу устройств СЦБ (ПР 32 ЦШ10.02-96), а также ВСН-600.
При прокладке кабелей электропитания и связи необходимо в соответствие с нормами:
-
обеспечить сохранность существующих кабелей (силовых, СЦБ и связи);
-
выдержать габариты приближения строений, подземных сооружений и кабелей других ведомств согласно требованиям нормативных документов.
-
в некоторых случаях электроснабжение ПСЧ следует производить от самостоятельных трансформаторных пунктов, подключенных к ВЛ-6; 10 кВ (основной фидер) и ДПР (резервный) согласно Инструкций ЦЭ-191 и ЦЭ-881/02.
При электротяге постоянного тока кабели с металлической оболочкой в необходимых случаях должны защищаться от электрокоррозии согласно Инструкции ЦЭ-518. В местах пересечения проектируемых кабельных линий с железнодорожным полотном, существующими кабельными линиями и другими коммуникациями предусматривать использование асбоцементных труб или других, например, полимерных труб.
Н
а Рис. 5 .6 - Рис. 5 .9 приведены варианты схемы электроснабжения от ЛЭП АБ
Рис. 5.6 Вариант схемы электроснабжения от ЛЭП АБ
Рис. 5.7 Вариант схемы электроснабжения ПСЧ для двухпутного участка
Рис. 5.8 Варианты схем электроснабжения для однопутного участка
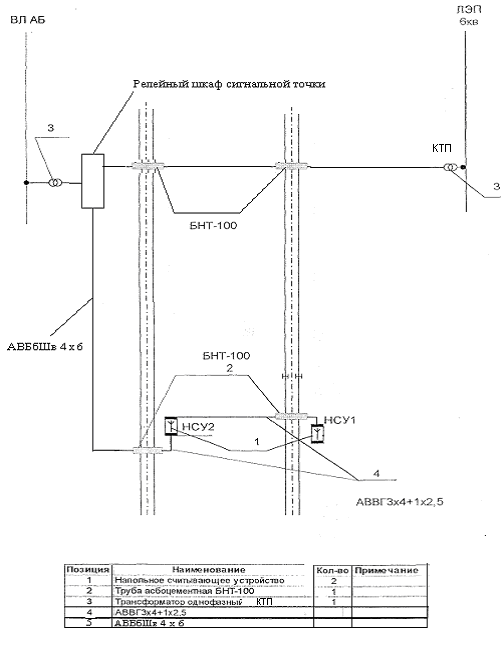
При электропитании от релейного шкафа сигнальной точки (входного сигнала) основное и резервное питание подводится к пунктам считывания по типовой схеме в соответствии с Рис. 5 .9 раздельными кабелями с использованием автомата включения резерва в блоке питания АВРЗИ, установленного в шкафах пунктов считывания.
Рис. 5.9 Вариант схемы электроснабжения от релейного шкафа сигнальной точки
5.1.2Требования к кабелям связи
При выборе марки кабелей и трасс их прокладки в пределах станционных путей от места установки ПСЧ до устройств электропитания и связи должны быть положены такие мероприятия, при которых снижение опасных и мешающих влияний до допустимых значений достигается с наименьшими затратами.
При этом как при электротяге переменного, так и постоянного тока должно рассматриваться магнитное, электрическое и гальваническое влияние.
Магнитное влияние обусловлено прохождением по тяговой сети переменного (пульсирующего) электрического тока. Магнитному влиянию подвержены все воздушные и кабельные линии передачи.
Электрическое влияние вызвано наличием в тяговой сети (в том числе и в рельсах) переменного электрического тока. Такому влиянию подвержены как воздушные линии передачи, так и кабельные, выполненные кабелем без металлической оболочки.
Гальваническое влияние возникает при протекании в земле тяговых токов. Такому виду влияний подвергаются все заземленные металлические оболочки кабелей и цепи, использующие в качестве обратного провода землю. Гальваническое влияние следует учитывать также при наличии лишь одного заземления в любой точке цепи.
При анализе каждого вида влияний должно учитываться все многообразие факторов, присущих реальным линиям передачи (марка кабеля, тип аппаратуры, длина линии, способ прокладки и т.п.), характер распределения тяговых токов в районе тяговых подстанций или вдали от них, уровни тяговых токов и параметры балласта и земли, а также реальные коэффициенты защитного действия (КЗД) оболочек кабелей, рельсов и защитных тросов.
Исходя их этих положений, в настоящее время как нормативными документами, так и в конкретных типовых проектах и справочной литературе решаются задачи по выбору типа и трассы прокладки для современных систем устройств СЦБ на станциях и перегонах (в том числе и в случае применения полупроводниковых и микропроцессорных систем), а также для напольных датчиков, применяемых, например, в системах АБТ и АБТЦ, ПОНАБ, ДИСК и др., используемых в системах, в которых требуется определять фиксацию вступления колеса подвижного состава на определенном участке пути. При анализе работы рассматриваемой системы САИ с датчиками типа ПЭ-1 можно говорить о том, что закономерности в части возможного влияния электрической тяги для него адекватны датчикам, названным выше, т.е. при решении задачи выбора марки кабеля, трассы и способа прокладки нужно пользоваться разработанными в проектном институте ГТСС правилами и положениями.
Выбор типа кабелей, условия их прокладки, определяемые требованиями к линии передач, должны быть технико-экономически обоснованы на стадии проектирования и согласованы с РЦС и нормативной документацией.
При прокладке кабелей связи необходимо проводить работы в соответствии с требованиями: «Правил производства строительных и монтажных работ при сооружении кабельных линий железнодорожной автоматики и связи», НТП ЦТКС-ФЖТ-2002 - Нормы технологического проектирования цифровых телекоммуникационных сетей на федеральном железнодорожном транспорте, ВСН-600.
Кабели от муфты УПМ-24 к ПЭ-1 должны прокладываться в резиновых шлангах в металлических или пластмассовых гофрированных трубах, прокладываемых по полушпале, уложенной между шпалой и муфтой с креплением скобами из металлической ленты. При железобетонных шпалах при прокладке кабеля к боковой поверхности шпалы хомутами должен крепиться деревянный брусок.
5.1.3Требования к заземлению Пункта считывания
Особые требования предъявляются к выполнению заземления напольного оборудования. Это обусловлено тем, что при решении вопросов заземления шкафов ПСЧ необходимо принимать во внимание:
-
защиту обслуживающего персонала и аппаратуры от поражения электрическим током при к.з. в системе тягового электроснабжения (на электрифицированных железных дорогах) и сети электроснабжения в шкафу 220 В (при любом виде тяги поездов);
-
защиту от поражения током при падении контактного провода или другого высоковольтного провода, подвешенного на опорах вдоль железной дороги, на шкаф;
-
защиту от грозовых и коммутационных перенапряжений, возникающих на рельсах.
Заземление оборудования ПСЧ с учетом электробезопасности следует осуществлять в соответствии с требованиями нормативных документов, действующих на сети дорог:
-
инструкции по заземлению устройств электроснабжения на электрифицированных железных дорогах (ЦЭ-191);
-
руководящих указаний по защите от перенапряжений устройств СЦБ (РУ-90, 1990 г.);
-
инструкции по защите железнодорожных подземных сооружений от коррозии блуждающими токами (ЦЭ-518) и др.
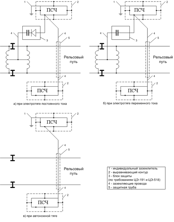
Поскольку шкаф ПСЧ расположен, как правило, на расстоянии 3,1 м от оси пути (Рис. 5 .4), то согласно Инструкции ЦЭ-191 на электрифицированных железных дорогах необходимо выполнить заземление на тяговые рельсы или среднюю точку дроссель-трансформатора. Принимая во внимание изложенные выше требования, на рис. 5.4 приведены схемы заземлений при электрической и автономной тяге. В общем виде комплект заземляющих устройств составляет:
-
индивидуальный заземлитель (ИЗ), обеспечивающий заземление экранов чувствительных элементов;
-
выравнивающий контур, обеспечивающий эквипотенциальность вокруг шкафа и, следовательно, безопасность персонала при попадании 220 В на корпус, а также при падении контактного провода на корпус шкафа;
-
блоки защиты, служащие для пропуска тока к.з. при попадании контактного провода на корпус шкафа, а также обеспечивающий защиту от электрокоррозии и потенциалов на рельсы при к.з. в тяговой сети и на подвижном составе, а также при грозовых разрядах и коммутационных перенапряжениях в режиме тяги;
-
заземляющие провода, соединяющие корпус с рельсами (дроссель-трансформаторами);
-
защитная труба, прокладываемая под путями для прокладки заземляющих проводов.
Выбор точки подключения заземляющих проводов от шкафа ПСЧ на рельсовую сеть должен осуществляться с соблюдением требований нормального функционирования рельсовых цепей СЦБ, электробезопасности обслуживающего персонала, пожаробезопасности и технико-экономической эффективности. Во всех случаях при подключении наглухо к рельсам заземляющих проводов сопротивление заземления не должно быть ниже значений, приведенных (Таблица 5 .3), независимо от типа рельсовой цепи и частоты сигнального тока. В остальных случаях подключение должно производиться через защитные элементы (искровые промежутки и т.п.) или должен изолироваться корпус шкафа от фундамента.
Таблица 5.3 Предельные значения сопротивления заземления
| Место подключения заземляющих устройств к рельсовой сети | Сопротивление заземления не ниже, Ом |
| к среднему выводу дроссель-трансформатора (дросселя) | 5 |
| к рельсу двухниточной рельсовой цепи | 100 |
| к тяговому рельсу однониточной рельсовой цепи, а также в местах установки междупутных перемычек и отсасывающих фидеров | Не нормируется |















