ПЗ Кирчун (1193225), страница 7
Текст из файла (страница 7)
Рисунок 3.4 – Расчетная схема сети в час минимального водопотребления.
4 Насосная станция второго подъема
Насосная станция может работать в обычном режиме, когда вода подается на хозяйственно-питьевые нужды – нормальном режиме. При работе насосной станции в режиме пожаротушения вода подается на хозяйственно-питьевые нужды и пожаротушение.
График подачи воды насосами был принят 2х ступенчатым. Подбор насосов на обе ступени с учётом пожаротушения и расчёт выполнялся при расчёте водопроводной сети.
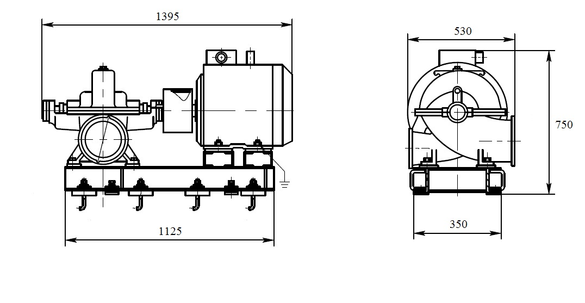
Первая ступень подачи осуществляет водоснабжение с помощью одного насоса марки 1Д 500 – 63, имеющего следующие характеристики:
Подача Q = 500 м3/ч;
Напор H = 63 м;
Максимальная потребляемая мощность: N= 142 кВт;
Диаметр рабочего колеса: Дк = 440 мм,
Частота вращения: n = 1450 об/мин.
Вторая ступень подаёт воду с помощью насоса марки 1Д200-90б, со следующими характеристиками:
Подача Q = 160 м3/ч;
Напор H = 62 м;
Максимальная потребляемая мощность: N= 42 кВт;
Диаметр рабочего колеса: Дк = 440 мм,
Частота вращения: n = 1450 об/мин.
4.1 Установка насосов и определение габаритов фундамента
Фундамент под насос - это единый узел, который обеспечивает поддержание всего насосного агрегата и состоит из основания, подушки и соединительной секции. Для обеспечения нормальной работы насосного агрегата его устанавливают и закрепляют на прочном фундаменте, фундаментной плите.
Расстояние от края фундаментной рамы до крепежных болтов 50мм.
Высота фундамента над полом 100мм, (с учётом, что возвышение трубопровода над полом составляет не менее 250мм).
Глубина заложения фундамента принимается 0.5 и не менее глубины соседних агрегатов.
Насосы устанавливаются «под залив».
Отметка оси насоса, м, определяется по формуле:
(3)
где
– рабочий расчетный низший уровень воды в РЧВ, м:
(4)
где
– отметка поверхности земли у РЧВ, м:
м
Отметка оси насоса:
м
Отметка пола насосной станции:
(5)
где
– высота насоса 1Д500-63вместе с его фундаментной плитой, м:
м
Высота заглубления насосной станции, м, рассчитывается по формуле:
(6)
где
- отметка земли у насосной станции.
м
Рисунок 4.1 – Монтажная схема насосного агрегата 1Д 500 – 63.
Рисунок 4.2 – Монтажная схема насосного агрегата 1Д200-90б.
4.2 Размещение оборудования в насосной станции второго подъема
В зависимости от назначения насосной станции, подбор и размещение оборудования (основного и резервного) имеет специфические особенности. При этом меняются строительные конструкции зданий, а также компоновка оборудования.
Так как насосная станция первой категории надёжности, количество резервных насосов принимается два. Следовательно, в насосной станции будет два насоса 1Д500 – 63 и два насоса 1Д200-90б. Определяется максимальный расход на всех участках.
Подача для ступени с большей производительностью: Q1=584,64 м3/ч
Подача для ступени с меньшей производительностью:Q2=125 м3/ч
Вычисляются диаметры трубопроводов, мм, по следующей формуле:
(7)
где
- рекомендуемая скорость движения воды в трубопроводах, м/с (для всасывающего трубопровода равна 1м/с, для напорного – 1,5м/с).
500 мм
300 мм
400 мм
400 мм
200 мм
300 мм
Принята линейная схема размещения насосов в машинном зале, которая показана на рисунке 4.3.
Рисунок 4.3 – Схема размещения насосов в машинном зале.
4.3 Подбор грузоподъёмного оборудования
Для монтажа и демонтажа технологического оборудования, арматуры и трубопроводов в помещении насосной станции предусматривается подъемно-транспортное оборудование, которое подбирается по следующим параметрам:
-
Требуемая грузоподъемность;
-
Возможность доставки оборудования в любую точку машинного зала;
-
Высота подъема и дальность перемещения груза;
Выбран подвесной кран-балка, конструкция которого показана на рисунке 4.4.
Рисунок 4.4 – Подвесной кран-балка
Пролёт крана, его грузоподъёмность и размеры конструктивных элементов крана представлены в таблице 4.1.
Таблица 4.1- Размеры крана
| Пролет крана, L, м | Грузоподъемность, т | Размеры элементов крана, мм | |||
| H, мм | h, мм | B, мм | C, мм | ||
| 10,8 | 3,2 | 1795 | 485 | 2165 | 1800 |
Определяется высота верхнего строения
над машинным залом. Она определяется с учетом размещения грузоподъемного оборудования по формуле:
(8)
где
– погрузочная высота платформы автомобиля или инвентарной тележки, принимаем равной 1,5м;
– высота переносимого груза, принимаем равной 2,2 м;
– высота строповки, принимаем равной 0,5 м;
Н – высота подъемно-транспортного оборудования при максимальном поднятии крюка, принимаем равной 1,795 м.
м
Высоту верхнего строения округляем до ближайшей стандартной. Принимается
7,2 м.
5 Проектирование и расчет станции обезжелезивания
Подземные воды, практически повсеместно имеют повышенное содержание железа, что не позволяет использовать их без очистки, для целей водоснабжения. При повышенном содержании железа природная вода проходит процедуру обезжелезивания.
5.1 Выбор метода очистки
Выбор метода обезжелезивания и его технологических параметров – одна из основополагающих технико-экономических задач и зависит от химических свойств и обрабатываемых объемов воды. В данном проекте выбран метод упрощённой аэрации.
Концентрация железа в исходной воде, равная 7 мг/л, значительно превышает допустимую норму CaнПиH 2.1.4.1074-01 - 0,3 мг/л, что недопустимо. Следовательно, требуется удаление соединений железа из природной воды, для пригодности её использования в хозяйственно-питьевых целях.
5.2 Расчёт фильтровальных сооружений
Цель расчёта – определение общих габаритов фильтров и размеров всех конструктивных элементов.
При содержании железа 7 мг/л в исходной воде, применяют одну ступень фильтрования.
-
Для расчёта выбраны скорые безнапорные фильтры (т.к. они обеспечивают высокую степень очистки воды от соединений железа);
-
В качестве фильтрующего материала выбран дроблённый гранодиорит с эквивалентным диаметром зёрен 1,0 – 2,0 мм;
-
Скорость фильтрования при нормальном режиме равна 8 м/ч;
-
Промывка фильтров производится 2 раза в сутки, продолжительностью 7 минут, с интенсивностью промывки 18 л/с·м2, а подачей воздуха 15 л/с·м2.
Общая площадь всех фильтров станции рассчитывается:
(9)
где
– полезная производительность станции водоочистки с учётом расхода воды на собственные нужды, м3/сут;
- продолжительность работы станции в течение суток;
- скорость фильтрования при нормальном режиме, м/ч;
- число промывок одного фильтра за сутки при нормальной эксплуатации;
- удельный расход воды на одну промывку одного фильтра в расчете на 1 м2 площади, м3/м2;
– время простоя фильтра в связи с промывкой, принимается 0,33 ч при водяной промывке и 0,5 ч – при водовоздушной.
При водяной промывке величина удельного расхода вычисляется по формуле:
(10)
где W - интенсивность промывки загрузки, л/с∙м2;
– продолжительность промывки фильтра, ч.
м3/м2
При водовоздушной промывке удельный расход воды определяется по формуле:
(11)
где
- удельный расход воды на каждом этапе промывки.
Итого общая площадь всех фильтров станции:
Количество фильтров приминается N = 4 шт.
Скорость форсирования при форсированном режиме составляет 10,67 м/ч, и согласно СП 31.13330.2012, попадает в диапазон от :8,5 до 11,5 м/ч.
Площадь одного фильтра рассчитывается:
(12)
м2
Назначены размеры каждого фильтра в плане 3,5х3,5 м
Водораспределительной (дренажной) системы фильтра служит для равномерного распределения промывной воды и сбора очищенной. Поскольку самым гидравлически напряженным является режим промывки, расчет ведется на пропуск промывного расхода.
Расход воды для промывки фильтра, л/с:
(13)
Основной принцип расчета водораспределительной системы большого сопротивления – возрастание скорости по ходу движения воды.
Для трубчатой дырчатой распределительной системы большого сопротивления, состоящей из коллектора и ответвлений, назначается диаметр центрального коллектора Dk равным 500мм.
Длина труб ответвлений рассчитывается, м:
0,1 (14)
0,1=1,37 м
Диаметр труб ответвлений dотв назначается по величине промывного канала:
(15)
где
- число ответвлений дренажа с обеих сторон от коллектора.














