ПЗ Кирчун (1193225), страница 8
Текст из файла (страница 8)
0,54 м, принимается 0,6 м
Скорость движения воды в начале труб ответвлений
принимается в пределах 1,6–2 м/с. Принимается равной 1,99 м/с.
На ответвлениях трубчатого дренажа при наличии поддерживающих слоев предусматриваются отверстия диаметром 12 мм. Отверстия располагают в два ряда в шахматном порядке вниз под углом 450 от вертикали.
Суммарная площадь отверстий, м2, находится по формуле:
(16)
где P – отношение суммарной площади отверстий к площади фильтра, принимается равным 0,25 %.
3 м2
Вычисляется общее число отверстий, шт, площадью
каждое, в трубах ответвлений:
(17)
264 шт
Расстояние между осями отверстий, м, определяется по формуле:
(18)
0,145 м
Дренажная система изображена на рисунке 5.1
Рисунок 5.1 – Дренажная система фильтра
Для водовоздушной промывки фильтров проектируются две самостоятельные распределительные системы – для воды и воздуха.
Режим водовоздушной промывки зависит от принятой системы отвода промывных вод. При оборудовании системы водовоздушной промывки в фильтрах с желобами, регламент промывки следующий:
-
Продувка фильтра воздухом с интенсивностью 15 л/с∙м2 в течение 2–3 минут;
-
Промывка фильтра водой в течение 7 минут и с интенсивностью 18 л/с∙м2
Воздушная распределительная система состоит из коллектора, расположенного над коллектором водяной системы, и распределительных труб (ответвлений), размещаемых посередине между ответвлениями для воды.
Воздушные коллекторы должны быть выше труб воздушных ответвлений, что обеспечивает свободный выход воздуха из труб. Количество и длина распределительных труб для воздуха принимаются равными количеству и длине труб для подачи воды.
Расчет трубчатой системы для подачи воздуха производится в следующей последовательности:
Определяется количество воздуха, м3/с, подаваемого на продувку фильтра по формуле:
(19)
где
– интенсивность подачи воздуха, принимается 15 л/с∙м2.
0,178 м3/с
Диаметр коллектора, м, определяется по формуле:
(20)
где
– скорость движения воздуха в коллекторе, м/с
0,11 м
Диаметры обоих коллекторов принимается равным 100мм.
Диаметр распределительных труб, м, определяется по формуле:
(21)
где
– скорость движения воздуха в распределительных трубах;
– количество распределительных труб.
0,025 м
Перфорация в распределительных трубах выполняется в виде круглых отверстий диаметром 4 мм.
Общая площадь отверстий в распределительных трубах, м2, определяется по формуле:
(22)
где
– скорость выхода воздуха из отверстий.
0,4 м2
Общее количество, шт, находится по формуле:
(23)
316 шт
Расстояние между осями отверстий определяется по формуле:
(24)
0,12 м
Отверстия размещают вниз под углом 450 к вертикали в шахматном порядке.
Определяется высота, м, фильтра по формуле:
(25)
где
– высота поддерживающих слоев, м;
– высота слоя фильтрующей загрузки, м;
– высота слоя воды, м;
– дополнительная высота фильтров, предназначенная для накопления воды при отключении 1-го или 2 фильтров на промывку при постоянной скорости фильтрования;
- строительный запас высоты.
Дополнительная высота, м, находится по формуле:
(26)
где
– объем воды, м3, накапливающийся за время простоя промываемых фильтров;
– суммарная площадь фильтров, м2, в которых происходит накопление воды.
0,028 м
Высота фильтра:
м
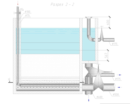
Высота фильтра, с учётом строительного модуля, принимается равным 4,8м. Разрез фильтра представлен на рисунке 5.2.
Рисунок 5.2 – Разрез скорого безнапорного фильтра
Сбор загрязненной воды после промывки осуществляется устройствами, конструкция которых зависит от способа промывки. В проекте принята водовоздушный способ промывки фильтров.
Количество желобов в фильтре назначается из условия, что расстояние между осями желобов не должно превышать 2,2 м.
Исходя из такого требования, при размерах фильтра 3,5 х 3,5 м принимается два желоба. Каждый желоб располагается в центре обслуживаемой им площади.
Расход промывной воды по каждому желобу, м3/с, определяется по формуле:
(27)
где
- количество желобов, шт.
0,107 м3/с
Ширина желоба, м, находится из выражения:
(28)
где
– отношение высоты прямоугольной части желоба к половине его ширины;
– коэффициент, принимаемый равным 2 (для полукруглых желобов).
0,417 м
Высота желоба в месте примыкания к каналу, принимается исходя из выражения Вж ·1,25=0,522 м.
Расстояние от верха фильтрующей загрузки до верхних кромок желобов рассчитывается из условия обеспечения расширения загрузки при промывке:
+0,3 (29)
где е – относительное расширение фильтрующей загрузки, зависящее от вида загрузки, %.
+0,3
0,57 м
Расчет потерь напора в фильтрах при промывке. При промывке фильтров напор теряется на преодоление сопротивления движению воды в распределительной системе, гравийных слоях и в фильтрующей загрузке.
Потери напора в дренажной системе, м, определяются по формуле:
(30)
где
– коэффициент сопротивления, зависящий от вида выходных отверстий распределительной системы;
и
скорости движения воды соответственно в коллекторе и распределительных трубах, м/с.
109,74
6,07 м
Потери напора в поддерживающих щебёночных слоях, м, определяется по формуле:
(31)
м
Потери напора в фильтрующей загрузке при промывке, м, определяется по формуле:
(32)
где
– коэффициент пористости загрузки до расширения;
– плотность фильтрующей загрузки, т/м3;
- плотность воды.
м
Общие потери напора в фильтровальном сооружении при промывке:
(33)
м
Рассчитанные потери напора учитываются при расчете и выборе промывных устройств.
Вода на промывку фильтровальных сооружений подается от специальных промывных насосов.
Промывные насосы размещаются в зале фильтров. Вода на промывку забирается из РЧВ. Промывные насосы рассчитываются на подачу воды в одно фильтровальное сооружение.
Часовая подача промывного насоса, м3/ч, определяется:
(34)
Напор насосов, м, рассчитывается по формуле:
(35)
где
– геометрическая высота подъема воды от минимального уровня в РЧВ до верхней кромки желобов;
– потери напора в фильтровальном сооружении при промывке, м;
– общие потери напора в трубопроводах от РЧВ до удаленного фильтра, м;
– запас напора на излив.
м
По рассчитанным значениям подачи и напора выбран промывной насос 1Д.1250-63б со следующими характеристиками: Подача 770 м3/час; Напор 20 м; Частота вращения 980 об/мин. Диаметр рабочего колеса 390 мм. Предусматривается резервный агрегат. Насосы следует устанавливать под «залив».
Для подачи воздуха используются воздуходувки.
Производительность рассчитывается на подачу наибольшего взрыхляющего расхода воздуха при промывке одного фильтра, м3/мин:
(36)
м3/мин
Напор определяется по формуле:
(37)
где
– отметка воздухозаборника;
– потери напора в воздуховоде от воздуходувки до фильтра.
м
По расчетным параметрам подачи и напора выбрана воздуходувка ВК-12М 1 со следующими параметрами: давление нагнетания 150 кПа; производительность 12 м3/мин; Частота вращения 1000 об/мин. Воздуходувки (рабочая и резервная) размещаются в фильтровальном зале.
6 Проектирование и расчет водозабора
Конструкция водозаборных скважин выбрана исходя из общих геологических и гидрогеологических условий участка размещения водозабора:
-
Глубина залегания водоносных горизонтов, подлежащих вскрытию и эксплуатации;
-
Характер проходимых горных пород, слагающих водоносный горизонт;
-
Необходимый диаметр скважины;
-
Наибольшая технико-экономической целесообразность способа бурения в конкретных условиях.
Бурение скважин в зависимости от глубины и характера грунтов может осуществляться ударно-канатным или роторным (с прямой или обратной промывкой) способами. Водозаборная скважина должна отвечать двум основным требованиям:
-
Обеспечивать заданное количество воды с качеством, соответствующим составу воды выбранного водоносного горизонта;
-
Быть надежной в эксплуатации.
6.1 Гидрогеологический расчет скважины
С целью обеспечения надежной работы скважины, расчетное понижение уровня подземных вод должно быть не более допустимого, т.е.
Sрас ≤ Sдоп (38)
где Sрас - наибольшее понижение, которое обычно имеет место в центральной скважине.
Наибольшее понижение уровня подземных вод для напорных пластов рассчитывается:
(39)
где: Q – суммарный дебит водозабора, м3/сут;
k·m– величина водопроводимости эксплуатируемого пласта (k – коэффициент фильтрации, м/сут; m – мощность, м);















