ДИПЛОМ (1192859), страница 8
Текст из файла (страница 8)
Проведен расчет расстояния, которое проходит слесарь при ремонте авторежимов либо воздухораспределителей, по формуле (3.2). Значения расстояний равны(метров):
м,
м,
м,
м,
м,
м,
м,
м,
м,
м,
м,
м. Цикличность операций равна N1=5, N2=4.
Таким образом, в процессе ремонта воздухораспределителей и авторежимов одной партии из десяти головных приборов, перемещение рабочего составляет 209,6 метров это на 300,4 метров меньше, чем при прежней расстановке оборудования.
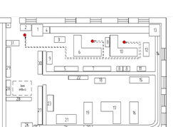
Следующий процесс ремонта является ремонт авторегуляторов, диаграмма указана на рисунке 3.15 и на плакате ДП 23.05.03.В.156.08. Наименование позиций указаны в таблице 3.5.
Рисунок 3.15 - Диаграмма «спагетти» перемещения рабочего при ремонте авторегуляторов.
Таблице 3.5 - Рабочие позиции при ремонте авторегуляторов.
| Позиции | Наименование |
| 31-7 | Транспортировка авторегулятор с стеллажа на позицию обмывки |
| 7-3 | Транспортировка авторегулятор с позиции обмывки на позицию разборки |
| 3-5 | Транспортировка авторегулятор с позиции разборки на позицию испытания |
| 5-9 | Транспортировка авторегулятор с позиции испытания на стеллаж |
| 9-31 | Перемежение рабочего от стеллажей с исправными авторегуляторами к стеллажу неисправных авторегуляторов |
На диаграмме рисунок 3.15 видно как перемещается слесарь по рабочим позициям с новой расстановкой оборудования. Рабочий берет со стеллажа (31) неисправный авторегулятор и переносит его в емкость с керосином (7), где регулятор проходит обмывку и очистку. После обмывки, авторегулятор отправляет
на разборку (3), там же проходит ремонта и сборка авторегуляторов. Затем авторегулятор проходит испытание на стенде (7). Завершив испытания, рабочий складывает исправные авторегуляторы на стеллаже (9). Рабочий не делает лишних перемещений, в следствие удобного расположения стенда для испытания авторегуляторов. Если раньше слесарю приходило переходить в другое отделение, то теперь все оборудование расположено в одном отделении.
Так же проведен расчет расстояния при ремонте одного автореглятора по формуле (3.2).Значения расстояний равны:
м,
м,
м,
м.
метров
При ремонте одного авторегулятора слесарь проходит расстояние равное 14,6 метрам, что на 5,4 метра меньше, чем с предыдущей расстановкой.
В таблице 3.6 представлены итоги расчета перемещения рабочих за смену после преобразований и до них.
Таблица 3.6 – Сравнительный анализ перемещения рабочих
| Тормозное оборудование | Расстояние передвижения рабочего при ремонте (метр) «ПОСЛЕ» | Расстояние передвижения рабочего при ремонте (метр) «ДО» | Разница перемещений (метр) |
| Концевые краны | 1518 | 2442 | 924 |
Окончание таблицы 3.6
| Тормозное оборудование | Расстояние пере-движения рабоче-го при ремонте (метр) «ПОСЛЕ» | Расстояние пере-движения рабочего при ремонте (метр) «ДО» | Разница пере-мещений (метр) |
| Соединительные рукава | 226,8 | 383,4 | 156,6 |
| Авторегулятор | 116,8 | 160 | 43,2 |
| Воздухораспределитель магистральной части | 356,3 | 867 | 510,7 |
| Воздухораспределитель головной части | 293,4 | 714 | 504,4 |
| Авторежимов | 314,4 | 765 | 450,6 |
По данным таблицы 3.6 можно судить на сколько метров расстояние, которое проходит слесарь при ремонте тормозного оборудования меньше, после изменений в автоконтрольном пункте тормозов.
Для более удобного сравнения диаграмм «спагетти» все изображения сведены в таблицу 3.7.
Таблица 3.7 – Анализ сравнения диаграмм «спагетти»
Окончание таблицы 3.7
| До перепланировки | Разность пере-мещений | После перепланировки |
| 13,6 метра при ремонте соеденитель-ных рукавов и концевых кранов | ||
| 300,4 метра при ремонте авторежимов и воздухораспре-делителей |
3.5 Предложение по внедрение системы 5С
Система 5С представляет собой систему наведения порядка, чистоты, укрепления дисциплины и создания безопасных условий труда с участием всего персонала.
Главная цель 5С - создание ясной, понятно организованной окружающей среды - среды, где определено место для каждой вещи и все они находятся на своем месте. Кроме того, многие компании начинают свою программу преобразования с 5С, потому что она помогает устранить некоторые из видимых затрат, а также структурировать и упорядочить успешное следование другим инициативам непрерывного усовершенствования[5].
Система 5С является пошаговой системой. Факты свидетельствуют, что в производственных помещениях, где чисто и аккуратно:
- выше производительность труда;
- меньше бракованной продукции;
- точнее выдерживаются сроки;
- лучше соблюдается техника безопасности.
Система 5С задает нужное направление для дальнейших улучшений. Это инструмент, позволяющий рабочим объединить усилия и оптимизировать свое рабочее место[5].
Система 5С включает в себя 5 принципов представленные в таблице 3.5.
Таблица 3.8 - Принципы организации внедрения системы 5С
| № п.п. | Принцип | Описание |
| 1С | Сортировка (т.е. удаление ненужного) | Удаление из рабочей зоны всех лишних предметов. |
| 2С | Создание порядка (т.е. рациональное размещение предметов) | Размещение предметов, при котором ими можно легко воспользоваться, а также маркировка предметов таким образом, чтобы любой из них можно было легко найти или вернуть на место любому исполнителю работ. |
| 3С | Содержание в чистоте (т.е. уборка, проверка, устранение неисправностей) | Наведение и поддержание чистоты повсюду на производстве. Уборка совмещается с проверкой, выявлением источников загрязнений и любых других несоответствий рабочей среды. |
Окончание таблицы 3.
8
| 4С | Стандартизация | Метод закрепления полученных результатов. Правила сортировки, создания порядка и содержания в чистоте, как и достигнутое состояние рабочей среды, должны быть зафиксированы документально. |
| 5С | Совершенствование | Постоянная проверка состояния новой рабочей среды, ее соответствия стандартам и постоянные улучшения. С каждым освоенным этапом рабочая среда должна становиться все более эффективной и безопасной, а описывающие ее стандарты – должны изменяться. |
Организацией данного метода занимается мастер участка АКП. На планерке 8:00 до 8:30 он рассказывает суть данного метода, согласно стандартам и методикам ОАО «РЖД», потом назначает ответственных по отделениям. Каждый ответственный в своем отделение реализует данное мероприятие. На рисунке 3.5.1 и на плакате ДП 23.05.03.В.156.11 изображены зоны отделений участка АКП по 5С на которых назначается ответственный.
Рисунок 3.16 - Зоны автоконтрольного пункта тормозов.
Каждый работник на своей зоне реализует первый этап – используются шаги 1 «Сортировка», 2 шаг «Соблюдение порядка», 3 шаг «Содержание в чистоте» системы 5С. На втором этапе описываются требования к рабочему месту (его характеристикам, инструментальному, информационному и другим видам оснащения , а так же разработанным на этапе 1 правила размещения предметов, уборки и т.п.) – используется шаг 4 «Стандартизация». На рисунке 3.17и на плакате ДП 23.05.03.В.156.11 изображена стандартизированная карта технического обслуживания и проверки технического состояния оборудования. Данная карта располагается на рабочем месте.















