ДИПЛОМ (1192859), страница 7
Текст из файла (страница 7)
Рисунок 3.8 – Стеллаж для хранения авторежимов и воздухораспределителей.
3.3 Предложения по внедрению средств малой механизации
При анализе автоконтрольного пункта тормозов было выявлено что при ремонте тормозного оборудования слесарю приходится носить вручную тормозные приборы с одной позиции на другую. Для уменьшения затрат мускульной силы рабочего предлагается внедрить тележку, изображенную на рисунке 3.9. С помощью этой тележки слесарю не придется переносить вручную по одному авторежиму или воздухораспределителю со стеллажа неисправных поборов на позицию обмывки. Рабочий сможет загрузить все десять авторежимов или воздухораспределителей на данную тележку и перекатить их на позицию обмывки.
Рисунок 3.9 - Тележка для транспортировки тормозного оборудования.
Для размещения и транспортировки соединительных рукавов, предлагается внедрить стойку, изображенной на рисунке 3.10 и в графической части ДП 23.05.03.В.156.09. С помощью данной стойки можно увеличить количество соединительных рукавов в партии, облегчить труд рабочего и повысить культуру производства.
Рисунок 3.10 - Стойка для перемещения соединительных рукавов.
3.4 Предложения по внедрению новой организации работ в АКП
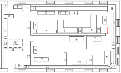
Для более рациональной работы контрольного пункта автотормозов необходимо провести перепланировку, а так же перестановку оборудования. В ходе работы была выявлена необходимость сделать дверной проем между арматурным отделением и отделение ремонта и сборки тормозного оборудования. На рисунке 3.11и в графической части ДП 23.05.03.В.156.10 видна новая планировка с перестановкой оборудования.
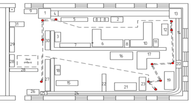
Рисунок 3.11 - Новый план автоконтрольного пункта тормозов.
За счет перестановки оборудования более рационально проходят процессы ремонта авторегуляторов, соединительных рукавов и концевых кранов. Дверной проем между арматурным отделением и отделением ремонта и сборки тормозной арматуры позволит организовать процесс ремонта авторежимов и воздухораспределителей без лишних потерь времени на проходы слесаря в ходе ремонта.
Используя предложенные изменения, была составлена новая диаграмма «спагетти» рисунок 3.12, на которой показаны все перемещения рабочих по позициям.
Рисунок 3.12 - Диаграмма «спагетти» перемещений рабочих при ремонте автотормозов: 1-моечная машина; 2-верстак слесарный; 3- стенд для разборки и ремонта авторегуляторов; 4- накопитель; 5- емкость для очистки авторегуляторов; 6- стенд для испытания и ремонта рукавов; 7- стенд для испытания авторегуляторов; 8- корзина для хранения соединительных рукавов; 9- стеллаж для отремонтированных авторегуляторов; 10- стенд для испытания и ремонта кранов; 11- распределительный щит; 12- стенд для разборки авторежимов; 13- моечная машина вторичной обмывки; 14- транспортировочная электродорожка; 15- обеденный стол; 16- слесарный верстак; 17- стенд для ремонта авторежимов; 18- стол мастера; 19- стенд для сборки авторежимов; 20- накопительная площадка; 21- пневмотический стенд; 22- шкаф для документов транспортер;23- УКВР-2; 24- транспортер; 25- транспортер с накопителем; 26- стеллаж для приборов и щитков; 27- стеллаж для ремонтируемого; 28- металлический шкаф; 29- стеллаж для отремонтированных оборудования; 30-. стеллаж для ремонтируемого оборудования; 31- стеллаж для ремонтируемых авторегуляторов.
По диаграмме «спагетти», изображенной на рисунке 3.13, видно как изменился переход слесарей по рабочим позициям при ремонте тормозного оборудования. Далее представлены диаграммы «спагетти» ремонта других тормозных приборов.
На рисунке 3.13, а так же на плакатах ДП 23.05.03.В.156.03, ДП 23.05.03.В.156.04 показаны перемещения рабочего при ремонте концевых кранов, соединительных рукавов. Наименование позиций указаны в таблице 3.1.
Рисунок 3.13 - Диаграмма «спагетти» перемещения рабочего при ремонте разобщительных и концевых кранов, рукавов.
Таблица 3.1 - Рабочие позиции при ремонте соединительных рукавов и кранов
| Позиции | Наименование |
| 2 | Разделение соединительных рукавов и кран |
| 2-6 | Переход с позиции разборки на позицию ремонта соединительных рукавов |
| 2-10 | Переход с позиции разборки на позицию ремонта концевых кранов |
| 6 | Ремонт соединительных рукавов |
| 10 | Ремонт концевых кранов |
Окончание таблицы 3.1
| Позиции | Наименование |
| 6-2 | Переход с позиции ремонта на позицию разборки соединительных рукавов |
| 10-2 | Переход с позиции ремонта на позицию разборки концевых кранов |
При ремонте разобщительных и концевых кранов, соединительных рукавов слесарю не приходится перемещаться «туда-сюда» из отделения очистки в арматурное отделение, так как партия деталей находятся параллельно рабочей позиции, что гораздо удобнее и проще в работе. На диаграмме (рисунок 3.13) видно как слесарь на слесарном верстаке(2) разделяет соединительные рукава и кран, после чего переходит на позицию ремонта (6 или 10) концевого крана, либо соединительных рукавов. После завершения ремонта концевые и разобщительные краны складируются возле ремонтной позиции, а испытанные соединительные рукава так же складируются возле рабочей места в металлическую корзину.
Выполнив все необходимы замеры во время прохождения преддипломной практики, можно определить искомое расстояние по формуле (3.2). Данная формула описывает путь, который проходит рабочий при ремонте партии соединительных рукавов.
(3.2)
где
- это расстояние, передвижения слесаря с одной позиции на другую;
N – количество циклов.
При ремонте партии соединительных рукавов
метров и столько же обратно
метров N= 8 раз.
метров
При ремонте партии концевых кранов
метров и столько же обратно
метров N= 8 раз.
метров
Расстояние при ремонте соединительных рукавов составило 13,6 метров это на 7,77 метра меньше, чем с предыдущей обстановкой оборудования. Тридцать шесть метров – расстояние, которое проходит слесарь при ремонте четырех концевых кранов, оно уменьшилось на 28 метров. Из этого можно сделать вывод: за счет перестановки оборудования рабочий меньше тратит физических сил и уменьшаются потери времени в процессе проведения ремонта.
Далее рассмотрим передвижение слесаря при ремонте главной и магистральной частей воздухораспределителя, которые схожи с перемещениями при ремонте авторежима, они изображены на рисунке 3.14 и на плакатах ДП 23.05.03.В.156.05, ДП 23.05.03.В.156.06, ДП 23.05.03.В.156.07. Наименование позиций указаны в таблице 3.2.
Рисунок 3.14 - Диаграмма «спагетти» перемещения рабочего при ремонте воздухораспределителей и авторежимов.
Таблица 3.4 – Рабочие позиции при ремонте авторежимом, воздухораспределителей
| Позиции | Наименование |
| 30-1 | Транспортировка авторежимов и воздухораспределителей с стеллажа в моечную машину |
| 1-4 | Транспортировка деталей с позиции обмывки в накопитель |
| 4-12 | Транспортировка авторежимов и воздухораспределителей с накопителя на позицию разборки |
| 12-13 | Транспортировка деталей с позиции разборки на позицию повторной обмывки |
| 13-14 | Транспортировка авторежимов и воздухораспределителей с позиции повторной обмывки на транспортировочную тележку |
| 14- 20 | Транспортировка деталей в накопительную площадку |
| 20-17 | Транспортировка авторежимов и воздухораспределителей с накопительной площадки на позицию ремонта |
| 17-19 | Транспортировка деталей с позиции ремонта на позицию сборки |
| 19-23 | Транспортировка авторежимов и воздухораспределителей с позиции сборки на позицию испытания |
| 23-24 | Транспортировка деталей с позиции испытания на транспортер |
| 24-25 | Транспортировка деталей по транспортёру в накопитель |
| 25-27 | Перекладка деталей с накопителя на стеллаж |
| 27-30 | Перемещение рабочего от стеллажа отремонтированный деталей к неисправным |
Работа слесаря начинается с того, что он осматривает тормозные приборы, после чего кладет их в моечную машину (1). С помощью тележки приборы переносятся партией по 10 шт, и работнику не приходится возвращаться за каждым прибором, как это происходило раньше без тележки. В ходе этого процесса уменьшились не нужные перемещения и затраты физической энергии слесаря. После обмывки воздухораспределители и авторежимы перемещаются в накопитель, и далее отправляются на позицию разборки.
Разобрав авторежимы или воздухораспределители слесарь раскладывает детали по лоткам. Получается пять лотков. Рабочий перекладывает один лоток на транспортную тележку и переходит на ремонтную позицию (14) в другое отделение через дверной проем между двумя отделениями, ему не приходиться делать «крюк» как раньше. На ремонтной позиции рабочий запускает конвейер, и ждет прибытия транспортной тележки. Завершив транспортировку, он приступает к ремонту двух приборов на стенде(17) для ремонта главной и магистральной частей воздухораспределителя и авторежимов.
После окончания ремонта, все детали транспортируются на позицию сборки (19). Раньше слесарю приходилось обходить стенд для сборки авторежимов, то теперь о
н проходит к нему напрямую без лишних затрат. Собранный воздухораспределитель или авторежим отправляется на испытательный стенд УКВР-2. После чего пара приборов складируется в накопителе (24), затем отправляется в другое отделение, готовая продукция раскладывается на стеллажи (27).
После окончания приема готовой «пары» рабочий передвигается в отделение разборки, где запускает конвейер для возвращения транспортной тележки. Затем транспортируется тележка со следующей «парой» тормозных приборов, тем самым организована цикличность процесса при ремонте десяти приборов.















