Приложение Д Тех. характеристики (1004276)
Текст из файла
ПРИЛОЖЕНИЕ Д
Технические характеристики техники используемой при строительстве моста
1.Буровая машина Bauer BG 22
Рисунок Д.1 – Буровая машина Bauer BG 22
Таблица Д.1 - характеристики Bauer BG 22
| Глубина бурения | 57600 мм | |
| Диаметр бурения | 1700-2000 мм | |
| Тяговое усилие лебёдки | 200 кН | |
| Тяговое усилии лебёдки, дополнительно | 80 кН | |
| Тяговое усилие | 330 кН | |
| Крутящий момент | 228000Н*м | |
| Гидравлическая мощность | 112 кВт | |
| Базовая машина | UW70 | |
| Длина | 13867 мм | |
| Ширина | 3000 мм | |
| Высота | 3400 мм | |
| Эксплуатационная масса | 76500 кг | |
| Скорость движения | 1,8 км/ч | |
2.Стреловой самоходный гусеничный дизель-электрический кран ДЭК 631
Рисунок Д.2 – Кран ДЭК 631
Таблица Д.3 - Технические характеристики крана ДЭК 631
| Грузоподъемность максимальная | 63 т |
| Длина стрелы основная | 18 м |
| Длина стрелы максимальная | 32,75 м |
| Грузоподъемность на гуське | 5 т |
| Длина гуська | 5 м |
| Высота подъема максимальная | 36 м |
| Скорость подъема-опускания | 5 м/мин |
| Скорость передвижения | 1 км/ч |
| Частота вращения поворотной части | 0,3 – 1 об/мин |
| Радиус поворота хвостовой части | 5,93 м |
| Емкость грейфера | 2,5 м3 |
Рисунок Д.3 – Грузовые характеристики крана ДЭК 631
3.Автосамосвал “МАЗ 651705”
Рисунок Д.4 – габаритная схема а/м “МАЗ 651705”
Таблица Д.4 – Характеристики а/м “МАЗ 651705”
| Наименование характеристики | |
| Колесная формула | 6х6 |
| Допустимая полная масса а/м, кг | 33000 |
| Масса снаряженного а/м, кг | 13850 |
| Допустимая грузоподъемность а/м, кг | 19000 |
| Объем платформы | 10,5 |
| Двигатель | ЯМЗ-238ДЕ2 (ЕВРО-2) |
| Мощность двигателя кВт (л.с.) | 243 (330) |
| Максимальная скорость, км/ч | 74 |
4.Автобетоносмеситель 69363В на шасси КамАЗ 55111 4х4
Рисунок Д.5 – Габаритная схема автобетоносмесителя 69363В
Таблица Д.5 – характеристики автобетоносмесителя 69363В
| Наименование характеристики | |
| Полезный объем смесительного барабана, м3 | 5,0 |
| Геометрический объем смесительного барабана, м3 | 9,0 |
| Частота вращения смесительного барабана, об/мин | 0-14 |
| Высота загрузки, мм | 3530 |
| Высота выгрузки бетонной смеси, м | 0-2 |
| Вместимость бака для воды, л | 600 |
| Темп выгрузки бетонной смеси, м3/мин | 1 |
| Полная масса, кг | 22400 |
| Габаритные размеры, мм (длина х ширина х высота) | 7500х2500х3500 |
| Максимальная скорость, км/ч при полной загрузки (незагруженный) | 50 (75) |
| Базовое шасси | КамАЗ-55111 |
| Максимальная мощность двигателя, кВт (л.с) | При 2200 об/мин 176 (240) |
5.Бульдозер Liebherr 752
Рисунок Д.6 – Габаритная схема бульдозера Liebherr 752
Таблица Д.6 – Характеристики бульдозера Liebherr 752
| Эксплуатационная масса | 42000 кг |
| Модель двигателя | Liebherr |
| Мощность двигателя | 243 кВт |
| Габаритная длина | 6140 мм |
| Габаритная высота | 3640 мм |
| Максимальная ширина отвала | 4,2 м |
| Максимальная высота отвала | 1,65 м |
| Ёмкость отвала | 9,54-11,7 м3 |
6.Компрессор НВ-10
Таблица Д.7 – Характеристики компрессора НВ-10
| Наименование характеристики | |
| Тип | Винтовой |
| Производительность, м3/мин | 11,2 |
| Избыточное давление, кгс/см2 | 7 |
| Потребляемая мощность, кВт | 73,92 |
| Тип и марка привода | ЯМЗ-236М2 |
| Мощность двигателя, кВт (л.с.) | 132 (180) |
| Габаритные размеры, мм (длина*ширина*высота) | 3240х1710х1550 |
| Масса, кг | 2730 |
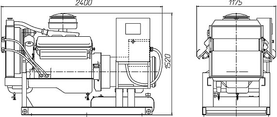
7.Дизельная электростанция ДЭС-100
Рисунок Д.7 – Габаритная схема дизельной электростанции ДЭС-100
Таблица Д.8 – Характеристики дизельной электростанции ДЭС-100
| Наименование характеристики | |
| Номинальная мощность (длительная), кВт/кВА | 100/125 |
| Максимальная часовая мощность, кВт/кВА | 110/137,5 |
| Род тока | переменный трехфазный |
| Номинальное напряжение, В | 400 |
| Номинальная частота, Гц | 50 |
| Номинальный коэффициент мощности | 0,8 |
| Номинальный ток, А | 180 |
| Частота вращения вала двигателя, мин-1 | 1500 |
| Продолжительность непрерывной работы при номинальной мощности, ч | 8 |
| Система топливопитания, л. | 200 |
| Габаритные размеры, мм (длина*ширина*высота) | 2450x1040x1145 |
| Масса сухого электроагрегата, кг | 2050 |
8.Автокран Ивановец 25т. КС–45717к-3Р
Таблица Д.9 – Технические характеристики автокрана КС–45717к-3Р
| Базовое шасси | КАМАЗ 43118-46 |
| Колесная формула | 6 x 6 |
| Двигатель | 740.662 (Евро-4) |
| Мощность двигателя, кВт (л.с.) - | 300 (221) |
| Грузоподъемность, т | 25 |
| Грузовой момент, тм | 84,8 |
| Максимальный вылет стрелы, м | 29,0 |
| Максимальная Высота подъема ,м | 31,2 |
| Длина стрелы, м | 9,9— 30,7 |
| Номинальная скорость подъёма (опускания) груза, м/мин | 7,4-4,0 |
| Скорость посадки, м/мин | 0,2 |
| Скорость передвижения. км/ч | 60 |
| Опорный контур. м | 6,0х5,43 2,26х5,43 |
| Длина, мм | 11945 |
| Ширина, мм | 2500 |
| Высота, мм | 3990 |
Рисунок Д.8 – Автокран Ивановец 25т. КС–45717к-3Р
Рисунок Д.9 –Грузоподъёмность автокрана Ивановец 25т. КС–45717к-3Р
127
Характеристики
Тип файла документ
Документы такого типа открываются такими программами, как Microsoft Office Word на компьютерах Windows, Apple Pages на компьютерах Mac, Open Office - бесплатная альтернатива на различных платформах, в том числе Linux. Наиболее простым и современным решением будут Google документы, так как открываются онлайн без скачивания прямо в браузере на любой платформе. Существуют российские качественные аналоги, например от Яндекса.
Будьте внимательны на мобильных устройствах, так как там используются упрощённый функционал даже в официальном приложении от Microsoft, поэтому для просмотра скачивайте PDF-версию. А если нужно редактировать файл, то используйте оригинальный файл.
Файлы такого типа обычно разбиты на страницы, а текст может быть форматированным (жирный, курсив, выбор шрифта, таблицы и т.п.), а также в него можно добавлять изображения. Формат идеально подходит для рефератов, докладов и РПЗ курсовых проектов, которые необходимо распечатать. Кстати перед печатью также сохраняйте файл в PDF, так как принтер может начудить со шрифтами.
















