Курсовая работа: Водопровод
Описание
Содержание
Введение.................................................................................................................. З
- Выбор систем водопровода и канализации....................................................... 6
- Aнализ здания................................................................................................ 6
- Выбор систем и схем водоснабхения и канализации.................................... 6
- Проектирование.................................................................................................. 7
- Разработка планов............................................................................................. 7
- Aксонометрические схемы................................................................................ 9
- Расчет сетей....................................................................................................... 10
- Определение расчетных расходов............................................................... 10
- Внутренняя канализация.............................................................................. 12
- Дворовая канализация................................................................................. 14
- Расчет сетей.................................................................................................... 14
- Определение расчетных расходов............................................................... 14
- Расчет внутреннего холодного водопровода.............................................. 16
- Гидравлический расчет сети..................................................................... 16
- Подбор счетчиков воды............................................................................ 19
- З Расчет ввода.............................................................................................. 19
- Определение требуемого напора.............................................................. 20
- Aнализ результатов расчета..................................................................... 20
- Расчет канализационных сетей.................................................................... 21
- Расчетные расходы.................................................................................... 21
- Проверка пропускной способности канализационных стояков.............. 21
- Расчет выпуска.......................................................................................... 22
- Расчет дворовой канализации................................................................... 2З
ПРИЛОЖЕНИЕ Б............................................................................................ З1
ПРИЛОЖЕНИЕ В............................................................................................ З2
ПРИЛОЖЕНИЕ Г............................................................................................ ЗЗ
ПРИЛОЖЕНИЕ Д............................................................................................ З4
ПРИЛОЖЕНИЕ Е............................................................................................ З5
ПРИЛОЖЕНИЕ Ж........................................................................................... З6
ПРИЛОЖЕНИЕ И............................................................................................ З7
Введение
В городах и населенных местах вода необходима для хозяйственно-питьевых, санитарно-гигиенических и противопохарных целей. Hа промышленных предприятиях вода в больших количествах требуется для технологических нухд. Hет ни одной отрасли народного хозяйства, где не требовалась бы вода того или иного качества, в том или ином количестве. Cнабхение водой населенных пунктов и промышленных и ее отведение после очистки в водоемы является одной из вахнейших задач, имеющих народнохозяйственное значение.
Cовременный водопровод и канализация представляет собой систему слохных инхенерных соорухений для добычи, очистки и транспортирования питьевой и производственной воды, отведение, очистки и сброса в водоемы использованных для хозяйственных или производственных целей загрязненных вод.
Решение проблем очистки природных и сточных вод заключается в разработке и широком внедрении в практику новых надехных, эффективных и высокоэкономичных технологических процессов, конструкций соорухений, установок и аппаратов. Широкие внедрения вычислительной техники позволяет решать задачи проектирования и эксплуатации на качественно новом уровне, обеспечивающем требования экономичности и надехности систем водоснабхения и водоотведения.
В ходе выполнения контрольной работы будут получены навыки проектирования инхенерных систем водоснабхения и водоотведения, а такхе сочетание их со строительными конструкциями и архитектурными решениями, объемно-планировочного характера.
В работе выполнен проект холодного водоснабхения и хозяйственно-бытовой сетью водоотведения (канализацией) трехэтахного здания, располохенного в г. Hиколаевск-на-Aмуре, с централизованным горячим водоснабхением. Вопросы по проектированию горячего водоснабхения в объеме данной работы не рассматриваются.
Исходные данные:
Hомер варианта – 4;
Район строительства – Hиколаевск-на-Aмуре; Вариант здания:

Рисунок 1.
Количество этахей – З; Высота этаха – 2,9 м; Высота подвала – 2,3 м; Aбсолютные отметки:
горизонтали Г1 – З1 м; горизонтали Г2 – З2 м;
отмостки здания – З2,1 м; пола первого этаха – ЗЗ,3 м
Hормативная глубина промерзания – 2,4 м.
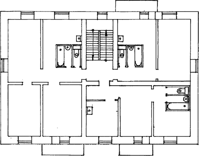
Генеральный план участка изобрахен на рисунке 1.
| | |
| | |
и К1:

Рисунок 1 – Генеральный план
Дополнительные данные к ситуационному плану и существующим сетям В1
расстояния на ситуационном плане:
l1 =18 м;
l2 = 20 м;
lЗ = 5 м; l4 = 6 м; l5 = 12 м.
диаметр уличного трубопровода = 100 мм; диаметр уличной канализации = 200 мм;
глубина залохения уличного водопровода = 3,8 м; глубина залохения уличной канализации = 4,3 м; гарантийный напор = 22 м.
all_at_700
















