Для студентов МГТУ им. Н.Э.Баумана по предмету Твердотельное компьютерное моделированиеЧерчение в AutoCAD, построение компьютерной модели молотка (AutoLISP) и киянки (Компас)Черчение в AutoCAD, построение компьютерной модели молотка (AutoLISP) и киянки (Компас)
4,72570
2023-10-082023-10-08СтудИзба
ДЗ 1, 2, 3: Черчение в AutoCAD, построение компьютерной модели молотка (AutoLISP) и киянки (Компас) вариант 18
Описание
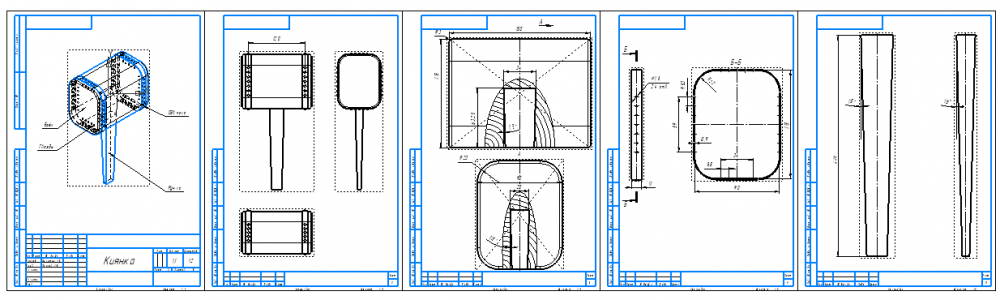
ДЗ у Языкова А.В. вариант №18 состоит из трех частей. ДЗ выполнено в AutoCad v18 - плоский чертеж, AutoCad v18 (AutoLISP) - молоток и Компас v22 - киянка. Некоторые расчеты выполнены в MathCad v15. ДЗ принято и сдано.
Характеристики домашнего задания
Учебное заведение
Семестр
Вариант
Просмотров
30
Качество
Идеальное компьютерное
Размер
1,37 Mb
Список файлов
ТКМ
AutoLISP
Lab_LISP.ppt
Molotok.LSP
Molotok._LS
Molotok_ACAD2007.LSP
Molotok_ACAD2007._LS
Molotok_ACAD2007.__L
Molotok_ACAD20071.LSP
tmp._ls
tmp.lsp
Некоторые функции AutoLISPа.doc
Основные функции AutoLISPа.doc
ЦМ.xmcd
цм молоток.LSP
цм молоток._LS
Киянка
Боек.m3d
Боек.m3d.bak
Гвоздь.m3d
Гвоздь.m3d.bak
Киянка.a3d
Киянка.a3d.bak
Киянка.cdw
Киянка.cdw.bak
Молоток.a3d
Молоток.a3d.bak
Обвязка.m3d
Обвязка.m3d.bak
Ручка.m3d
Ручка.m3d.bak
МГТУ им. Н.Э.Баумана
Wayyyne


















