Для студентов МГТУ им. Н.Э.Баумана по предмету Технология конструкционных материалов (ТКМ)Технология изготовления сварных конструкций - ВтулкаТехнология изготовления сварных конструкций - Втулка
5,0052
2021-04-052024-09-03СтудИзба
ДЗ 2: Технология изготовления сварных конструкций - Втулка вариант 7
-66%
Описание
Зачтено на максимальный балл
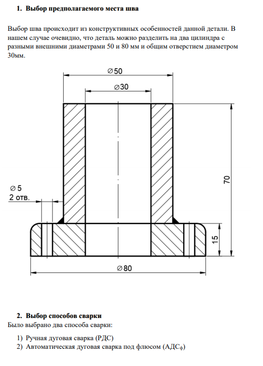
Выбор предполагаемого места шва Выбор шва происходит из конструктивных особенностей данной детали. В нашем случае очевидно, что деталь можно разделить на два цилиндра с разными внешними диаметрами 50 и 80 мм и общим отверстием диаметром 30мм.


Характеристики домашнего задания
Учебное заведение
Номер задания
Вариант
Просмотров
330
Размер
553,1 Kb
Список файлов
Втулка (ДЗ №4 - Технология получения детали методом сварки).pdf

Друзья, спасибо за доверие! Если вам понравилась работа – поставьте 5⭐ и напишите отзыв. Это поможет другим студентам, а мне даст силы делать ещё больше качественных материалов для вас 🔥