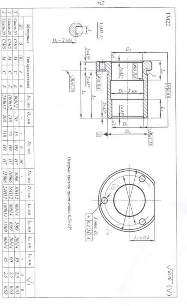
ДЗ: Деталь Стакан
Описание
Оглавление
I. Анализ технических требований, выявление технологических задач....... 4
III. Выбор метода получения заготовки......................................................... 6
IV. Выбор маршрута обработки основных поверхностей детали................ 6
V. Разработка общего маршрута изготовления детали................................ 8
Список литературы 16Задание
Анализ технических требований, выявление технологических задач.
Деталь "Стакан" используется в станкостроении, предназначена для точной установки валов, поэтому к ней предъявляются высокие требования по точности, по биению и шероховатости.
Деталь имеет цилиндрическую форму с фланцевой частью, предназначенной для крепления детали к стенке корпуса. В центральном отверстии имеются концентрично выполненные расточки, куда устанавливаются подшипники в которые запрессовываются концы вращающихся валов.
От качества изготовления стаканов зависит надёжность и долговечность работы изделий и поэтому совершенствованию технологии их изготовления постоянно уделяется самое серьёзное внимание.
Разработать технологический процесс изготовления изделия.
МГТУ ГА
all_at_700
















