Курсовая работа: Разработка технологических карт на возведение нулевого цикла здания цеха ковки и штамповки в г. Тула
Описание
Содержание
Паспорт проектируемого здания.................................................................... 3
1 Исходные данные для проектирования....................................................... 5
2 Технологическая карта на производство земляных работ........................ 11
2.1 Определение вида земляных сооружений........................................... 11
2.2 Ведомость объёмов работ.................................................................... 142.3 Выбор комплекта машин для разработки грунта............................... 23
2.4 Калькуляция затрат.............................................................................. 28
2.5 Календарный график производства земляных работ......................... 322.6 Технология разработки грунта............................................................ 33
2.7 Технико-экономические показатели календарного графика работ.... 412.8 Контроль качества земляных работ..................................................... 42
2.9 Техника безопасности при производстве работ.................................. 44
3 Технологическая карта на монтаж конструкций нулевого цикла............. 49
3.1 Ведомость объёмов работ.................................................................... 49
3.2 Ведомость потребности в материалах................................................. 593.3 Расчёт параметров выбора крана........................................................ 60
3.4 Выбор грузозахватных приспособлений............................................ 68
3.5 Калькуляция затрат.............................................................................. 703.6 Календарный график работ................................................................. 72
3.7 Технология возведения подземной части здания................................ 73
3.8 Технико-экономические показатели календарного графика работ.... 793.9 Контроль строительно-монтажных работ........................................... 80
4 Техника безопасности при производстве СМР работ............................... 81
Паспорт проектируемого здания:

Цех ковки и штамповки с АБК Климатический район строительства - II В Место строительства – г. Тула

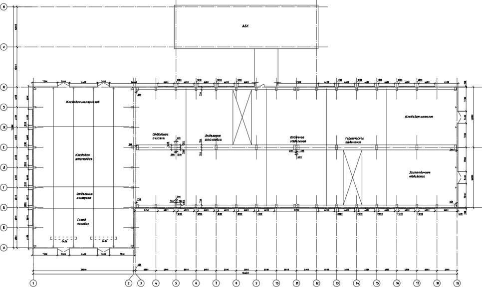
Рисунок 1 – фасад и план цеха Производительность цеха, т/год – 6000 Строительный объем здания, м3 – 82268,03
Общая площадь здания, м2 – 5583,55
Введение.
Технологические карты разработаны на производство земляных работ и монтаж конструкций подземной части здания цеха ковки и штамповки и соединённого с ним административно-бытового корпуса.
Целью курсового проектирование является получение первого опыта в разработке технологических процессов и составлении технологических карт при возведении подземной части здания.
В ходе проектирования разработаны технологические карты на разработку грунта и на монтаж конструкций нулевого цикла.
В технологической карте на производство земляных работ определены виды земляных сооружений, составлена ведомость объёмов работ, календарный график и калькуляция затрат, указана технология разработки грунта.
В технологической карте на монтаж конструкций нулевого цикла определены объёмы опалубочных и бетонных работ, произведён подбор автокрана и автобетононасоса, а также грузозахватных приспособлений, составлена ведомость объёмов работ, календарный график и калькуляция затрат, разработана технология СМР.
В ходе работы получен опыт работы с типовыми технологическими картами и государственными элементными сметными нормами.
Исходные данные для проектирования
Назначение здание: промышленное Город: Тула
Тип фундамента: Стаканного типа железобетонный монолитный
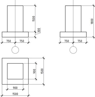
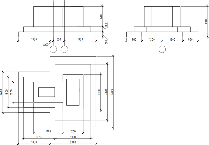
Тип грунта: суглинки (III группа трудности разработки по ГЭСН 2001-01) Таблица 1 – Схемы монолитных фундаментов:
Наименование | Схема |
Ф1 | |
Ф2 | |
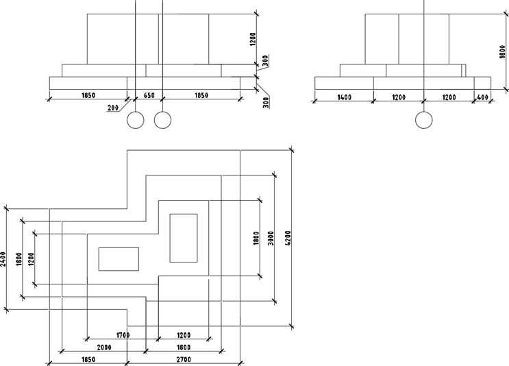
Продолжение таблицы 1
Ф3 | |
Ф4 | |
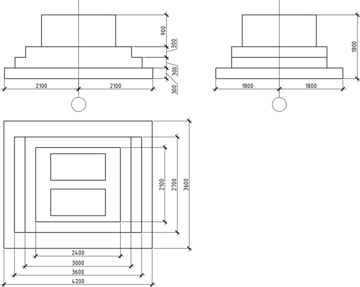
Ф5 | |
Продолжение таблицы 1
Ф6 | |
Ф7 | |
Продолжение таблицы 1
Ф8 | |
Ф9 | |
Продолжение таблицы 1
Ф10 | |
Таблица 2 – Спецификация элементов фундамента
Поз. | Обозначение | Наименование | Кол. | Масса, т | Прим.* |
Фундаменты монолитные | |||||
Ф1 | ФГ46 | 30 | 12,11 | 6,73 | |
Ф2 | ФД46 | 7 | 12,82 | 7,12 | |
Ф3 | ФВ20 | 15 | 11,23 | 6,24 | |
Ф4 | ФА1-2 | 30 | 3,11 | 1,73 | |
Ф5 | ФФ | 12 | 3,40 | 1,89 | |
Ф6 | ФГТ31 | 2 | 17,53 | 9,74 | |
Ф7 | ФДТ36 | 1 | 18,95 | 10,55 | |
Ф8 | ФД46/ФВ20-1 | 1 | 23,35 | 12,97 | |
Ф9 | ФГ46/ФВ20 | 1 | 24,05 | 13,36 | |
Ф10 | ФД46/ФВ20-2 | 1 | 23,35 | 12,97 | |
Балки фундаментные монолитные | |||||
БФ1 | 2БФМ48-10 | 31 | 0,77 | 0,43 | |
БФ2 | 2БФМ43-10 | 13 | 0,70 | 0,39 | |
БФ3 | 2БФМ51-10 | 26 | 0,83 | 0,46 | |
БФ4 | 2БФМ44 -10 | 4 | 0,72 | 0,4 | |
БФ5 | 2БФМ21-10 | 4 | 0,34 | 0,19 | |
БФ6 | 2БФМ51,5-10 | 2 | 0,83 | 0,46 | |
БФ7 | 2БФМ41,5-10 | 2 | 0,67 | 0,37 | |
*В графе указан объём бетонной смеси необходимы для изготовления элемента, м3 | |||||

Рисунок 2 – Схема фундаментов










СмолГУ
all_at_700
















