Для студентов МГТУ им. Н.Э.Баумана по предмету Проектирование технологических комплексов механосборочного производства (МТ-3)Повышение производительности технологического комплекса по изготовлению агрегатов пневматических системПовышение производительности технологического комплекса по изготовлению агрегатов пневматических систем
4,90546789
2021-03-172024-09-03СтудИзба
Курсовая работа: Повышение производительности технологического комплекса по изготовлению агрегатов пневматических систем
-41%
Описание
Проектирование технологического комплекса по производству агрегатов пневматических систем и разработка стенда для испытаний дренажного предохранительного клапана
Лист 1 - Анализ исходных данных
Лист 2 -Выбор компоновочной схемы цеха
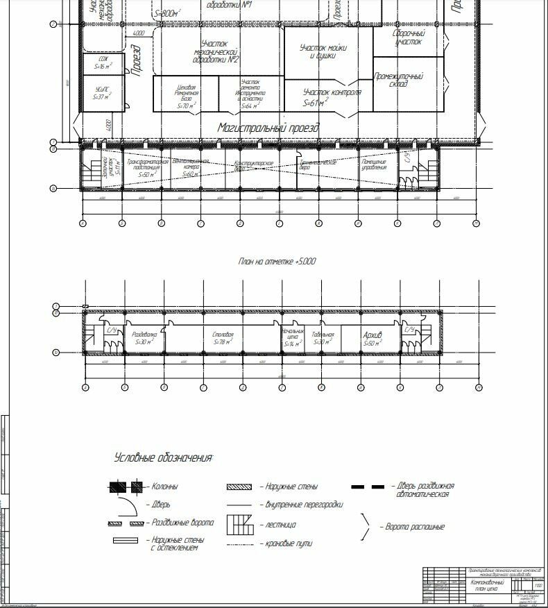
Лист3 - Компоновочный план цеха
Лист 4 - Планировка участка механической обработки №1 и №2 и участка мойки и сушки
Лист 5 - Стенд для испытаний предохранительного дренажного клапана
Техническое задание: 1) Анализ исходных данных и исследование способов повышения производительности; 2) разработка предложений по повышению производительности технологического комплекса; 3) разработка дискретно-событийной модели технологического комплекса 4) Выявление с помощью дискретно-событийной модели влияния стратегий автоматизации на производительность технологического комплекса; 5) На основании данных, полученных с помощью дискретно-событийной модели, выбрать наиболее экономически эффективную стратегию автоматизации технологического комплекса
![]()
Лист 1 - Анализ исходных данных
Лист 2 -Выбор компоновочной схемы цеха
Лист3 - Компоновочный план цеха
Лист 4 - Планировка участка механической обработки №1 и №2 и участка мойки и сушки
Лист 5 - Стенд для испытаний предохранительного дренажного клапана
Техническое задание: 1) Анализ исходных данных и исследование способов повышения производительности; 2) разработка предложений по повышению производительности технологического комплекса; 3) разработка дискретно-событийной модели технологического комплекса 4) Выявление с помощью дискретно-событийной модели влияния стратегий автоматизации на производительность технологического комплекса; 5) На основании данных, полученных с помощью дискретно-событийной модели, выбрать наиболее экономически эффективную стратегию автоматизации технологического комплекса






Характеристики курсовой работы
Учебное заведение
Просмотров
31
Размер
11 Mb
Список файлов
испытаний дренажного предохранительного клапана
Записка.pdf
Лист 1.PNG
Лист 1.pdf
Лист 2.PNG
Лист 2.pdf
Лист 3.pdf
Лист 4.pdf
Лист 5.pdf
Спецификация.pdf

Друзья, спасибо за доверие! Если вам понравилась работа – поставьте 5⭐ и напишите отзыв. Это поможет другим студентам, а мне даст силы делать ещё больше качественных материалов для вас 🔥