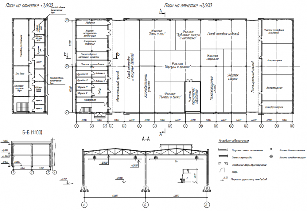
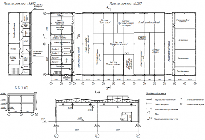
Для студентов МГТУ им. Н.Э.Баумана по предмету Проектирование технологических комплексов механосборочного производства (МТ-3)Технологический комплекс МСП насос-редукторов буровой установкиТехнологический комплекс МСП насос-редукторов буровой установки
5,0051
2021-07-132021-07-13СтудИзба
Курсовая работа: Технологический комплекс МСП насос-редукторов буровой установки
-50%
Описание
Характеристики курсовой работы
Учебное заведение
Просмотров
14
Размер
8,25 Mb
Список файлов
19
Листы.pdf
РПЗ.pdf
Комментарии
Нет комментариев
Стань первым, кто что-нибудь напишет!

МГТУ им. Н.Э.Баумана


















