Для студентов ИжГТУ по предмету Основания и фундаментыПроектирование фундаментовПроектирование фундаментов
5,0053866
2025-11-06СтудИзба

Курсовая работа: Проектирование фундаментов

Описание

СОДЕРЖАНИЕ
1. Исходные данные…………………………………………………………... 3
1.1. Характеристика строительной площадки…………………………… 3
1.2. Краткая характеристика проектируемого объекта…………………. 3
2. Инженерно-геологические изыскания…………………………………….. 5
2.1. Определение физико-механических характеристик грунта……….. 5
2.2. Построение геологического плана…………………………………... 6
2.3 Заключение о площадке строительства……………………………... 7
3. Выбор глубины заложения подошвы фундамента……………………….. 7
4. Сбор нагрузки на фундамент………………………………………………. 8
5. Расчет фундамента мелкого заложения…………………………………… 9
5.1. Отдельно стоящий фундамент с подвалом………………………….. 9
5.2. Расчет осадок фундамента мелкого заложения…………………….. 23
6. Расчет свайного фундамента………………………………………………. 31
6.1. Отдельно стоящий свайный фундамент…………………………….. 31
6.2 Расчет осадок свайного фундамента………………………………… 49
7. Технико-экономические показатели ФМЗ и свайного фундамента……... 57
8. Гидроизоляция и водопонижение…………………………………………. 59
Список использованных источников……………………………………… 60


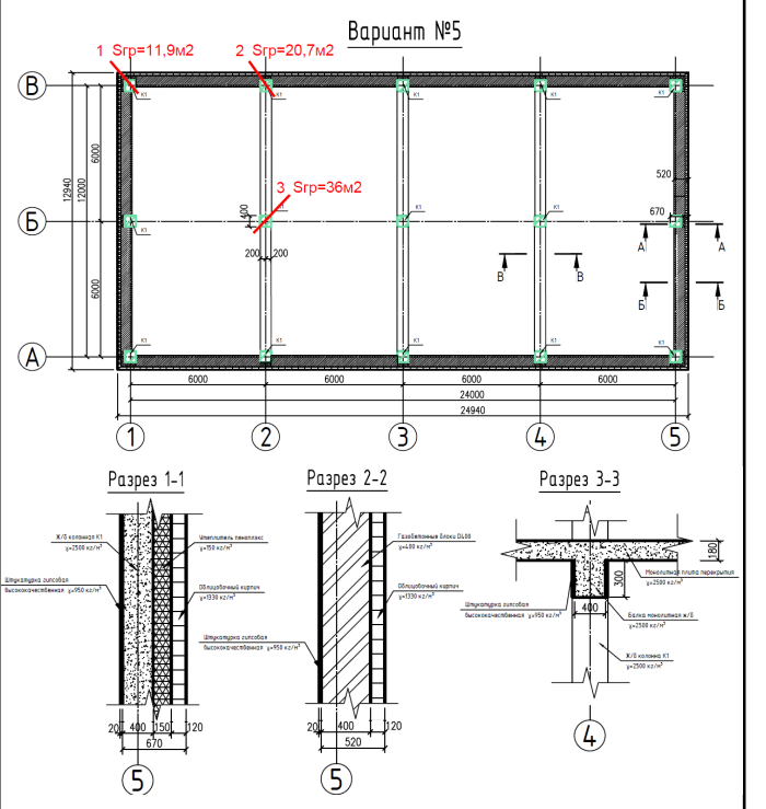
1.2. Краткая характеристика проектируемого объекта Высота здания 28,22 м, с размерами в плане 24,94х12,94 м, количество этажей 9, высота этажа 2,8 м (от пола до потолка), с эксплуатируемым подвалом с полом, устраиваемым по железобетонному основанию (высота подвала от пола подвала до верхней плиты перекрытия 3,0 м). Конструктивная схема – с полным каркасом, с несущими колоннами. Стены наружные – выполнены из газобетонных блоков D400 толщиной 400 мм и внутренней отделкой из высококачественной штукатурки толщиной 20 мм, фасад выполнен из облицовочного пустотелого керамического кирпича толщиной 120 мм. Кол.уч. 4 Изм. Лист № док. Подпись Дата Лист Несущие колонны – железобетонные монолитные толщиной 400 мм и длиной 400 мм с отделкой из высококачественной штукатурки толщиной 20 мм по периметру. Перекрытия – монолитные железобетонные толщиной 180 мм площадью, ограниченной верхним контуром, с опиранием на пилоны и вспомогательные монолитные продольные балки сечением 400х300 мм. Продольные стены с оконными проемами 1,4х1,2 м. Торцевые наружные стены – «глухие».

Характеристики курсовой работы

Учебное заведение
Просмотров
2
Качество
Идеальное компьютерное
Размер
1,83 Mb

Список файлов

primer-1.pdf
Картинка-подпись
Если нужен другой вариант работы или отдельная задача из любой работы, пишите в комментарии

Комментарии

Нет комментариев
Стань первым, кто что-нибудь напишет!
Поделитесь ссылкой:
Цена: 800 руб.
Расширенная гарантия +3 недели гарантии, +10% цены
Рейтинг автора
5 из 5
Поделитесь ссылкой:
Сопутствующие материалы

Подобрали для Вас услуги

-17%
Вы можете использовать курсовую работу для примера, а также можете ссылаться на неё в своей работе. Авторство принадлежит автору работы, поэтому запрещено копировать текст из этой работы для любой публикации, в том числе в свою курсовую работу в учебном заведении, без правильно оформленной ссылки. Читайте как правильно публиковать ссылки в своей работе.
Свежие статьи
Популярно сейчас
Как Вы думаете, сколько людей до Вас делали точно такое же задание? 99% студентов выполняют точно такие же задания, как и их предшественники год назад. Найдите нужный учебный материал на СтудИзбе!
Ответы на популярные вопросы
Да! Наши авторы собирают и выкладывают те работы, которые сдаются в Вашем учебном заведении ежегодно и уже проверены преподавателями.
Да! У нас любой человек может выложить любую учебную работу и зарабатывать на её продажах! Но каждый учебный материал публикуется только после тщательной проверки администрацией.
Вернём деньги! А если быть более точными, то автору даётся немного времени на исправление, а если не исправит или выйдет время, то вернём деньги в полном объёме!
Да! На равне с готовыми студенческими работами у нас продаются услуги. Цены на услуги видны сразу, то есть Вам нужно только указать параметры и сразу можно оплачивать.
Отзывы студентов
Ставлю 10/10
Все нравится, очень удобный сайт, помогает в учебе. Кроме этого, можно заработать самому, выставляя готовые учебные материалы на продажу здесь. Рейтинги и отзывы на преподавателей очень помогают сориентироваться в начале нового семестра. Спасибо за такую функцию. Ставлю максимальную оценку.
Лучшая платформа для успешной сдачи сессии
Познакомился со СтудИзбой благодаря своему другу, очень нравится интерфейс, количество доступных файлов, цена, в общем, все прекрасно. Даже сам продаю какие-то свои работы.
Студизба ван лав ❤
Очень офигенный сайт для студентов. Много полезных учебных материалов. Пользуюсь студизбой с октября 2021 года. Серьёзных нареканий нет. Хотелось бы, что бы ввели подписочную модель и сделали материалы дешевле 300 рублей в рамках подписки бесплатными.
Отличный сайт
Лично меня всё устраивает - и покупка, и продажа; и цены, и возможность предпросмотра куска файла, и обилие бесплатных файлов (в подборках по авторам, читай, ВУЗам и факультетам). Есть определённые баги, но всё решаемо, да и администраторы реагируют в течение суток.
Маленький отзыв о большом помощнике!
Студизба спасает в те моменты, когда сроки горят, а работ накопилось достаточно. Довольно удобный сайт с простой навигацией и огромным количеством материалов.
Студ. Изба как крупнейший сборник работ для студентов
Тут дофига бывает всего полезного. Печально, что бывают предметы по которым даже одного бесплатного решения нет, но это скорее вопрос к студентам. В остальном всё здорово.
Спасательный островок
Если уже не успеваешь разобраться или застрял на каком-то задание поможет тебе быстро и недорого решить твою проблему.
Всё и так отлично
Всё очень удобно. Особенно круто, что есть система бонусов и можно выводить остатки денег. Очень много качественных бесплатных файлов.
Отзыв о системе "Студизба"
Отличная платформа для распространения работ, востребованных студентами. Хорошо налаженная и качественная работа сайта, огромная база заданий и аудитория.
Отличный помощник
Отличный сайт с кучей полезных файлов, позволяющий найти много методичек / учебников / отзывов о вузах и преподователях.
Отлично помогает студентам в любой момент для решения трудных и незамедлительных задач
Хотелось бы больше конкретной информации о преподавателях. А так в принципе хороший сайт, всегда им пользуюсь и ни разу не было желания прекратить. Хороший сайт для помощи студентам, удобный и приятный интерфейс. Из недостатков можно выделить только отсутствия небольшого количества файлов.
Спасибо за шикарный сайт
Великолепный сайт на котором студент за не большие деньги может найти помощь с дз, проектами курсовыми, лабораторными, а также узнать отзывы на преподавателей и бесплатно скачать пособия.
Популярные преподаватели
Добавляйте материалы
и зарабатывайте!
Продажи идут автоматически
6933
Авторов
на СтудИзбе
266
Средний доход
с одного платного файла
Обучение Подробнее
{user_main_secret_data}