Курсовая работа: Организация возведения 16-этажного жилого здания в г.Томске
Описание
З А Д А Н И Е 3
на проектирование организации возведения многоэтажного монолитного жилого дома (курсо- вой проект 1 - подземная часть, курсовой проект 2 - надземная часть)
СтудентФакультетКурсГруппаПреподаватель Вариант исходных данных заданияСрок выдачи заданияСрок сдачи проекта Варианты исходных данных для проектирования:
Наименование показателей | Варианты | |||||||
1 | 2 | 3 | 4 | 5 | 6 | 7 | 8 | |
Место строительства | Москва | Москва | Самара | Томск | Казань | Тамбов | Курск | Пермь |
Количество этажей | 27 | 22 | 22 | 16 | 16 | 12 | 16 | 12 |
Высота этажа Hэт, м | 3 | 3.3 | 2.9 | 3 | 3 | 2.7 | 2.7 | 3.3 |
Вариант исполнения наружных стен | 2 | 3 | 2 | 4 | 3 | 1 | 4 | 1 |
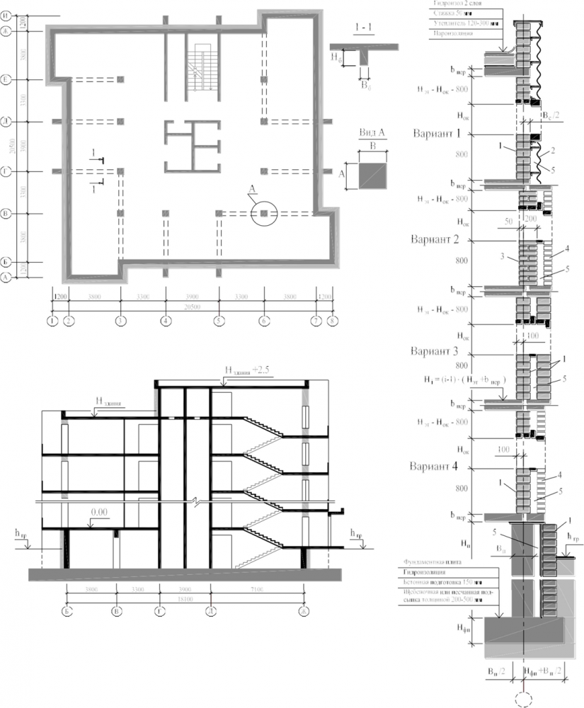
Высота подвального этажа, Hп, м | 3.3 | 4 | 3.5 | 3 | 3.2 | 2.8 | 2.5 | 2.7 |
Грунт, отметка поверхности hгр, м | (песч)-1.1 | (глина)-1.5 | (глина)-0.9 | (сугл)-0.6 | (спс)-0.8 | (песч)-0.4 | (спс)-0.3 | (сугл)-0.5 |
Толщина монолитн. ж/б стен, Вс, мм | 250 | 200 | 250 | 200 | 200 | 200 | 200 | 200 |
Толщина монолитного перекрытия, мм | 160 | 220 | 250 | 180 | 200 | 220 | 200 | 200 |
Толщина стен подвала, Вп, мм | 400 | 400 | 400 | 300 | 300 | 250 | 300 | 250 |
Сечение колонн подвала АВ, мм | 600600 | 500500 | 500500 | 500500 | 400400 | 400400 | 400400 | 400400 |
Сечение монолитных балок, НбВб, мм | 800400 | 600300 | 600300 | 500250 | 500200 | 400200 | 500200 | 400200 |
Толщина фундаментной плиты, Hфп, мм | 1200 | 1000 | 1100 | 600 | 800 | 500 | 600 | 400 |
Класс используемого бетона | B30 | B25 | B25 | B22.5 | B30 | B25 | B25 | B22.5 |
Диаметр/шаг рабочей ар-ры стен, мм | 20/200 | 18/200 | 18/200 | 16/200 | 16/200 | 18/250 | 18/200 | 18/250 |
Диаметр/шаг ар-ры сеток перекрытия, мм | 18/200 | 18/200 | 18/200 | 18/250 | 16/200 | 18/250 | 18/200 | 18/250 |
Диаметр/шаг ар-ры сеток ф.плиты, мм | 18/200 | 18/200 | 18/200 | 18/250 | 16/200 | 18/250 | 18/200 | 18/250 |
Температура бетона после укладки (зима) | +15 | +12 | +15 | +10 | +15 | +10 | +10 | +8 |
Темп возведения типового этажа, дни | 7 | 9 | 8 | 11 | 10 | 14 | 12 | 15 |
песч - песчаный грунт; спс - супесь; сугл - суглинок
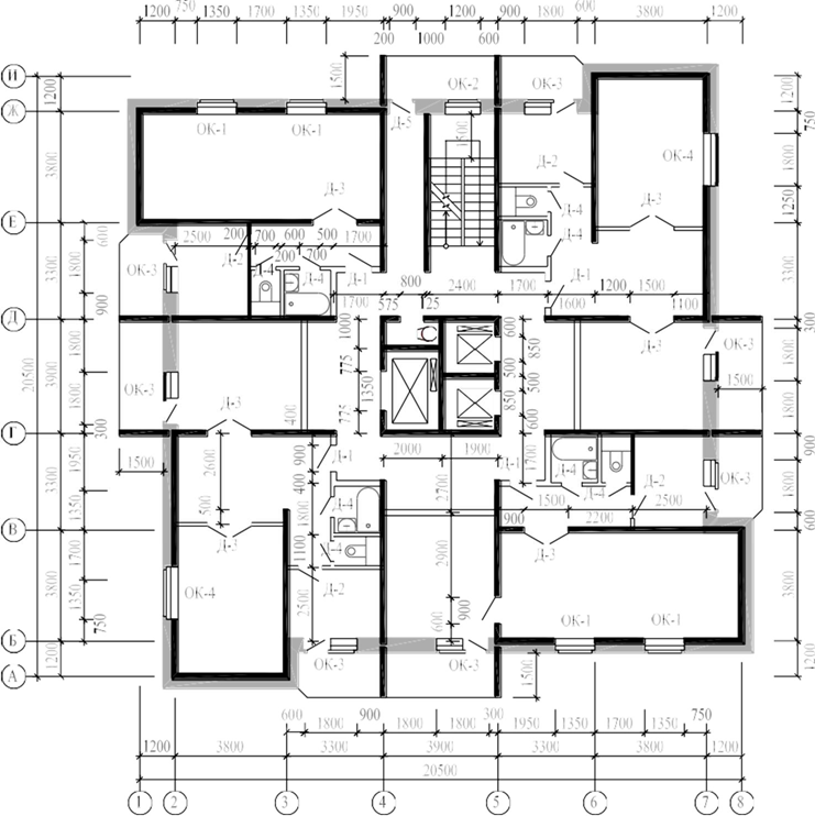
ПЛАН ТИПОВОГО ЭТАЖА ЗДАНИЯ

Высота этажа, м | Маркировка окон и дверей ота-ширина) (выс | ||||||||
ОК–1 | ОК–2 | ОК–3 + БД | ОК–4 | Д–1 | Д–2 | Д–3 | Д–4 | Д–5 (БД) | |
2.7 ; 2.9 | 15–13.5 | 15–12 | 15–9 + 22–9 | 15–18 | 21–9Г | 21–8C | 21–15С | 21–7Г | 22–9С |
3.0 ; 3.3 | 18–13.5 | 18–12 | 18–9 + 24–9 | 18–18 | 24–9Г | 24–8С | 24–15С | 21–7Г | 24–9С |
Г - глухая дверь; С - остеклѐнная дверь
- - керамзитобетонные блоки 400200100мм средней плотностью 1000 кг/м3;
- - металлизированные декоративные панели весом 20 кг/м2;
- - кирпич глиняный, пустотный, средней плотностью 1400 кг/м3;
- - кирпич облицовочный, пустотный, средней плотностью 1400 кг/м3;
- - утеплитель пенополистирол ПСБ-С35 объемной плотностью 35 кг/м3, толщиной 80-120мм Особые условия, согласуемые по ходу выполнения проекта: конструктивные особенно- сти оснований фундамента, кровли, применяемая опалубка, способы укладки и уплотнения бетонной смеси, методы и способы тепловой обработки выдерживаемых конструкций в зим- ний период работ.
НИУ МГСУ в г. Мытищи
all_at_700

















