Курсовая работа: Пресс двухстоечный
Описание
ОГЛАВЛЕНИЕ
ВВЕДЕНИЕ | 3 | |
1 | ИСХОДНЫЕ ДАННЫЕ | 4 |
2 | РАСЧЕТ ГРУЗОВОГО ВИНТА | 5 |
3 | РАСЧЕТ ГАЙКИ | 8 |
4 | ОПРЕДЕЛЕНИЕ МОМЕНТА НА РУКОЯТКЕ ПРЕССА И РАСЧЕТ РУКОЯТКИ НА ПРОЧНОСТЬ | 10 |
5 6 | ОПРЕДЕЛЕНИЕ ДИАМЕТРА СТОЕК ПРЕССА РАСЧЕТ ТРАВЕРСЫ | 12 12 |
7 ПОСТОРЕНИЕ ЭПЮРЫ ВИНТА | 13 | |
ЗАКЛЮЧЕНИЕ | 14 | |
БИБЛИОГРАФИЧЕСКИЙ СПИСОК | 15 | |
ВВЕДЕНИЕ
Пресс двухстоечный предназначен для преобразования вращательного движения в поступательное.
Пресс может работать на ручной или автоматической тяге. Механический двухстоечный пресс применяется в слесарном деле для выпрессовки втулок или подшипников, высечки небольших изделий, штамповки, запрессовки и клепки. На нем штампуют, выпрямляют и прогибают детали, осуществляют дополнительную обработку. С его помощью экономится время на изготовление деталей, а качество их остается высоким.
Принцип работы механизма таков: ручной тягой запускается вращательное движение эксцентрика. Он соединен с поршнем, который продавливает сырье через матрицу. Сила контрдавления регулируется формой матрицы, которую можно заменить. Существует множество видов матриц для разных видов сырья. Дополнительно к станку прилагаются штампы для производства плоских деталей из листового металла.
При проектировании двухстоечного пресса руководствуются рабочей высотой, рабочим усилием и габаритами деталей.
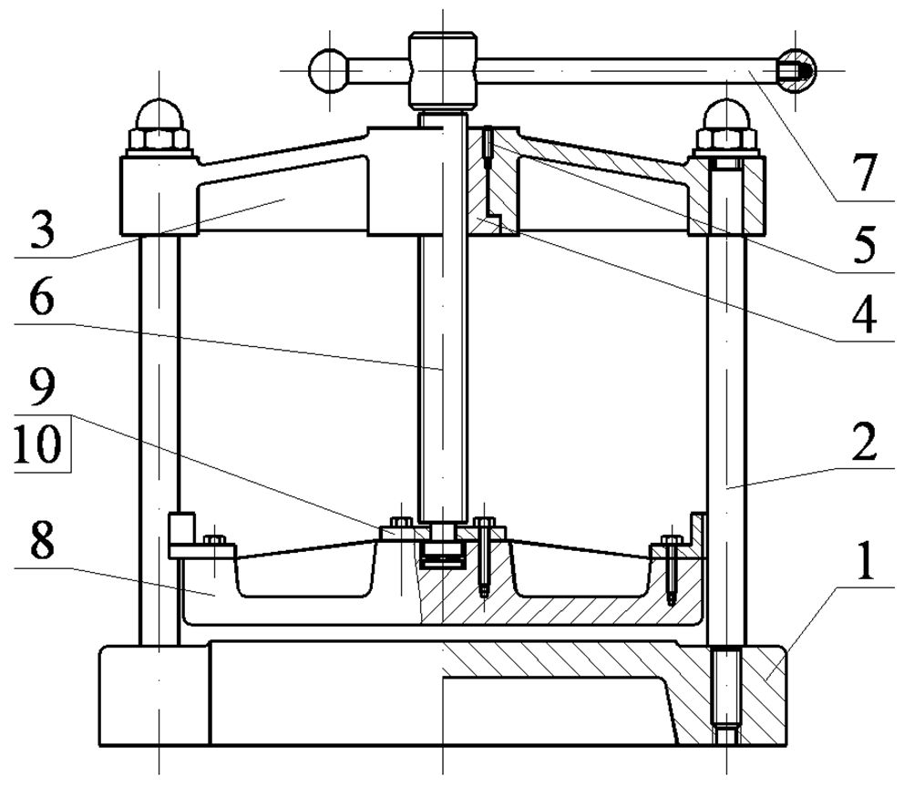
1.ИСХОДНЫЕ ДАННЫЕ
Q=80 кН = 80000 Н
L= 750 мм
А= 300 мм
Тип резьбы – трапецеидальная.
Значение размера l=lшайб х 0,8L
Траверсу считать абсолютно жесткой.
Материал гайки – бронза Бр.АЖ 9-4 ГОСТ 493-54
Диаметр головки винта d2 = 1,6d3
lв = 3dв
Схема пресса в соответствие с рисунком 1.

Рисунок 1 – Схема пресса.
vitalievnatalia
















