Главная » Учебные материалы » Электроснабжение » Курсовые работы » Электроснабжение машиностроительного завода

Курсовая работа: Электроснабжение машиностроительного завода

Описание

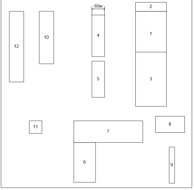
  1. Генеральный план машиностроительного завода представлен на рисунке 1.
  2. Сведения об электрических нагрузках завода представлены в таблице 1.
  3. Питание, возможно, осуществить от подстанцииэнергосистемы, на которой установлены два трехобмоточных трансформатора мощностью 20000 кВА каждый, с первичным напряжением 110 кВ и вторичным 6 и 0,4 кВ.
  4. Мощность энергосистемы 1800 МВ·А.
  5. Сопротивление системы Хс=0,36 о.е.
  6. Расстояние от подстанции энергосистемы до завода 7,0 км.
Таблица 1 - Ведомость электрических нагрузок завода
Наименование цехаРуст,
кВт
1Механический цех 4600
2Моторный цех (6 кВ)3200
Моторный цех (0,4 кВ) 700
3Сборочный цех 1700
4Прессовый цех (6 кВ)3500
Прессовый цех (0,4 кВ) 600
5Инструментальный цех 2000
6Литейный цех (6 кВ)5400
Литейный цех (0,4 кВ) 1500
7Кузнечный цех 4600
8Лаборатория 250
9Ремонтно-механический цех -
10Котельная3200
11Насосная станция (6 кВ) 2950
Насосная станция (0,4 кВ)360
12Заводоуправление 180
Освещение цехов и территории заводаПо
Площади

Оглавление
Введение 3
1 Исходные данные 8
2 Краткая характеристика комбината 10
3 Расчет электрических нагрузок 15
3.1 Расчет силовых нагрузок цехов напряжением до 1 кВ. 15
3.2 Расчет электрических нагрузок цехов напряжением выше 1 кВ 16
3.3 Расчет осветительных нагрузок 18
3.4 Расчет электрической нагрузки предприятия 21
4 Определение местоположения ГПП 24
4.1 Геометрические характеристики предприятия 24
4.2 Определение центра электрических нагрузок 24
5 Определение количества и мощности трансформаторов 27
5.1Определение мощности трансформаторов ГПП 27
5.2Определение мощности трансформаторов ТП 28
6 Расчет токов короткого замыкания 31
6.1 Расчет параметров трехфазного КЗ в точке К1 (110кВ) 32
6.2 Расчет параметров трехфазного КЗ в точке К2 (6кВ) 34
6.3 Расчет параметров трехфазного КЗ в точке К3 (6кВ) 35
7. Выбор защитных устройств в цепи от короткого замыкания 39
Заключение 44
Список используемых источников 46

Характеристики курсовой работы

Просмотров
1
Качество
Идеальное компьютерное
Размер
609,33 Kb

Список файлов

kartogrammy-i-shema-primer.pdf
rabota-prinyata.docx
Картинка-подпись
Если нужен другой вариант работы или отдельная задача из любой работы, пишите в комментарии

Комментарии

Нет комментариев
Стань первым, кто что-нибудь напишет!
Поделитесь ссылкой:
Цена: 800 руб.
Расширенная гарантия +3 недели гарантии, +10% цены
Рейтинг автора
5 из 5
Поделитесь ссылкой:
Сопутствующие материалы

Подобрали для Вас услуги

Вы можете использовать курсовую работу для примера, а также можете ссылаться на неё в своей работе. Авторство принадлежит автору работы, поэтому запрещено копировать текст из этой работы для любой публикации, в том числе в свою курсовую работу в учебном заведении, без правильно оформленной ссылки. Читайте как правильно публиковать ссылки в своей работе.
Свежие статьи
Популярно сейчас
Почему делать на заказ в разы дороже, чем купить готовую учебную работу на СтудИзбе? Наши учебные работы продаются каждый год, тогда как большинство заказов выполняются с нуля. Найдите подходящий учебный материал на СтудИзбе!
Ответы на популярные вопросы
Да! Наши авторы собирают и выкладывают те работы, которые сдаются в Вашем учебном заведении ежегодно и уже проверены преподавателями.
Да! У нас любой человек может выложить любую учебную работу и зарабатывать на её продажах! Но каждый учебный материал публикуется только после тщательной проверки администрацией.
Вернём деньги! А если быть более точными, то автору даётся немного времени на исправление, а если не исправит или выйдет время, то вернём деньги в полном объёме!
Да! На равне с готовыми студенческими работами у нас продаются услуги. Цены на услуги видны сразу, то есть Вам нужно только указать параметры и сразу можно оплачивать.
Отзывы студентов
Ставлю 10/10
Все нравится, очень удобный сайт, помогает в учебе. Кроме этого, можно заработать самому, выставляя готовые учебные материалы на продажу здесь. Рейтинги и отзывы на преподавателей очень помогают сориентироваться в начале нового семестра. Спасибо за такую функцию. Ставлю максимальную оценку.
Лучшая платформа для успешной сдачи сессии
Познакомился со СтудИзбой благодаря своему другу, очень нравится интерфейс, количество доступных файлов, цена, в общем, все прекрасно. Даже сам продаю какие-то свои работы.
Студизба ван лав ❤
Очень офигенный сайт для студентов. Много полезных учебных материалов. Пользуюсь студизбой с октября 2021 года. Серьёзных нареканий нет. Хотелось бы, что бы ввели подписочную модель и сделали материалы дешевле 300 рублей в рамках подписки бесплатными.
Отличный сайт
Лично меня всё устраивает - и покупка, и продажа; и цены, и возможность предпросмотра куска файла, и обилие бесплатных файлов (в подборках по авторам, читай, ВУЗам и факультетам). Есть определённые баги, но всё решаемо, да и администраторы реагируют в течение суток.
Маленький отзыв о большом помощнике!
Студизба спасает в те моменты, когда сроки горят, а работ накопилось достаточно. Довольно удобный сайт с простой навигацией и огромным количеством материалов.
Студ. Изба как крупнейший сборник работ для студентов
Тут дофига бывает всего полезного. Печально, что бывают предметы по которым даже одного бесплатного решения нет, но это скорее вопрос к студентам. В остальном всё здорово.
Спасательный островок
Если уже не успеваешь разобраться или застрял на каком-то задание поможет тебе быстро и недорого решить твою проблему.
Всё и так отлично
Всё очень удобно. Особенно круто, что есть система бонусов и можно выводить остатки денег. Очень много качественных бесплатных файлов.
Отзыв о системе "Студизба"
Отличная платформа для распространения работ, востребованных студентами. Хорошо налаженная и качественная работа сайта, огромная база заданий и аудитория.
Отличный помощник
Отличный сайт с кучей полезных файлов, позволяющий найти много методичек / учебников / отзывов о вузах и преподователях.
Отлично помогает студентам в любой момент для решения трудных и незамедлительных задач
Хотелось бы больше конкретной информации о преподавателях. А так в принципе хороший сайт, всегда им пользуюсь и ни разу не было желания прекратить. Хороший сайт для помощи студентам, удобный и приятный интерфейс. Из недостатков можно выделить только отсутствия небольшого количества файлов.
Спасибо за шикарный сайт
Великолепный сайт на котором студент за не большие деньги может найти помощь с дз, проектами курсовыми, лабораторными, а также узнать отзывы на преподавателей и бесплатно скачать пособия.
Популярные преподаватели
Добавляйте материалы
и зарабатывайте!
Продажи идут автоматически
7206
Авторов
на СтудИзбе
249
Средний доход
с одного платного файла
Обучение Подробнее