Для студентов по предмету ЭлектроснабжениеЭлектроснабжение и электрооборудование учебных мастерских колледжаЭлектроснабжение и электрооборудование учебных мастерских колледжа
5,0051
2025-04-092025-04-09СтудИзба
Курсовая работа: Электроснабжение и электрооборудование учебных мастерских колледжа
Описание
СОДЕРЖАНИЕ
Введение................................................................................................................. 3
1 Характеристика учебных мастерских колледжа............................................. 5
2 Классификация помещений по взрыво–, пожаро–, электробезопасности... 7
3 Расчетная часть................................................................................................. 10
3.1 Определение категории надежности ЭСН и выбор схемы ЭСН ........... 10
3.2 Расчет электрических нагрузок ................................................................. 13
3.3 Расчет компенсирующего устройства и выбор трансформаторов учебных мастерских колледжа ..................... 20
4 Выбор элементов ЭСН..................................................................................... 22
4.1 Выбор аппаратов защиты распределительных устройств ...................... 22
5 Выбор кабелей линии электроснабжения...................................................... 27
Заключение .......................................................................................................... 28
Список используемых источников.................................................................... 29
Приложение А – План расположения и электроснабжения
электрооборудования учебных мастерских колледжа .................................... 31
Приложение Б – Принципиальная однолинейная электрическая схема
электроснабжения и электрооборудования учебных мастерских колледжа 32
Приложение В – Таблица «Сводная ведомость нагрузок»............................. 33
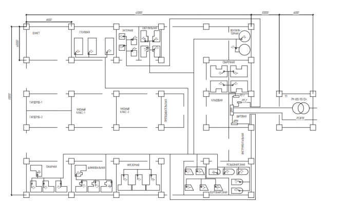
Учебные мастерские (УМ) предназначены для практической подготовки обучаемых. Они являются неотъемлемой частью учебно-материальной базы предприятия. Кроме того, УМ можно использовать для выполнения несложных заказов силами учащихся нуждающимся организациям. В учебных мастерских предусматривается наличие производственных, учебных, служебных и бытовых помещений. ЭСН мастерских осуществляется от ТП, расположенной на расстоянии 50 м от здания. ТП подключена к подстанции глубокого ввода (ПГВ), установленной в 4 км от нее, напряжение 10 кВ. Потребители ЭЭ относятся к 2 и 3 категории надежности ЭСН. Учебноподготовительный процесс - односменный. Основные потребители ЭЭ - станки различного назначения. Грунт в районе цеха - супесь с температурой + 20 °С. Каркас здания и ТП сооружен из блоков-секций длиной 8 и 6 м каждый. Размеры цеха А х В х Н = 40 х 30 х 9 м, все помещения двухэтажные высотой 4 м. Перечень ЭО учебных мастерских колледжа дан в таблице 1.1. Мощность электропотребления (Рэп) указана для одного электроприемника. Расположение основного ЭО УМ показано на плане (Приложение А)
![]()
Введение................................................................................................................. 3
1 Характеристика учебных мастерских колледжа............................................. 5
2 Классификация помещений по взрыво–, пожаро–, электробезопасности... 7
3 Расчетная часть................................................................................................. 10
3.1 Определение категории надежности ЭСН и выбор схемы ЭСН ........... 10
3.2 Расчет электрических нагрузок ................................................................. 13
3.3 Расчет компенсирующего устройства и выбор трансформаторов учебных мастерских колледжа ..................... 20
4 Выбор элементов ЭСН..................................................................................... 22
4.1 Выбор аппаратов защиты распределительных устройств ...................... 22
5 Выбор кабелей линии электроснабжения...................................................... 27
Заключение .......................................................................................................... 28
Список используемых источников.................................................................... 29
Приложение А – План расположения и электроснабжения
электрооборудования учебных мастерских колледжа .................................... 31
Приложение Б – Принципиальная однолинейная электрическая схема
электроснабжения и электрооборудования учебных мастерских колледжа 32
Приложение В – Таблица «Сводная ведомость нагрузок»............................. 33
Учебные мастерские (УМ) предназначены для практической подготовки обучаемых. Они являются неотъемлемой частью учебно-материальной базы предприятия. Кроме того, УМ можно использовать для выполнения несложных заказов силами учащихся нуждающимся организациям. В учебных мастерских предусматривается наличие производственных, учебных, служебных и бытовых помещений. ЭСН мастерских осуществляется от ТП, расположенной на расстоянии 50 м от здания. ТП подключена к подстанции глубокого ввода (ПГВ), установленной в 4 км от нее, напряжение 10 кВ. Потребители ЭЭ относятся к 2 и 3 категории надежности ЭСН. Учебноподготовительный процесс - односменный. Основные потребители ЭЭ - станки различного назначения. Грунт в районе цеха - супесь с температурой + 20 °С. Каркас здания и ТП сооружен из блоков-секций длиной 8 и 6 м каждый. Размеры цеха А х В х Н = 40 х 30 х 9 м, все помещения двухэтажные высотой 4 м. Перечень ЭО учебных мастерских колледжа дан в таблице 1.1. Мощность электропотребления (Рэп) указана для одного электроприемника. Расположение основного ЭО УМ показано на плане (Приложение А)


Характеристики курсовой работы
Предмет
Просмотров
12
Качество
Идеальное компьютерное
Размер
552,27 Kb
Список файлов
a1d30269-8bd5-455b-800b-888fe53857f0.pdf

Если нужен другой вариант работы или отдельная задача из любой работы, пишите в комментарии