Для студентов по предмету ЭлектроснабжениеЭлектроснабжение деревообрабатывающего цеха и ремонтной мастерскойЭлектроснабжение деревообрабатывающего цеха и ремонтной мастерской
5,0053326
2025-04-102025-04-10СтудИзба
Курсовая работа: Электроснабжение деревообрабатывающего цеха и ремонтной мастерской
Описание
Задачи:
1. определить расчетные электрические нагрузки потребителей объекта проектирования;
2. выбрать номинальную мощность трансформатора и тип ТП;
3. Определить электрические нагрузки по участкам и выбрать марки и сечение проводов 0,4 кВ
4. Выбрать аппаратуру управления и защиты 0,4 кВ.
5. Составить план расположения
Таблица 1. Исходные данные
Комната отдыха.
Тема проекта, задачи…………………………………………………………….
Исходные данные………………………………………………………………..
Схема цеха………………………………………………………………………
Расчет электрических нагрузок и выбор трансформатора…………….
Расчет электрических сетей. Выбор сечения проводов.
Расчет допустимых потерь напряжения………………………………………
Выбор электрических аппаратов ТП 10/0,4 кВ…………………………..
Схема однолинейная..............................................................................
Приложения…………………………………………………………………...
Выводы………………………………………………………………………….
Список используемой литературы…………………………………………....
1. определить расчетные электрические нагрузки потребителей объекта проектирования;
2. выбрать номинальную мощность трансформатора и тип ТП;
3. Определить электрические нагрузки по участкам и выбрать марки и сечение проводов 0,4 кВ
4. Выбрать аппаратуру управления и защиты 0,4 кВ.
5. Составить план расположения

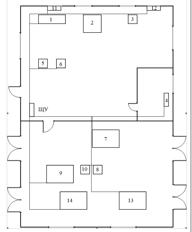
№ | Виды потребителей | P (кВт) | ШТ |
1 | Токарный станок по металлу | 10 | 1 |
2 | Фрезерный станок | 5,5 | 1 |
3 | Сварочный аппарат | 15 | 1 |
4 | Бойлер | 15 | 1 |
5 | Сверлильный станок | 3 | 1 |
6 | Наждачный станок | 1,5 | 1 |
7 | Пилорама | 15 | 1 |
8 | Двигатель транспортерной ленты | 3 | 1 |
9 | Станок многопильный | 15 | 1 |
10 | Двигатель транспортерной ленты | 3 | 1 |
11 | Вытяжка | 1 | 1 |
12 | Вытяжка | 1 | 1 |
13 | Пилорама | 15 | 1 |
14 | Станок многопильный | 15 | 1 |
15 | Освещение внутри цеха ДРЛ-250 | 0,250 | 8 |
Комната отдыха.
1 | Чайник | 2 | 1 |
2 | Холодильник | 0,4 | 1 |
3 | Телевизор | 0,4 | 1 |
4 | Микроволновка | 3 | 1 |
5 | Освещение | 0,100 | 2 |
Тема проекта, задачи…………………………………………………………….
Исходные данные………………………………………………………………..
Схема цеха………………………………………………………………………
Расчет электрических нагрузок и выбор трансформатора…………….
Расчет электрических сетей. Выбор сечения проводов.
Расчет допустимых потерь напряжения………………………………………
Выбор электрических аппаратов ТП 10/0,4 кВ…………………………..
Схема однолинейная..............................................................................
Приложения…………………………………………………………………...
Выводы………………………………………………………………………….
Список используемой литературы…………………………………………....
Характеристики курсовой работы
Предмет
Просмотров
4
Качество
Идеальное компьютерное
Размер
658,29 Kb
Список файлов
kursovaya-obrazec.docx

Если нужен другой вариант работы или отдельная задача из любой работы, пишите в комментарии