Для студентов НГТУ им. Р.Е. Алексеева по предмету ЭлектроснабжениеТехническая эксплуатация и обслуживания электрического и электромеханического оборудования гаражаТехническая эксплуатация и обслуживания электрического и электромеханического оборудования гаража
5,0053321
2025-04-042025-04-06СтудИзба
Курсовая работа: Техническая эксплуатация и обслуживания электрического и электромеханического оборудования гаража
Описание
Содержание курсового проекта:
Введение……………………………………………………………….…………4
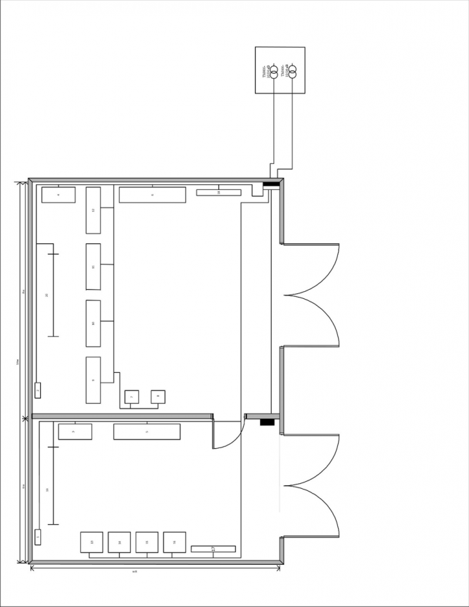
1.Краткая характеристика электрооборудования объекта…………………….6
1.1 Характеристика строительной части ……………………………………….6
1.2 Описание технологического процесса…………………………………….11
1.3 Описание электроустановки………………………………………….........14
2. Составление годового план-графика ТО и ремонта………………...........15
3. Расчет и выбор количества необходимого электротехнического
персонала для обслуживания электроустановки цеха………………………18
3.1. Выбор структуры отдела главного энергетика……………..…………..18
3.2. Планирование в потребности электротехнического персонала……….20
4.Составление технологических карт ремонта электромеханического
оборудования цеха…………………………………………………................22
Заключение……….…………………………………………….………..........28
Список использованной литературы……..………………………….….......29
Таблица 1 - Характеристика строительной части
Введение……………………………………………………………….…………4
1.Краткая характеристика электрооборудования объекта…………………….6
1.1 Характеристика строительной части ……………………………………….6
1.2 Описание технологического процесса…………………………………….11
1.3 Описание электроустановки………………………………………….........14
2. Составление годового план-графика ТО и ремонта………………...........15
3. Расчет и выбор количества необходимого электротехнического
персонала для обслуживания электроустановки цеха………………………18
3.1. Выбор структуры отдела главного энергетика……………..…………..18
3.2. Планирование в потребности электротехнического персонала……….20
4.Составление технологических карт ремонта электромеханического
оборудования цеха…………………………………………………................22
Заключение……….…………………………………………….………..........28
Список использованной литературы……..………………………….….......29
Таблица 1 - Характеристика строительной части
Наименование Помещения | Размер Помеще-ния АxBxH,м | Площадь Помещения S, м2 | Конструктивные элементы | Толщина пола | Примечание | ||||
Фундамент | Колоны | Несущие конструкции | |||||||
Пол | Стены | Перекрыт | |||||||
Гаражный бокс | 26 x 22 x 6 | 572 | Б | Б | ЖБ | СК | Б | 20 | |
Станочная площадка | 9 x 8 x 6 | 72 | Б | Б | ЖБ | СК | Б | 20 | |

№ | Наименование ЭО | Ном. мощность кВт |
1,2 | Канальный вентилятор ERA PROFIT 4 86-383 | 0,75 |
3,4 | Промышленный пылесос PATRIOT VC 330 755303330 | 1,5 |
5,6 | Компрессор КРАТОН AC-440-100-BDV | 9,5 |
7,8 | Мойка | 5 |
9,10 | Подъемник 4х стоечный Trommelberg TST 455C | 2,2 |
11,12 | Подъемник двухстоечный (220В) AE&T S4D-2E-220 | 3 |
13,14 | Наждачный станок WESTER TSL350C | 0,71 |
15,16 | Настольный сверлильно-фрезерный станок Weiss Machinery WMD16V | 1,1 |
17,18 | Кондиционер Mitsubishi Heavy Standard SRK20ZSPR-S/SRC20ZSPR-S | 2 |
19,20 | Кран-балка | 9,8 |
Характеристики курсовой работы
Предмет
Учебное заведение
Просмотров
4
Качество
Идеальное компьютерное
Размер
1,09 Mb
Список файлов
kursovaya_rabota_vardugin_s_v_itogovaya.docx

Если нужен другой вариант работы или отдельная задача из любой работы, пишите в комментарии