Для студентов МГТУ им. Н.Э.Баумана по предмету Детали машин (ДМ)ДМ № ЮВС 056 - Привод цепного траспортера, редуктор коническо-цилиндрическийДМ № ЮВС 056 - Привод цепного траспортера, редуктор коническо-цилиндрический
4,90547498
2021-04-222024-09-03СтудИзба
Курсовая работа ЮВС: ДМ № ЮВС 056 - Привод цепного траспортера, редуктор коническо-цилиндрический вариант 56
-64%
Описание
Чертеж PDF в формате A1
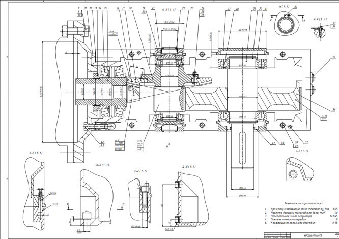
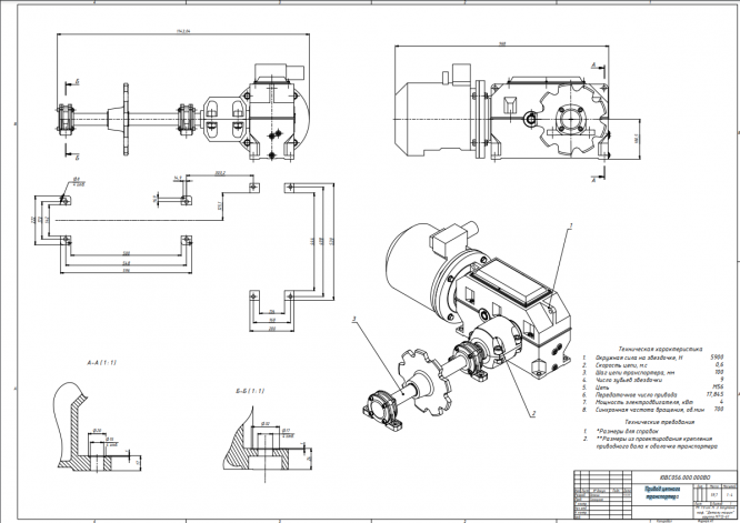
Курсовой проект вариант ЮВС 56 (Привод цепного траспортера, редуктор коническо-цилиндрический)Редуктор коническо-цилиндрический (быстроходная ступень – коническая передача с круговым зубом, тихоходная ступень – цилиндрическая прямозубая). Передача момента с тихоходного вала на приводной вал посредством цепной муфты. Передача момента с вала электродвигателя на быстроходный вал редуктора посредством соединения «вал в вал».




Характеристики курсовой работы
Предмет
Учебное заведение
Семестр
Номер задания
Вариант
Просмотров
221
Размер
2,13 Mb
Список файлов
Курсовой проект вариант ЮВС 56
1.PNG
Лист 1.PNG
Лист 1.pdf
Лист 2 - общий вид редуктор.pdf
Лист 3 -редуктор.pdf
Лист 4.pdf
Лист 5 - Вал приводный.pdf
Лист 5.PNG
РПЗ.pdf
Содержание.PNG

Друзья, спасибо за доверие! Если вам понравилась работа – поставьте 5⭐ и напишите отзыв. Это поможет другим студентам, а мне даст силы делать ещё больше качественных материалов для вас 🔥