Для студентов МГТУ им. Н.Э.Баумана по предмету Детали машин (ДМ)ДМ 1201 - Спроектировать индивидуальный привод, цилиндрический прямозубый горизонтальный редукторДМ 1201 - Спроектировать индивидуальный привод, цилиндрический прямозубый горизонтальный редуктор
4,90547143
2021-03-172024-09-03СтудИзба
Курсовая работа ДМ: ДМ 1201 - Спроектировать индивидуальный привод, цилиндрический прямозубый горизонтальный редуктор вариант 1201
-64%
Описание
Введение
Целью выполнения курсового проекта является спроектировать индивидуальный привод.
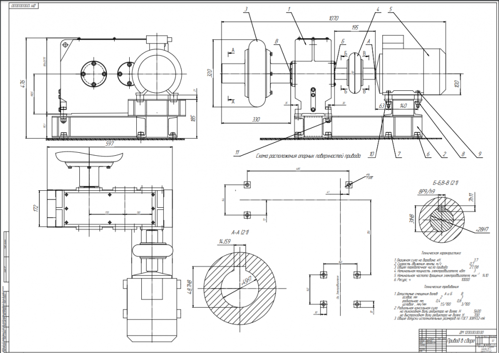
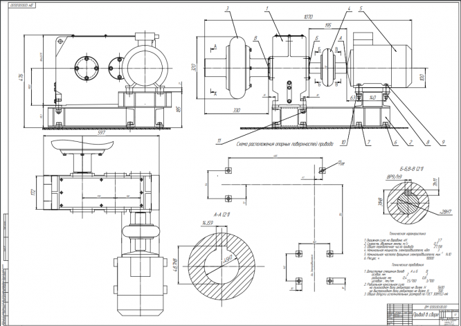
Составными частями привода являются цилиндрический прямозубый горизонтальный редуктор, 2 муфты, электродвигатель. Устройство привода следующее: вращающий момент передается с электродвигателя на упруго-компенсирующую муфту при помощи шпонки, далее на быстроходный вал редуктора; с выходного вала редуктора через муфту на дополнительно устанавливаемый приводной вал. Требуется выполнить необходимые расчеты, выбрать наилучшие параметры схемы и разработать конструкторскую документацию, предназначенную для изготовления привода: - чертеж общего вида редуктора (на стадии эскизного проекта); - сборочный чертеж редуктора (на стадии технического проекта); - рабочие чертежи деталей редуктора; - расчетно-пояснительную записку и спецификации;
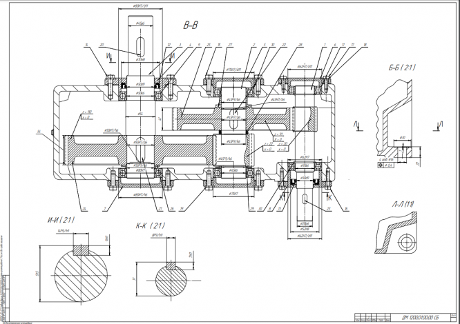
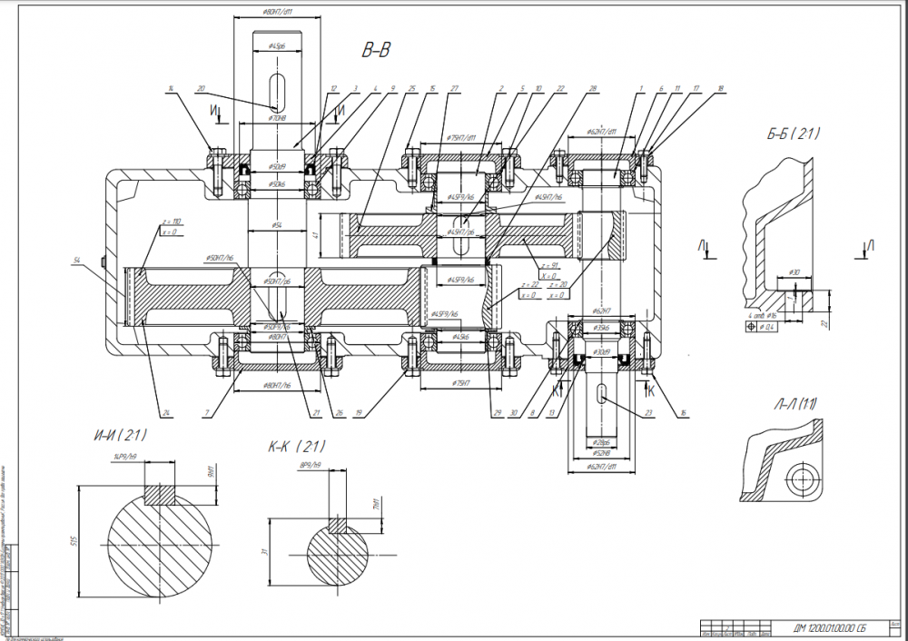
Передача вращения осуществляется посредством зубчатого прямозубого двухступенчатого горизонтального редуктора (развернутая схема) и асинхронного электродвигателя (исполнение IM 1082). Соединение устанавливаемого приводного вала и тихоходного вала редуктора осуществляется посредством муфты.
1.Краткое описание работы изделия и его назначение
Передача вращения осуществляется посредством зубчатого прямозубого двухступенчатого горизонтального редуктора (развернутая схема) и асинхронного электродвигателя (исполнение IM 1082). Соединение устанавливаемого приводного вала и тихоходного вала редуктора осуществляется посредством муфты. Технические требования: II типовой режим нагружения. Расчетный ресурс 10000 ч при надежности подшипников качения 90%, зубчатых передач 98%. Изготовление серийное – 100 штук в год.
![]()
Целью выполнения курсового проекта является спроектировать индивидуальный привод.
Составными частями привода являются цилиндрический прямозубый горизонтальный редуктор, 2 муфты, электродвигатель. Устройство привода следующее: вращающий момент передается с электродвигателя на упруго-компенсирующую муфту при помощи шпонки, далее на быстроходный вал редуктора; с выходного вала редуктора через муфту на дополнительно устанавливаемый приводной вал. Требуется выполнить необходимые расчеты, выбрать наилучшие параметры схемы и разработать конструкторскую документацию, предназначенную для изготовления привода: - чертеж общего вида редуктора (на стадии эскизного проекта); - сборочный чертеж редуктора (на стадии технического проекта); - рабочие чертежи деталей редуктора; - расчетно-пояснительную записку и спецификации;
Передача вращения осуществляется посредством зубчатого прямозубого двухступенчатого горизонтального редуктора (развернутая схема) и асинхронного электродвигателя (исполнение IM 1082). Соединение устанавливаемого приводного вала и тихоходного вала редуктора осуществляется посредством муфты.
1.Краткое описание работы изделия и его назначение
Передача вращения осуществляется посредством зубчатого прямозубого двухступенчатого горизонтального редуктора (развернутая схема) и асинхронного электродвигателя (исполнение IM 1082). Соединение устанавливаемого приводного вала и тихоходного вала редуктора осуществляется посредством муфты. Технические требования: II типовой режим нагружения. Расчетный ресурс 10000 ч при надежности подшипников качения 90%, зубчатых передач 98%. Изготовление серийное – 100 штук в год.





Характеристики курсовой работы
Предмет
Учебное заведение
Семестр
Номер задания
Вариант
Просмотров
198
Размер
7,81 Mb
Список файлов
ДМ 1201
1.PNG
Capture.PNG
Записка.pdf
Лист 1.dwg
Лист 1.pdf
Лист 2.PNG
Лист 2.dwg
Лист 2.pdf
Лист 3.dwg
Лист 3.pdf
Лист 4.dwg
Лист 4.pdf
Лист 5.PNG
Лист 5.dwg
Лист 5.pdf
Сертификат.pdf
сертификат 2.pdf

Друзья, спасибо за доверие! Если вам понравилась работа – поставьте 5⭐ и напишите отзыв. Это поможет другим студентам, а мне даст силы делать ещё больше качественных материалов для вас 🔥