ПОЛНЫЙ ВАРИАНТ 3 (955083), страница 10
Текст из файла (страница 10)
| Формат | Зона | Пози ция | Обозначение | Наименование | Количе ство | Примечание |
| А2 А3 А3 А4 А4 А4 А4 А4 А4 | 1 2 3 4 5 6 7 8 9 10 11 12 13 14 15 16 | МЧ00.31.00.00.СБ МЧ00.31.00.01 МЧ00.31.00.02 МЧ00.31.00.03 МЧ00.31.00.04 МЧ00.31.00.05 МЧ00.31.00.06 МЧ00.31.00.07 МЧ00.31.00.08 Кольцо Кольцо | Документация Сборочный чертеж Детали Кронштейн Корпус Ось Крышка Крышка Втулка Бандаж Планка Стандартные изделия Болт М4х12.58 ГОСТ 7798-70 Винт А.М5х12.58 ГОСТ 1491-80 Винт А.М5х16.58 ГОСТ 1491-80 Кольцо СГ 28-17-5 ГОСТ 6418-81 Кольцо СГ 32-21-5 ГОСТ 6418-81 Шарикоподшипник 205 ГОСТ 8338-75 Материалы Картон А1 ГОСТ 6659-83 Картон А1 ГОСТ 6659-83 | 1 1 1 1 1 1 1 1 2 8 6 1 1 2 |
Материал Деталей: Поз. 1,2 – СЧ 15 ГОСТ 1412-79,, Поз. 3,4,5 – Сталь 20 ГОСТ 1050-74, Поз 6 - БрО5Ц5С5 ГОСТ 613-79, Поз. 8 – Отливка 15Л-1 ГОСТ 977-25, Поз. 7 – Резина ГОСТ 270-75
Гидрозамок.
| Формат | Зона | Пози ция | Обозначение | Наименование | Количе ство | Примечание |
| А2 А3 А3 А3 А3 А4 А4 А4 А4 А4 | 1 2 3 4 5 6 7 8 9 10 | МЧ00.33.00.00.СБ МЧ00.33.00.01 МЧ00.33.00.02 МЧ00.33.00.03 МЧ00.33.00.04 МЧ00.33.00.05 МЧ00.33.00.06 МЧ00.33.00.07 МЧ00.33.00.08 МЧ00.33.00.09 | Документация Сборочный чертеж Детали Корпус Седло Штуцер Цилиндр Золотник Штуцер Клапан Пружина Штуцер Стандартные изделия Кожа 3 ГОСТ 20836-75 | 1 2 2 1 1 1 2 2 1 3 |
Гидрозамок представляет собой гидравлический управляемый обратный клапан, применяемый для запирания рабочих полостей гидроцилиндров.
Принцип работы гидрозамка следующий. Предположим, что правая магистраль гидрозамка связана с рабочей (поршневой) полостью гидроцилиндра, а левая – со штоковой полостью гидроцилиндра. Тогда масло под давлением идущее в поршневую полость через канал штуцера поз.9 сместит в корпусе поз.1 золотник поз.5 влево и откроет левый обратный клапан поз.7, через который масло из штоковой полости гидроцилиндра будет выходить через штуцер поз.6 на слив. Одновременно открывается правый обратный клапан поз.7, и масло через него поступает в поршневую полость гидроцилиндра. При прекращении жидкости в гидрозамок золотник возвратится в нейтральное положение, и оба обратных клапана под действием пружин поз.8 и давления масла со стороны поршневой и штоковой полостей гидроцилиндра закроются, фиксируя поршень гидроцилиндра в заданном положении.
Материал Деталей: Поз. 1 - СЧ 15 ГОСТ 1412-79, Поз. 3,4,5,6,7,9 – Сталь 20 ГОСТ 1050-74, Поз 2 - БрО5Ц5С5 ГОСТ 613-79, Поз. 8 – Сталь 65Г ГОСТ 1050-74
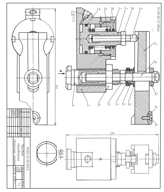
Прихват передвижной.
| Формат | Зона | Пози ция | Обозначение | Наименование | Количе ство | Примечание |
| А2 А3 А3 А3 А3 А4 А4 А4 А4 А4 А4 А4 А4 А4 А4 | 1 2 3 4 5 6 7 8 9 10 11 12 13 14 15 16 17 18 19 | МЧ00.02.00.00.СБ МЧ00.02.00.01 МЧ00.02.00.02 МЧ00.02.00.03 МЧ00.02.00.04 МЧ00.02.00.05 МЧ00.02.00.06 МЧ00.02.00.07 МЧ00.02.00.08 МЧ00.02.00.09 МЧ00.02.00.10 МЧ00.02.00.11 МЧ00.02.00.12 МЧ00.02.00.13 МЧ00.02.00.14 | Документация Сборочный чертеж Детали Корпус Поршень Крышка Болт Болт Винт Прихват Шайба Тарелка Шайба Пружина Пружина Шайба Гайка Стандартные изделия Винт А.М6х14.58 ГОСТ 1491-80 Гайка М12.5 ГОСТ 5915-70 Гайка М16.5 ГОСТ 5915-70 Кольцо СГ 24-17-5 ГОСТ 6418-81 Кольцо 040-045-30 ГОСТ 9833-73 | 1 1 1 1 1 1 1 1 1 1 1 1 1 1 1 1 1 1 1 |
Описание работы изделия.
Передвижной гидравлический прихват предназначен для зажима обрабатываемых деталей на станках. Его устанавливают на столе станка или базовой плите.
Прихват состоит из корпуса поз.1, закрепляемого в станочном пазу специальным болтом поз.5 и гайкой поз.14. Болт поз.5 соединен резьбой с регулируемым болтом поз.4, имеющим сферическую головку, в которую упирается шайба поз.13, прижимающая прихват поз.7. Прихват опирается на шайбу поз.10 и пружину поз.11. В полости корпуса расположен поршень поз.2. Масло в полость поступает под давлением через коническое резьбовое отверстие корпуса. В поршне на резьбе закрепляется регулируемый винт поз.6, передающий усилие прихвату, зажимающему обрабатываемую деталь. Прихват при необходимости можно поворачивать вокруг его продольной оси. В исходное положение поршень возвращает ся пружиной позю12, которая упирается в крышку поз.3. цилиндры дизеля.
Материал Деталей: Поз.1,7 – СЧ 15 ГОСТ 1412-79, Поз.11,12 – Сталь 65Г ГОСТ 1050-74, Поз. 2 – Сталь 45 ГОСТ 1050-74, Поз. 3..6,8..10,13,14 – Ст 5ГОСТ 380-71.
Клапан.
| Формат | Зона | Пози ция | Обозначение | Наименование | Количе ство | Прим. |
| А2 А3 А3 А4 А4 А3 А4 А4 А4 А4 | 1 2 3 4 5 6 7 8 9 10 11 12 13 14 15 | МЧ00.02.00.00.СБ МЧ00.02.00.01 МЧ00.02.00.02 МЧ00.02.00.03 МЧ00.02.00.04 МЧ00.02.00.05 МЧ00.02.00.06 МЧ00.02.00.07 МЧ00.02.00.08 МЧ00.02.00.09 | Документация Сборочный чертеж Детали Корпус Крышка Фланец Маховичок Шпидель Клапан Седло Гайка Пробка Стандартные изделия Гайка М8.5 ГОСТ 5915-70 Гайка М10.5 ГОСТ 5915-70 Шпилька М8х25.58 ГОСТ 22034-76 Материалы Картон А1 ГОСТ 9347-74 Картон А1 ГОСТ 9347-74 Войлок ПС 10 ГОСТ 6308-71 | 1 1 1 1 1 1 1 1 1 2 1 2 1 1 1 |
Клапан предназначен для изменения величины потока воды, проходящий по трубопроводу, а также для периодических отключений одной части трубопровода от другой.
Клапан состоит из корпуса поз.1 и крышки поз.2. Детали поз.5,6,8 являются запорным устройством. Изменением проходного отверстия между клапаном поз.6 и седлом поз.7 регулируется вращением маховичка поз.4. В качестве уплотнения между шпинделем поз.5, крышкой поз.2 и фланцем поз.3 применяют войлочные кольца поз.15, пропитанные смазочными веществами. По мере износа войлочные кольца поджимаются фланцем, для чего закручивают гайки поз.10. Стык крышки и корпуса уплотнен прокладкой поз.14. Пробка поз.9 предназначена для слива отстоя и очистки корпуса.
Материал Деталей: Поз.1..4 – СЧ 15 ГОСТ 1412-79, Поз.5..9 – Сталь 20 ГОСТ 1050-74.
Насос шестеренный.
| Формат | Зона | Пози ция | Обозначение | Наименование | Количе ство | Прим. |
| А2 А3 А3 А3 А3 А2 А4 А4 А4 | 1 2 3 4 5 6 7 8 9 10 11 12 13 | МЧ00.20.00.00.СБ МЧ00.20.00.01 МЧ00.20.00.02 МЧ00.20.00.03 МЧ00.20.00.04 МЧ00.20.00.05 МЧ00.20.00.06 МЧ00.20.00.07 МЧ00.20.00.08 | Документация Сборочный чертеж Детали Корпус Крышка Крышка Ведомое зубчатое колесо Z=13, m=5 Вал шестерня Z=13, m=5 Гайка круглая Втулка Втулка Стандартные изделия Шпилька М10х35.58 ГОСТ 22034-75 Гайка М10.5 ГОСТ 5915-70 Шайба 10.01.05 ГОСТ 11371-78 Штифт 8h8х36 ГОСТ 3128-70 Кольцо СГ 52-39-5 ГОСТ 6418-81 | 1 1 1 1 1 1 1 1 2 1 2 |
Шестеренный насос предназначен для перекачивания жидкости. Основными рабочими органами насоса являются два входящих в зацепление зубчатых колеса.
Верхний вал-шестерня поз.5 при помощи муфты (на чертеже не показана) соединен с валом электродвигателя. Крышки поз.2 и поз.3 соединяются с корпусом поз.1 двенадцатью шпильками поз.9 и гайками поз.10. В месте выхода из корпуса вала-шестерни поз.5 имеется уплотнительное устройство поз.13, препятствующее просачиванию жидкости через зазор между валом и втулкой поз.8. Уплотнение состоит из трех войлочных пропитанных маслом колец. Кольца прижимаются к поверхности вала при помощи втулки поз.7 и гайки поз.6.
Материал Деталей: Поз.1..3 – СЧ 15 ГОСТ 1412-79, Поз.4..6 – Сталь 45 ГОСТ 1050-74; деталей поз.7,8 - Сталь 45 ГОСТ 1050-74.
















