125296 (690440)
Текст из файла
Министерство образования и науки Украины
Сумской государственный университет
Технология машиностроения
Обязательное домашнее задание
по дисциплине:
«Проектирование станочных приспособлений»
Выполнил: Куманцев А.О.
№ зачетки 03010058
Студент гр. ТМ-31
Проверил: Кушниров П.В.
Сумы 2007
Содержание
Введение
1.Обоснование необходимости создания приспособления.
2. Уточнение цели технологической операции
2.1 Определение количественных и качественных результатов выполнения операции
2.1.1 Точность размеров
2.1.2 Точность формы
2.1.3 Точность расположения поверхностей
2.1.4 Степень шероховатости обрабатываемых поверхностей
2.2 Выяснение количественных и качественных данных о заготовке, поступающей на операцию
2.2.1 Точность размеров
2.2.2 Точность формы
2.2.3 Точность расположения поверхностей
2.2.4 Степень шероховатости
3. Определение условий, в которых будет изготавливаться и эксплуатироваться проектируемое приспособление
4. Составление перечня реализуемых функций
5.Разработка и обоснование схемы базирования
5.1 Выбор установочной базы
5.2 Выбор двойной опорной базы
6. Построение функциональной структуры и общей компоновки приспособления
7. Разработка и обоснование схемы закрепления
7.1 Анализ структуры полей уравновешивающей сферы
7.2 Расчет сил закрепления и основных параметров приспособления
7.3. Определение силы закрепления
8. Расчет детали на прочность
9. Точностной расчет приспособления
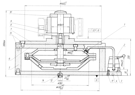
10.Описание устройства и принципа действия приспособления
Список литературы
Приложение А. Чертёж приспособления
Введение
Интенсификация производства в машиностроении неразрывно связана с техническим перевооружением и модернизацией производства на базе применения новейших достижений науки и техники. Техническое перевооружение, подготовка производства новых видов продукции машиностроения и модернизация средств производства неизбежно включают процессы проектирования средств технологического оснащения и их изготовления.
В общем объёме средств технологического оснащения примерно
50 % составляют станочные приспособления. Применение станочных приспособлений позволяет:
1) надежно базировать и закреплять обрабатываемую деталь с сохранением её жесткости в процессе обработки;
2) стабильно обеспечивать высокое качество обрабатываемых деталей при минимальной зависимости качества от квалификации рабочего;
3) повысить производительность и облегчить условия труда рабочего в результате механизации приспособлений;
4) расширить технологические возможности используемого оборудования.
Для эффективного использования станков и станочных приспособлений предъявляется ряд требований.
Для обеспечения высокой точности обработки заготовок приспособления должны быть выполнены с высокой точностью. Погрешности базирования и закрепления должны быть сведены к минимуму. Конструкция приспособления не должна быть наиболее податливым звеном системы станок-приспособление-инструмент - деталь, чтобы использовать полную мощность станка на черновых операциях и обеспечивать высокую точность на чистовых операциях. Приспособление должно обеспечивать хорошую инструментальную доступность, т.е. возможность подхода инструмента к как можно большему количеству поверхностей заготовки. Приспособления должны обеспечивать сокращение времени зажима-разжима заготовки. Для сокращения времени переналадки станков приспособления должны обеспечивать возможность их быстрой смены или переналадки.
Обязательное домашнее задание содержит в себе: пояснительную записку, чертеж общего вида приспособления, спецификацию, чертеж обрабатываемой детали. Документация соответствует стандартам ЕСКД.
1 Обоснование необходимости создания приспособления. Выбор
системы приспособления
Требуется спроектировать приспособление для обработки четырех отверстий
под М6 и отверстия
(операция 130).
В настоящее время заготовка обрабатывается на сверлильно-фрезерном-расточном станке с ЧПУ 6904ВМФ2 с использованием прихватов и кондуктора. Применение специализированного приспособления (ПР), позволит снизить трудоемкость обработки на данной операции, уменьшить штучное время, повысить стабильность точностных параметров операции.
2 Уточнение цели технологической операции
2.1 Определение количественных и качественных результатов
выполнения операции
2.1.1 Точность размеров
Точность обработки – это соответствие обработанных поверхностей требованиям чертежа, которые ограничены четырьмя факторами:
-
соблюдение размерной точности;
-
соблюдение требований шероховатости поверхности;
-
соблюдение допусков формы и взаимного расположения поверхностей;
-
соблюдение требуемой твёрдости поверхностей.
Требуемая точность поверхностей достигается благодаря использованию достаточного количества стадий обработки, грамотному подбору оборудования, режущего инструмента, жёсткому закреплению деталей. По точности все поверхности детали можно условно разделить на три группы: грубые, средней точности и точные.
На данной операции должны формироваться четыре отверстия
под М6 и отверстие
.
4 отверстия М6-7Н располагаются под углом 90
, что не указано на чертеже и на расстоянии 40
мм и 48
мм между собой. Эти размеры и допуски на них поставлены не верно. Согласно ГОСТ 25346-82 допуск на линейный размер 40 мм равен 390 мкм, что соответствует 13 квалитету точности. Также согласно ГОСТ 25346-82 допуск на линейный размер 48 мм равен 160 мкм, что соответствует 11 квалитету точности.
Шероховатость Ra под эти отверстия 3,2 мкм.
По ГОСТ 25346-82 для отв. М6-7Н Т=12 мкм.
Отверстие
расположено под углом 450 на расстоянии R=20,5 мм относительно центра поверхности
мм.
На чертеже указано отклонение
, что согласно системе предельных отклонений основных отверстий по ГОСТ 25346-82 в действительности отвечает ІТ 9, где Т=30 мкм.
Допуск на длину отв. М6-7Н на чертеже не указан. Берем его из технических требований по 14 квалитету из ГОСТ 25346-82. Для L=12 мм Т=430 мкм.
Допуск на длину отв.
на чертеже тоже не указан. Берем его из технических требований по 14 квалитету из ГОСТ 25346-82. Для L=8 мм Т=360 мкм.
2.1.2 Точность формы
Поскольку допуск цилиндричности и круглости не оговорен в технических требованиях и на чертеже, то он может быть установлен в пределах допуска на размер по ГОСТ 25346-82:
По ГОСТ 25346-82 имеем Т=8 мкм, что соответствует 7 степени точности.
2.1.3 Точность расположения поверхностей
На чертеже точность расположения обрабатываемых отверстий не оговорена, поэтому рассмотрим перпендикулярность осей данных отверстий к оси
(база В).
Для отверстия
под резьбу М6 имеем длину 12 мм, тогда
Т┴=0,6*Т12=0,6*8=4,8мкм
По ГОСТ 25346-81, что соответствует 6 степени точности.
Для отверстия
имеем длину 8 мм, тогда
Т┴=0,6*Т8=0,6*16=9,6мкм
По ГОСТ 25346-81, ято соответствует 8 степени точности.
2.1.4 Степень шероховатости обрабатываемых поверхностей
Из чертежа детали видно, что параметры шероховатости отверстия следующие:
М6-7Н- Ra=3,2 мкм.
- Ra=6,3 мкм
2.2 Выяснение количественных и качественных данных о заготовке, поступающей на операцию
На данную операцию заготовка поступает предварительно обработанными наружными и внутренними цилиндрическими поверхностями. Заготовка вполне жесткая, обрабатываемость ее удовлетворительная. Масса заготовки 1,8 кг. Материал сталь 38ХНЗМФА ГОСТ 4543-71. Имеются достаточно развитые поверхности, принимаемые за базовые, к которым можно отнести сквозное отверстие Ø45Н9(+0,062) и торцы. Уточним точностные параметры поверхностей которые могут быть базовыми.
2.2.1 Точность размеров
Диаметр отверстия Ø45 (+0,062), [ 1 ]. ТØ95 = 62 мкм. Длина отверстия меньше диаметра, что говорит о возможности использования его в качестве двойной опрной базы. Торцы Ø62/Ø45 являются развитыми, поэтому их можно использовать в качестве установочной базы.
2.2.2 Точность формы
Поскольку допуск цилиндричности и круглости не оговорен в технических требованиях и на чертеже, то он может быть установлен в пределах допуска на размер по ГОСТ 25346-82:
По ГОСТ 25346-82 имеем Т=8 мкм, что соответствует 7 степени точности.
Отклонение от плоскостности торца также не указывается на чертеже, принимаем его величину в пределах допуска на размер, что соответствует 14-й степени точности.
2.2.3 Точность расположения
На чертеже точность расположения обрабатываемых отверстий не оговорена, поэтому рассмотрим перпендикулярность осей данных отверстий к оси
(база В).
Для отверстия
под резьбу М6 имеем длину 12 мм, тогда
Т┴=0,6*Т12=0,6*8=4,8мкм
По ГОСТ 25346-81, что соответствует 6 степени точности.
Для отверстия
имеем длину 8 мм, тогда
Т┴=0,6*Т8=0,6*16=9,6мкм
По ГОСТ 25346-81, ято соответствует 8 степени точности.
2.2.4 Степень шероховатости
Из чертежа детали видно, что параметры шероховатости цилиндра и торца следующие: торца – Ra = 6,3 мкм; цилиндра Ra = 1,6 мкм. Это соответствует точностным требованиям к базовым поверхностям. В проектируемом приспособлении планируется обрабатывать заготовки с базовыми поверхностями
3 Определение условий, в которых будет изготавливаться и
эксплуатироваться проектируемое приспособление
Годовая программа выпуска определена в 400 шт. деталей. Такая программа с учетом трудоёмкости предполагает мелкосерийный тип производства. Поскольку такт выпуска детали при двухсменной работе равен 160 мин, то делаем заключение о низкой интенсивности использования приспособления. Заготовка будет обрабатываться на сверлильно-фрезерно-расточном станке с ЧПУ 6904ВМФ2.
Таблица 3.1 - Параметры станка сверлильно-фрезерно-расточного с ЧПУ 6904ВМФ2.
| Параметр | Значение |
| Размеры рабочей поверхности стола, мм | 500х400 |
| Расстояние от торца шпинделя до рабочей поверхости стола, мм | 65-555 |
| Наибольшая масса обрабатываемого изделия, кг | 250 |
| Наибольшее перемищение: 1) стола: - продольное - поперечное | 500 500 |
| Наибольший диаметр: - сверления в стали - растачивания | 18 125 |
| Частота вращения шпинделя, об/мин | 32-2000 |
| Подача: - шпинделя - стола | 2,5-2500 2,5-2500 |
| Скорость быстрого перемещения, мм/мин - стола - шпиндельной бабки | 5000 5000 |
| Мощность эллектродвигателя, кВт | 4,5 |
| Габаритные размеры: - длина - ширина - высота | 2790 2060 2000 |
| Масса, кг | 5082 |
4.Составление перечня реализуемых функций
-
Перемещение и предварительная ориентация заготовки.
-
Базирование заготовки.
-
Закрепление заготовки.
-
Базирование приспособления на станке.
-
Закрепление приспособления на станке.
-
Подвод и отвод энергоносителя.
-
Образование исходной силы для закрепления.
-
Управление энергоносителем.
-
Замена установочных (зажимных) элементов.
-
Объединение функциональных узлов (корпус).
-
Обработка 4 отверстий М6-7Н и ø5Н9.
-
Поворот и фиксация шпиндельного блока и холостые ходы.
-
Создание безопасных условий труда.
Исходя из условий реализации этих функций и требований к результатам их реализации, разработчик осуществляет поиск прототипов из накопленного фонда технических решений. Предпочтение следует отдавать апробированным практикой стандартным техническим носителям функций. Разработка новых конструкций функциональных узлов требует специального обоснования.
5 Разработка и обоснование схемы базирования
Характеристики
Тип файла документ
Документы такого типа открываются такими программами, как Microsoft Office Word на компьютерах Windows, Apple Pages на компьютерах Mac, Open Office - бесплатная альтернатива на различных платформах, в том числе Linux. Наиболее простым и современным решением будут Google документы, так как открываются онлайн без скачивания прямо в браузере на любой платформе. Существуют российские качественные аналоги, например от Яндекса.
Будьте внимательны на мобильных устройствах, так как там используются упрощённый функционал даже в официальном приложении от Microsoft, поэтому для просмотра скачивайте PDF-версию. А если нужно редактировать файл, то используйте оригинальный файл.
Файлы такого типа обычно разбиты на страницы, а текст может быть форматированным (жирный, курсив, выбор шрифта, таблицы и т.п.), а также в него можно добавлять изображения. Формат идеально подходит для рефератов, докладов и РПЗ курсовых проектов, которые необходимо распечатать. Кстати перед печатью также сохраняйте файл в PDF, так как принтер может начудить со шрифтами.
















