123080 (689354), страница 2
Текст из файла (страница 2)
Определяем наибольшие зазоры и натяги:
Smax = Dmax - dmin = 50,062 – 50,002 = 0,060 мм
Nmax = dmax – Dmin = 50.018 – 50 = 0.018 мм
Построим схему расположения полей допусков:
Рисунок 2.1.3 – Схема расположения полей допусков посадки
Выберем посадку для соединения «ж». Для легкости установления стаканов в корпусных деталях желательно применение посадок с зазором. Но тогда возможно их смещение в пределах зазоров, что вызывает изменение положения оси вращения вала и увеличение концентрации нагрузки. Поэтому в подобных соединениях зазоры нежелательны. В связи с этим в [4,с.95] рекомендуется применять следующие посадки для стаканов нерегулируемых в осевом направлении: Н7/к6; Н7/м6. Принимаем посадку Н7/к6.
Посадка
Определяем предельные размеры:
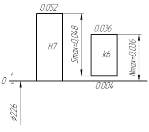
Dmax = D+ES = 226 + 0.052 = 226.052 мм
Dmin = D+EI = 226 + 0 = 226 мм
dmax = d + es = 226 + 0.036 = 226.036 мм
dmin = d + ei = 226 + 0.004 = 226.004 мм
Определяем наибольшие зазоры и натяги:
Smax = Dmax - dmin = 226,052 – 226,004 = 0,048 мм
Nmax = dmax – Dmin = 226,036 – 226 = 0,036 мм
Построим схему расположения допусков
Рисунок 2.1.4 – Схема расположения полей допусков соединения
2.2 Расчет и выбор посадок для подвижного соединения
Задание: по заданным исходным данным расчитать и подобрать посадку для подвижного соединения. В расчетах учесть влияние шероховатостей с описанием и необходимыми чертежами.
Исходные данные:
– номинальный диаметр соединения, м;
– длина соединения, м;
ω = 80 рад/с – угловая скорость;
η= 0,04 Па
c – абсолютная вязкость места при рабочей температуре;
g =
5 Па – среднее удельное давление в подшипнике;
RZD = 5.0 – шероховатость поверхности отверстия;
Rzd = 4.0 – шероховатость поверхности вала.
Характер и условие работы подвижных соединений разнообразны. Например, соединение шейка колесного вала – вкладыш: поршень-гильза.
Для основных типов подвижных соединений методика расчета зазора различна, поэтому для наиболее ответственных подвижных соединений машин и механизмов систему посадок выбирают на основе расчетов.
Рисунок 2.2.1 – Положение вала в соединении вал-отверстие в состоянии покоя и при вращении.
Как показано на рисунке 2.2.1 в состоянии покоя под действием силы тяжести вал находится в крайнем нижнем положении. При вращении силы трения увлекают смазку в узкую клинообразнйю щель между валами и отверстием. Под действием возникшего в клине давления при определенном соотношении размеров соединения, частоты вращения, вязкости смазки и давления, вал как бы выплывает опираясь на масляной клин и несколько смещается в сторону вращения.
Известно, что соотношение между величинами h и S в соединениях конечной длины вращается зависимостью [ 1, c. 206
66]
hS = (0.52
ωη/g)
ℓ/(dn + ℓ ). (2.1)
Где h- толщина масляного слоя в месте наибольшего сближения поверхностей валов и отверстия в рабочем состоянии, м ;
S – зазор между валом и отверстием в состоянии покоя, м ;
dn – полный диаметр соединения, м;
ω – угловая скорость, рад/с
η – абсолютная вязкость смазочного материала при рабочей температуре, Па
с;
g – среднее удельное давление в подшипнике, Па.
hS = (0.52
(0,05)2 80
0,04/6
105 )
ℓ/(0,05 + ℓ ) = 3081 мкм2
Также известно, что если при установившемся движении h = 0,25S, то коэффициент трения получается наименьшим, следовательно, и тепловой режим работы соединения будет наилучшим. Зная это, определим выгодный зазор по формуле [ 1, c. 207
67]
Sнаив. =
(2.2)
где Sнаив. – наивысший зазор, мкм;
h- толщина масляного слоя в месте наибольшего сближения поверхностей вала и отверстия в рабочем состоянии, м ;
Sнаив. =
= 111мкм
При расчете и выборе подвижных посадок, необходимо учитывать, что в процессе работы изнашиваются поверхности вала и отверстия., в результате чего зазор увеличивается.
При определенном темпе нарастания зазора и постоянном предельно допустимом зазоре долговечность соединения может быть увеличена за счет уменьшения начального зазора Sнач. Поэтому целесообразно первоначальный зазор уменьшить на сумму высот шероховатостей вала и отверстия, что обеспечит больший технический ресурс сопряжения. Учитывая, что в процессе приработки высота шероховатостей уменьшится на 0,7, т.к. считается, что в процессе приработки вследствие износа стираются выступы шероховатости вала и втулки на величину 0,7 ℓ7, первоначальный расчетный зазор, по которому следует выбирать посадку можно определить из выражения [ 1, c. 208
68].
Sрасч. = Sнач.- 1,4 (RZD + RZd ), (2.3)
где Sрасч. – расчетный зазор, мкм
Sрасч. = 111-1,4
(5 + 4) = 98,4 мкм.
По таблице [ 1, c. 353, п.VIII ] подбираем посадку, удовлетворяющую условию: Sср.ст.
Sрасч. (2.4)
где Sср.ст.
– средний зазор выбранной посадки, мкм;
Средний зазор определяется по формуле:
Sср.ст. = (Smax + Smin)/2 (2.5)
где Smax – максимальный зазор выбраной посадки, мкм;
Smin - минимальный зазор выбраной посадки, мкм;
Такому условию отвечает посадка
50Н8/
у которой Smax = 128 мкм; Smin = 50 мкм; Sср.ст. = 89 мкм.
Выполним проверку правильности выбора посадки по наименьшей толщине масляного слоя [ 1, c. 208
69]
hmin = hS/(Smax+1.4(RZD + RZd)) (2.6)
где hmin – наименьшая толщина масляного слоя, мкм.
hmin =
мкм.
Чтобы избежать сухого трения, наименьшая толщина масляного слоя должна быть больше суммы высот шероховатостей вала и отверстия [ 1, c. 208
70].
hmin
RZD + RZd (2.7)
Условие выдерживается т.к. 21,9
, следовательно посадка выбрана правильно.
Принамаем посадку
50Н8/
По [ 2 c. 411 т 24,4] определяем предельные отклонения
Производим расчет данной посадки:
Предельные отклонения для отверстия:
ES = 0.039 мм
EI = 0 мм
Допуск для отверстия: То = 0,039 мм
Предельные отклонения для вала:
еs = -0.050 мм
ei = -0.089 мм
Допуск для вала: Td = 0.039 мм
Вычислим предельные размеры отверстия и вала
Dmax = D + ES = 50 + 0.039 = 50.039 мм
Dmin = D + EI = 50 + 0 = 50 мм
dmax = d + es = 50 + (-0.050) = 49.950 мм
dmin = d + ei = 50 + (-0.0.89) = 49.911 мм
Определим наибольший и наименьший зазоры:
Smax = Dmax - dmin = 50.039 – 49.911 = 0.128 мм
Smin = Dmin - dmax = 50 – 49.950 = 0.050 мм
Рисунок 2.2.2 – Схема расположения полей допусков посадки
2.3 Выбор средств измерения
Задание: начертить рабочий чертеж детали, выбрать средства измерения для двух, трех основных размеров детали.
Исходные данные: начертить рабочий чертеж вала, выбрать средство измерения для размера вала под подшипники и внутреннего размера барабана.
Применение конкретных средств измерения зависит от многих факторов, масштаба производства, конструкции, материала деталей и точности изготовления.
Необходимо учитывать следующие метрологические показатели: пределы измерения прибора, приделы измерения шкалы прибора, точность прибора, предельные погрешности прибора
Учитывая материал детали, ее шероховатость поверхности. Эти факторы накладывают ограничения на измерительное усилие средств. При выборе средств измерения необходимо учитывать размеры, массу, конфигурацию детали, а также физическую возможность произвести измерение данного размера выбранным инструментом. Когда все эти факторы будут учтены, из возможных для использования средств измерения выбираются также, погрешность которых обеспечивает заданную точность изготовления.
При выборе средств измерения необходимо обязательно выполнить условие:
где
- допускаемая погрешность измерения для контроля размера, принимается по ГОСТ 8.051-81
- предельная погрешность средств измерения
Выбор средств измерения производится по методическим указаниям «Выбор универсальных средств измерения линейных размеров до 500 мм» (По применению ГОСТ 8.051-81) РД 50-98-86 М.: издательство стандартов, 1987 г.
Выбираем измерительный инструмент на следующие размеры:
А) Шейка вала под подшипник
Б) посадочное место под внешнее кольцо подшипника
Выбираем измерительный инструмент для контроля размера шейки вала под подшипник
По методическим указаниям определяем, что для этого размера б=0,005 мм, Т=0,016 мм. Этот размер можно измерить инструментами, указаннымив пунктах 4б; 5г;6б.
Пункт 4б – микрометры гладкие с точностью 0,01 мм. При работе находится в стойке или обеспечивается надежная изоляция от тепла рук:
Пункт 5г – скоба индикаторная (СИ) с точностью измерения 0,011 мм. При работе находится в стойке или обеспечивается надежная изоляция от тепла рук. Предельная погрешность измерения составляет 0,005 мм.
















