4938 (600213)
Текст из файла
Министерство Российской Федерации
по делам гражданской обороны, чрезвычайным ситуациям
и ликвидации последствий стихийных бедствий
Ивановский институт Государственной противопожарной службы
Кафедра управления в Государственной противопожарной службы
Курсовая работа
по учебной дисциплине: «Государственный пожарный надзор»
на тему: «Определение наличия угрозы людям и чужому имуществу в случае пожара »
Иваново 2009 г.
Содержание
1. Исходные данные
2. Определение наличия угрозы людям в помещении в случае пожара
2.1 Определение расчётного времени эвакуации людей
2.2 Определение необходимого времени эвакуации людей
3. Определение наличия угрозы чужому имуществу в случае пожара
3.1 Расчёт температурного режима при свободно развивающемся пожаре
3.1.1 Определение вида пожара в помещении
3.1.2 Расчёт среднеобъёмной температуры в помещении
3.2 Определение возможности распространения пожара и оценка устойчивости строительных конструкций здания
4. Предварительное планирование боевых действий членов добровольных противопожарных формирований по тушению пожара первичными средствами пожаротушения в помещении
4.1 Определение резерва времени для работы со средствами пожаротушения
4.2 Определение площади зоны риска
4.3 Выбор и определение необходимого количества средств пожаротушения
4.3.1 Выбор и определение необходимого количества огнетушителей для тушения пожара
4.3.2 Выбор и определение необходимого количества пожарных кранов для тушения пожара
4.4 Определение количества и порядка действий членов добровольных противопожарных формирований при тушении пожара
5. Графическая часть
Выводы
Литература
1. Исходные данные
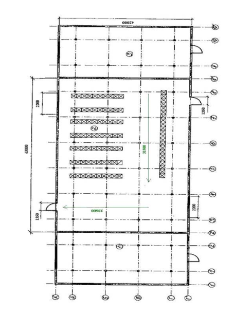
Складской корпус представляет собой одноэтажное здание, разделённое перегородками на три помещения. Схема складского корпуса представлена на рис. 1.1. Необходимые расчёты и выводы проводятся для складского помещения №2, в котором хранятся материальные ценности на стеллажах. Люди в помещении находятся на нулевой отметке. Расположение пола в помещении – горизонтальное. Помещение оборудовано внутренним противопожарным водопроводом.
Характеристика помещения
– размеры помещения в плане: 75×50×5,7 м;
– вид пожарной нагрузки: органическое стекло;
– количество пожарной нагрузки: 12300 кг;
– ширина оконных проёмов b1: 2,2 м;
– ширина оконных проёмов b2: 2,2 м;
– высота оконных проёмов: 3,5 м;
– количество людей в помещении: 16 чел.;
Характеристика путей эвакуации
– ширина дверных проёмов а: 1,8 м;
– высота дверных проёмов: 2,5 м;
– длина первого участка эвакуационного пути l1: 0,65·А
– ширина первого участка эвакуационного пути δ1: 1,5 м;
– длина второго участка эвакуационного пути l2: 0,75·L
– ширина первого участка эвакуационного пути δ2: 1,2 м;
Характеристика строительных конструкций
– тип перегородки: С-115 (ГКЛ);
– вид/ толщина огнезащитного покрытия ферм: САЭ – 5Б/1;
– вид/ толщина огнезащитного покрытия колонн: без огнезащиты;
Характеристика средств пожаротушения
– длина рукава пожарного крана: 10 м;
– диаметр спрыска пожарного ствола ПК: 19 мм;
– диаметр пожарного крана: 50 мм;
– напор у пожарного крана: 10,4 м;
Схема помещения
2. Определение наличия угрозы людям в помещении в случае пожара
2.1 Определение расчётного времени эвакуации людей
Расчётное время эвакуации людей из помещений и зданий устанавливается по расчёту времени движения одного или нескольких людских потоков через эвакуационные выходы от наиболее удалённых мест размещения людей.
Определение расчётного времени эвакуации проводим в соответствии с методикой, изложенной в п. 2.4. приложения 2 ГОСТ 12.1.004–91 «Пожарная безопасность. Общие требования».
При расчёте весь путь движения людского потока разбиваем на три участка с длиной l1; l2; l3 и шириной δ1; δ2; δ3 соответственно. Конечным, 3-м участком является эвакуационный выход из помещения. Длина пути в дверном проёме, равная l3, принимается равной 0,5 м.
Расчётное время эвакуации людей tр следует определять как сумму времени движения людского потока по заданным участкам пути:
(1),
где t1, t2, t3 – время движения людского потока на первом, втором, третьем участках соответственно;
tнэ – интервал времени от возникновения пожара до начала эвакуации людей, принимаем tнэ=0,5 мин., как для здания без системы оповещения.
Определяем время движения людского потока по первому участку пути:
(2),
где l1 – длина первого участка пути;
v1 – скорость движения людского потока по горизонтальному пути на первом участке. Значение v1 определяем в зависимости от плотности людского потока D1 на первом участке по табл. 2 прил. 2 ГОСТ 12.1.004–91 «Пожарная безопасность. Общие требования».
Определяем плотность людского потока D1 на первом участке:
(3),
где N1 – число людей на первом участке, чел.;
f – средняя площадь горизонтальной проекции человека. Для взрослого человека в зимней одежде f=0,125 м2;
δ1 – ширина первого участка пути, м.
По табл. 2 прил. 2 ГОСТ 12.1.004–91 «Пожарная безопасность. Общие требования» определяем: для D1=0,029 (м2/м2) v1=100 (м/мин).
Скорость vi движения людского потока на участках пути, следующих после первого, принимаем по табл. 2 прил. 2 ГОСТ 12.1.004–91 «Пожарная безопасность. Общие требования» в зависимости от значения интенсивности движения людского потока qi по каждому из этих участков.
Для 1-го участка пути:
Для 2-го участка пути:
(4),
По табл. 2 прил. 2 ГОСТ 12.1.004–91 «Пожарная безопасность. Общие требования» определяем: для q2=1,58 (м/мин) v2=100 (м/мин).
По формуле (2):
.
Для 3-го участка пути:
(5),
По табл. 2 прил. 2 ГОСТ 12.1.004–91 «Пожарная безопасность. Общие требования» определяем: для q3=1,05 (м/мин) v3=100 (м/мин).
По формуле (2):
.
По формуле (1):
.
Таким образом, расчётное время эвакуации людей из помещения склада составляет 0,79 (мин).
2.2 Определение необходимого времени эвакуации людей
Необходимое время эвакуации рассчитывается как произведение критической для человека продолжительности пожара на коэффициент безопасности. Предполагается, что каждый опасный фактор воздействует на человека независимо от других.
Расчёт необходимого времени эвакуации проводится по методике, изложенной в п. 2.5. приложения 2 ГОСТ 12.1.004–91 «Пожарная безопасность. Общие требования».
Рассчитываем значения критической продолжительности пожара:
– по повышенной температуре:
(6),
где t0 – начальная температура воздуха в помещении, t0=37ºС;
n – показатель степени, учитывающий изменение массы выгорающего материала во времени, n=3;
В-размерный комплекс, зависящий от теплоты сгорания материала и свободного объёма помещения,
(7),
где Ср – удельная изобарная теплоёмкость газа, Ср=0,001068 (МДж/кг/К);
φ – коэффициент теплопотерь, φ=0,6;
η – коэффициент полноты горения, η=0,95;
Q – низшая теплота сгорания материала, по прил. 3 ист. [7] Q=26,4 МДж/кг;
V – свободный объём помещения. V= 80% от (75×50×5,7)=17100 (м3);
;
А – размерный параметр, учитывающий удельную массовую скорость выгорания горючего материала и площадь пожара, кг/сn;
(8),
ν – линейная скорость распространения пламени, м/с; по прил. 3 ист. [7] для данной горючей нагрузки ν=0,008 м/с;
ψF – удельная массовая скорость выгорания, кг/м2с. по прил. 3 ист. [7] для данной горючей нагрузки ψF=0,0041 кг/м2с;
кг/м2с;
z – безразмерный параметр, учитывающий неравномерность распределения ОФП по высоте помещения.
(9),
где h – высота рабочей зоны, м;
Н – высота помещения, м. Н=5,7 м;
(10),
где hпл – высота площадки, на которой находятся люди. hпл=0 м;
δ – разность высот пола. Δ=0 м.;
;
По формуле (6):
– по потере видимости:
(11),
где а – коэффициент отражения предметов на путях эвакуации; При отсутствии специальных требований значение а принимается равным 0,3;
Е – начальная освещенность, лк. При отсутствии специальных требований значение Е принимается ранным 50 лк.;
lпр – предельная дальность видимости в дыму, м. При отсутствии специальных требований значение lпр принимается равным 20 м.;
Dm – дымообразующая способность горящего материала, Нп м2/кг. По прил. 3 ист. [7] для данной горючей нагрузки Dm= 78Нп м2/кг;
По формуле (11):
сек
– по пониженному содержанию кислорода:
(12),
где LО2 – удельный расход кислорода, кг/кг. По прил. 3 ист. [7] для данной горючей нагрузки LО2=2,09 кг/кг;
По формуле (12):
Т.к. под знаком логарифма получается отрицательное число, то данный ОФП не представляет опасности.
– по предельно допустимому содержанию СО2 в помещении:
(13),
где XСО2 – предельно допустимое содержание CO2 в помещении, кг/м3. XСО2=0,11 кг/м2;
LСО2 – удельный выход CO2 при сгорании 1 кг пожарной нагрузки. По прил. 3 ист. [7] для данной горючей нагрузки LСО2=1.795 кг/кг;
По формуле (13):
Т.к. под знаком логарифма получается отрицательное число, то данный ОФП не представляет опасности.
– по предельно допустимому содержанию СО в помещении:
(14),
где XСО – предельно допустимое содержание CO в помещении, кг/м2. XСО=1,16·10-3 кг/м3;
LСО – удельный выход CO при сгорании 1 кг пожарной нагрузки. По прил. 3 ист. [7] для данной горючей нагрузки LСО=0,1266 кг/кг;
По формуле (14):
Т.к. под знаком логарифма получается отрицательное число, то данный ОФП не представляет опасности.
Из полученных в результате расчётов значений критической продолжительности пожара выбираем минимальное:
(15),
Таким образом, потеря видимости в помещении наступает через 288 сек после начала пожара.
Необходимое время эвакуации людей из помещения рассчитываем по формуле:
(16),
Характеристики
Тип файла документ
Документы такого типа открываются такими программами, как Microsoft Office Word на компьютерах Windows, Apple Pages на компьютерах Mac, Open Office - бесплатная альтернатива на различных платформах, в том числе Linux. Наиболее простым и современным решением будут Google документы, так как открываются онлайн без скачивания прямо в браузере на любой платформе. Существуют российские качественные аналоги, например от Яндекса.
Будьте внимательны на мобильных устройствах, так как там используются упрощённый функционал даже в официальном приложении от Microsoft, поэтому для просмотра скачивайте PDF-версию. А если нужно редактировать файл, то используйте оригинальный файл.
Файлы такого типа обычно разбиты на страницы, а текст может быть форматированным (жирный, курсив, выбор шрифта, таблицы и т.п.), а также в него можно добавлять изображения. Формат идеально подходит для рефератов, докладов и РПЗ курсовых проектов, которые необходимо распечатать. Кстати перед печатью также сохраняйте файл в PDF, так как принтер может начудить со шрифтами.
















