150668 (594573), страница 6
Текст из файла (страница 6)
Для питания трансформаторов цеховой КТП от РП – 10 выбираем два кабеля марки ААБ, прокладываемые в траншее [2]
Выбор кабелей производим по четырём условиям:
а) по электрической прочности Uн.каб. Uн.уст.
Uн.каб. = 10 кВ = Uн.уст. = 10 кВ
б) по нагреву в аварийном режиме Iдоп. Iав.
Ток в аварийном режиме Iав., А:
Iав. = 1,3
= 1,3
= 75 А
Iдоп. = 75 А = Iав. = 75 А
Принимаем кабель ААБ‑10 1 (3 16), Iдоп. = 75 А
в) по экономической плотности тока S Sэк.
Экономически целесообразное сечение, мм2 определяют по формуле:
Sэк. =
, (51)
где jэк. – экономическая плотность тока, А/мм2. jэк = 1,4, Тм.а. = 4000 ч [2];
Iраб. – расчётный ток линии, А.
Iраб. =
=
= 57,8 А
Sэк =
= 41,29 мм2
S = 50 мм2 Sэк. = 41,29 мм2
Принимаем кабель ААБ‑10 1 (3 50), Iдоп. = 140 А
г) по термической устойчивости к токам короткого замыкания S Sмин.
Минимальное сечение кабеля Sмин., мм2
Sмин. = I
, (52)
где С – коэффициент, соответствующий разности выделенной теплоты в проводнике после и до короткого замыкания. С = 85; [2]
I – действующее значение тока короткого замыкания, А. I = 7,94 кА;
tф. – фиктивное время протекания тока короткого замыкания, с;
tф. = tф.п. + tф.а. (53)
где tф.п. – фиктивное время периодической составляющей Iкз, с;
tф.а. – фиктивное время апериодической составляющей Iкз, с.
Величину tф.п. находят по кривым зависимости: [2]
tф.п. = (»; t)
» =
, (54)
где I» . – сверхпереходное значение тока короткого замыкания, А.
I» = 7,94 кА;
I – действующее значение тока короткого замыкания, А. I = 7,94 кА;
» =
= 1
t – действительное время действия токов короткого замыкания
t = tзащ. + tоткл., (55)
где tзащ. – время срабатывания защиты, с. tзащ. = 0,15 с;
tоткл. – время отключения выключателя, с. tоткл. = 0,09 с.
t = 0,15 + 0,09 = 0,24 с
tфп = 0,24 с [2]
Время апериодической составляющей Iкз равно:
tф.а. = 0,05 2 (56)
tф.а. = 0,05 1,2 = 0,05 с
tф. = 0,24 + 0,05 = 0,29 с
Sмин. = 7940
= 47,6 мм2
S = 50 мм2 47,6 мм2
По термической устойчивости выбираем кабель ААБ‑10 1 (3 50),
Iдоп = 140 А
Окончательно исходя из всех условий проходит кабель ААБ‑10 1 (3 50), Iдоп = 140 А
1.11 Сведения по управлению, релейной защите автоматике и измерению электроэнергии
Различают следующие виды управления: дистанционное, местное и автоматическое.
-
Дистанционное управление – это управление на расстоянии нескольких сот метров, производится оператором, подающим команду с поста или щита управления путем замыкания специальным ключем цепи управления приводом выключателя, разъединителя или двигателя.
-
Местное управление – это управление приводом выключателя, разъединителя и другой аппаратуры непосредственно на месте.
-
Автоматическое управление – его используют в системе электроснабжения предприятий с большой потребляемой мощностью. Автоматическое управление осуществляется с помощью вычислительных машин управления ВМУ. Информация, поступающая в ВМУ, обрабатывается и используется для отключения и включения источников питания, регулирования нагрузок отдельных потребителей предприятия и выдачи о них соответствующих данных (мощность, напряжение и так далее), автоматической регистрации основных параметров системы электроснабжения, для предупреждения об аварийных режимах.
Общие сведения о релейной защите
Для непрерывного контроля за состоянием и режимом работы всех элементов системы электроснабжения на промышленных предприятиях применяется релейная защита, которая является основным видом электрической автоматики. Релейной защитой называют специальные защитные устройства
Основные условия надёжной работы релейной защиты следующие:
-
релейная защита должна обладать селективностью, то есть отключать только повреждённый участок;
-
релейная защита должна обладать достаточной чувствительностью ко всем видам повреждений;
-
релейная защита должна быть выполнена по наиболее простой схеме с наименьшим числом аппаратов и обладать достаточной надёжностью;
-
релейная защита должна иметь необходимую сигнализацию неисправностей в цепях питающих аппаратов релейной защиты;
-
релейная защита должна быть быстродействующей, т.е. повреждённый участок должен быть отключён как можно быстрее.
В схеме электроснабжения завода предусматриваются следующие виды защиты: а) силовых трансформаторах ГПП:
-
продольно – дифференциальная защита с действием на отключение элегазового выключателя и на отключение выключателей вводов 10 кВ;
-
МТЗ от внешних коротких замыканий с двумя выдержками времени;
-
газовая защита от повреждений трансформатора, действующая на подачу предупредительного сигнала (первая ступень) и на отключение элегазового выключателя и отключение вводов 10 кВ (вторая ступень);
-
МТЗ от перегрузок с действием на сигнал;
-
температурная сигнализация;
б) на секционном выключателе 10 кВ:
-
МТЗ с ограниченно – зависимой выдержкой времени, с ускорением при АВР и токовая отсечка;
-
защита от однофазного короткого замыкания на землю с действием на сигнал.
в) на силовых трансформаторах:
-
газовая защита от повышения давления внутри бака (мановакуумметр);
-
защита от однофазного КЗ с действием на отключение вводного автомата 0,4 кВ;
-
температурная сигнализация (термосигнализатор)
Аппараты релейной защиты – это специальные устройства (реле, контакторы, автоматы и др.), обеспечивающие автоматическое отключение поврежденной части электроустановки или сети. Если повреждение не представляет для установки непосредственной опасности, то релейная защита приводит в действие сигнальные устройства. Для обеспечения надежной работы релейная защита должна иметь избирательность (селективность), то есть отключать высоковольтными выключателями или автоматами только поврежденный участок установки. Время срабатывания защиты характеризуется выдержкой времени, обеспечивающей избирательность действия защиты. Выдержка времени определяется временем действия выключателя поврежденного участка и временем срабатывания защиты.
Обладать достаточно высокой чувствительностью по всем видам повреждений на защищаемой линии и на линиях, питаемых от нее, а так же к изменившимся в связи с этим параметрам нормального режима работы (току, напряжению и др.), что оценивается коэффициентом чувствительности;
Быть выполнена по наиболее простой схеме с наименьшим числом аппаратов.
Реле применяемые в релейной защите, классифицируются по следующим признакам:
-
по принципу действия – электромагнитные, индукционные, электродинамические, тепловые, электронные и др.;
-
по принципу действия – тока, напряжения, мощности, тепловые и др.;
-
по способу воздействия на отключение – прямого и косвенного действия.
Предельно допустимые нагрузки питающих элементов электрической сети по условиям настройки релейной защиты и с учетом возможных эксплуатационных режимов должны согласовываться предприятием с диспетчерской службой энергоснабжающей организации периодически пересматриваться.
Установки устройства РЗА линий связи потребителя энергоснабжающей организацией, а так же трансформаторов на подстанциях потребителя, находящихся в оперативном управлении или оперативном ведении диспетчера энергоснабжающей организации, должны быть согласованы с соответствующей службой РЗА энергоснабжающей организации.
При выборе установок должна обеспечиваться селективность действия с учетом наличия устройств автоматического включения резерва (АВР) и автоматического повторного включения (АПВ). Кроме того, при определении установок по селективности должна учитываться работа устройств технической автоматики и блокировки цеховых агрегатов и других механизмов.
Все уставки устройств релейной защиты должны проверяться в условиях минимальной электрической нагрузки предприятия и энергоснабжающей организации для действующей схемы электроснабжения.
Общие сведения об автоматике
Для повышения надежности электроснабжения электроустановок применяют автоматические устройства. Они обеспечивают быстрое восстановление нарушенного электроснабжения, вызванного ненормальными режимами работы электроустановки и действием при этом защитных устройств, а также возможными ошибками обслуживающего персонала.
В схеме электроснабжения завода предусмотрен следующий объем автоматики:
-
автоматическое регулирование напряжения под нагрузкой на силовых трансформаторах ГПП;
-
автоматическое управление вентиляторами обдува трансформаторов ГПП;
-
автоматическое включение резерва (АВР) секционного выключателя 10 кВ при аварийном отключении одного из трансформаторов ГПП или питающей линии;
-
автоматическое повторное включение (АПВ) питающей линии (ЛЭП‑1, ЛЭП‑2);
-
автоматическая частота разгрузка на 9 ячейках ГПП (АЧР);
-
АВР секционных автоматов 0,4 кВ. В случае выхода из работы одного из трансформаторов ТП другой трансформатор возьмет на себя всю нагрузку.
Общие сведения по измерению и учёту электроэнергии
Для контроля за работой системы электроснабжения, коммерческого и контрольного учета электроэнергии установлены следующие измерительные приборы:
На вводах 10 кВ:
-
универсальный счетчик энергии;
-
амперметр.
На сборных шинах 10 кВ:
-
по одному показывающему вольтметру на каждой секции;
-
один комплект вольтметров с переключателем на любую секцию;
-
один амперметр в цепи секционного выключателя.
На отходящих кабельных линиях 10 кВ:
-
универсальный счетчик энергии;
-
амперметр.
На стороне 0,4 кВ ТП:
-
один вольтметр на каждой секции;
-
амперметр в сепии отходящих магистралей.
В цепи трансформаторов:
-
счетчик энергии на стороне 0,4 кВ;
-
амперметр на стороне 0,4 кВ.
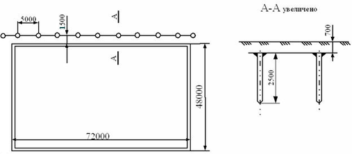
1.12 Выбор и расчет искусственного заземления
Одной из наиболее радикальных мер по защите людей от повреждения электрическим током при прикосновении к металлическим нетоковедущим частям, не находящимися под напряжением, но могущим оказаться под ним, является их надёжное заземление.
Район сооружения цеха находится в II климатической зоне. Грунт в месте сооружения – глина ( = 0,4 104 Омм). Длина кабельных линий напряжением 10 кВ ℓк. = 30 км.
Принимаем к установке заземление по контуру цеха, на расстоянии 1,5 м от стен. Длина контура заземления L = 240 м. Принимаем заземление из прутков ℓ = 2,5 м и диаметром d = 12 мм, расстояние между заземлителями а = 5 м, в качестве соединительной полосы принимаем стальную полосу (40 4) мм. [10]
Рисунок 8 Схема расположения заземления
Согласно ПУЭ rз. должно удовлетворять следующим условиям: [3]















