180698 (592884), страница 6
Текст из файла (страница 6)
Необходимая мощность для подогрева приточного воздуха в зимний период составляет 381 кВт; для охлаждения в летний период – 123 кВт. Разность температур теплоносителя 80…60С, хладоносителя 7…12С. Расход теплоносителя составляет:
хладоносителя:
В качестве регулирующего органа на подаче теплоносителя применен трехходовой клапан типа NMTR производства фирмы Regin. Подбор клапана производится при условии перепада давления на нем не выше 20 кПа. Подбор производится по диаграмме, изображенной на рис.6.1.
Рис. 6.1 Диаграмма подбора трехходового клапана типа NMTR
В качестве регулирующего органа на подаче хладоносителя применен трехходовой клапан типа BGTR производства фирмы Regin. Подбор клапана производится при условии перепада давления на нем не выше 20 кПа. Подбор производится по диаграмме, изображенной на рис. 6.2.
Рис. 6.2. Диаграмма подбора трехходового клапана типа BGTR
На подаче теплоносителя установлен трехходовой клапан NMTR50-39 (рис. 5) с условным проходом DN=50мм и условной пропускной способностью Кv=39 м3/ч. На подаче хладоносителя установлен трехходовой клапан BGTR65-63 (рис. 6) с условным проходом DN=65 мм и условной пропускной способностью Кv=63м3/ч.
В качестве исполнительного механизма на клапане теплоносителя применен электропривод AQM24-1R (рис.7) производства фирмы Regin. Технические характеристики электропривода AQM24-1R:
Напряжение питания______________________________________24 В.
Частота_________________________________________________50 Гц.
Управляющий сигнал________________________________0…10 В.
Потребляемая мощность__________________________________6 Вт.
Длина штока_______________________________________20 мм.
Время хода штока_________________________________10 с/мм.
Фактическое усилие____________________________________500 Н.
В качестве исполнительного механизма на клапане хладоносителя применен электропривод AV24-MFT (рис.8) производства фирмы Belimo. Технические характеристики электропривода AV24-MFT:
Напряжение питания____________________________________24 В.
Частота________________________________________________50 Гц.
Управляющий сигнал___________________________________0…10 В.
Потребляемая мощность___________________________________6 Вт.
Длина штока____________________________________________50 мм.
Время хода штока________________________________________3 с/мм.
Фактическое усилие_____________________________________2000 Н.
Рис. 6.3 Трехходовой регулирующий клапан NMTR50-39
А=160 мм
В1=100 мм
В2=73 мм
С=G 2”
D=126 мм
Масса – 5,0 кг.
Рис. 6.4 Трехходовой регулирующий клапан BGTR65-63
А=260 мм
В1=170 мм
В2=190 мм
С=185 мм
D=200 мм
Масса – 23 кг.
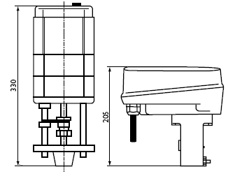
Рис. 6.5 Электропривод AQM24-1R
Рис. 6.6 Электропривод AV24-MFT
8. Технико-экономическое обоснование
8.1 Введение
Автоматизированные системы кондиционирования приводят, в конечном счете, к экономии потребляемой электроэнергии. Это происходит за счет равномерного потребления. В нашем случае экономия электроэнергии оценивается в 5% от годового потребления. Предполагается, что экономия электроэнергии покроет затраты на приобретение и установку АСУ.
8.2 Расчет капитальных вложений, необходимых для реализации проекта.
Табл. 8.1 - Расчет капитальных вложений
| Оборудование и затраты | Кол.-во | Цена за ед., грн. | Общая стоимость, грн. |
| 1. Контроллер “Corrigo-C30” | 1 | 4947.6 | 4947.6 |
| 2. Трехходовой регулирующий клапан NMTR50-39 | 2 | 1407.4 | 2814.8 |
| 3. Трехходовой регулирующий клапан BGTR65-63 | 1 | 3087.6 | 3087.6 |
| 4. Электропривод AQM24-1R | 2 | 1686.4 | 3372.8 |
| 5. Электропривод AV24-MFT | 1 | 6280.6 | 6280.6 |
| 6. Канальный датчик температуры TG-K3/Pt1000 | 1 | 198.4 | 198.4 |
| 7. Комнатный датчик температуры TG-R5/Pt1000 | 1 | 204.6 | 204.6 |
| 8. Наружный датчик температуры TG-R6/Pt1000 | 1 | 285.2 | 285.2 |
| 9. Накладной датчик температуры TG-А1/Pt1000 | 1 | 161.2 | 161.2 |
| 10. Комнатный преобразователь влажности HRT | 1 | 1227.6 | 1227.6 |
| 11. Канальный преобразователь влажности НDТ 3200 | 1 | 1159.4 | 1159.4 |
| 12. Капиллярный термостат ТС3 | 1 | 83.7 | 83.7 |
| 13. Дифференциальный датчик давления DPS500 | 3 | 272.8 | 818.4 |
| 14. Электропривод DA2.F | 1 | 1277.2 | 1277.2 |
| 15. Электропривод DМ1.1 | 2 | 923.8 | 1847.6 |
| 16. Щит управления и питания | 1 | 5580 | 5580 |
| 17. Монтаж оборудования | 1 | 8336.7 | 8336.7 |
| 18. Пусконаладочные работы | 1 | 1667.4 | 1667.3 |
| 19. Непредвиденные расходы | 1 | 3334.7 | 3334.7 |
| 20. Накладные расходы | 1 | 2667.7 | 2667.7 |
Итого: 49353.1 грн.
8.3 Расчет годовых эксплуатационных расходов, связанных с эксплуатацией АСУ
Для того, чтобы АСУ выполняла свои функции, необходимы расходы по содержанию и эксплуатации АСУ. В нашем случае такие годовые расходы определяются следующим образом:
, (8.1)
где
- амортизация,
- затраты на ремонт,
- зарплата,
- затраты на электроэнергию,
- прочие затраты.
Амортизация определяется по формуле
, (8.2)
где
- норма амортизации, составляющая 25%,
- общая стоимость АСУ.
Ремонтные затраты составляют
, (8.3)
Затраты на заработную плату составляют
, (8.4)
где
- численность по штату,
- заработная плата с начислениями одного человека.
Затраты на электроэнергию определятся по формуле
(8.5)
Прочие затраты составляют
(8.6)
8.4 Расчет экономии электроэнергии
Экономия электроэнергии составляет
,
где
- годовая потребляемая электроэнергия,
- потребляемая мощность,
- число часов работы кондиционера за год;
- коэффициент загрузки электродвигателя;
- коэффициент одновременного включения.
9. Техника безопасности
Здоровье, работоспособность, да и просто самочувствие человека в значительной степени определяются условиями микроклимата и воздушной среды в жилых и общественных помещениях, где он проводит значительную часть своего времени.
По мере насыщения зданий современными отопительно-вентиляционными системами, осветительной техникой и разнообразным электробытовым оборудованием все более очевидным становится выражение: «Дом – это машина для жилья».
Если говорить о физиологическом воздействии на человека окружающего воздуха, то следует напомнить, что человек в сутки потребляет около 3 кг пищи и 15 кг воздуха. Что это за воздух, какова его свежесть и чистота, душно, жарко или холодно человеку в помещении, во многом зависит от инженерных систем, специально предназначенных для обеспечения воздушного комфорта.
Среди инженерных систем здания можно выделить: систему вентиляции, систему отопления (либо комбинированную отопительно-вентиляционную систему) и систему кондиционирования воздуха (СКВ). Воздушное отопление, совмещенное с вентиляцией, создает в помещении вполне удовлетворительный микроклимат и обеспечивает благоприятные условия воздушной среды. СКВ представляет собой систему более высокого порядка (с большими возможностями). Принципиальное преимущество состоит в том, что, помимо выполнения задач вентиляции и отопления, СКВ позволяет создать благоприятный микроклимат (комфортный уровень температур) в летний, жаркий период года, благодаря использованию в своем составе фреоновой холодильной машины.
Таким образом, подготовка воздуха в СКВ может включать его охлаждение, нагрев, увлажнение или осушку, очистку (фильтрацию, ионизацию и т.п.), причем система позволяет поддерживать в помещении заданные кондиции воздуха независимо от уровня и колебаний метеорологических параметров наружного (атмосферного) воздуха, а также переменных поступлений в помещение тепла и влаги.
9.1 Определение параметров внешнего воздуха и оптимальных микроклиматических условий
Расчетные параметры внешнего воздуха определяются климатическими условиями местности, в которой будет работать СКВ, и ее назначением. Расчет принято вести по параметрам, определяемым следующим образом:
















