Для студентов МГТУ им. Н.Э.Баумана по предмету Подъёмно-транспортные машины (ПТМ)Механизм подъемного устройстваМеханизм подъемного устройства
4,9951114
2024-03-272024-03-27СтудИзба
Курсовая работа: Механизм подъемного устройства
Описание
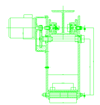
Техническая характеристика.
1. Тяговое усилие на ленте конвейера F=5 кН
2. Скорость ленты конвейера V=0.3 м/c
3. Мощность электродвигателя P=2,2 кВт
4 Общее передаточное число U= 80
Крепление каната к барабану кН - 12.5
Высота подъёма м - 4
Скорость подъёма V м/мин - 8
Скорость передвижения V м/мин - 32
Режим работы - 6
Установка тележки осуществляется путём снятия колеса
1. Тяговое усилие на ленте конвейера F=5 кН
2. Скорость ленты конвейера V=0.3 м/c
3. Мощность электродвигателя P=2,2 кВт
4 Общее передаточное число U= 80
Крепление каната к барабану кН - 12.5
Высота подъёма м - 4
Скорость подъёма V м/мин - 8
Скорость передвижения V м/мин - 32
Режим работы - 6
Установка тележки осуществляется путём снятия колеса



Характеристики курсовой работы
Учебное заведение
Семестр
Программы
Просмотров
4
Размер
395,58 Kb
Список файлов
Механизм передвижения.frw
Механизм подъема.frw
Общий вид подъемного устройства.frw
Сварная рама.frw
Специф2.frw
Специф~1.frw
Тележка.frw

Спасибо за покупку! Я буду очень рад, если поставишь справедливую оценку купленному файлу